Dom na sprzedaż
| Lokalizacja |
Mierzyn Sezamkowa |
|
|---|---|---|
| Numer oferty | ELT34273 | |
| Rok budowy | 2025 | |
| Materiał | Cegła | |
| Liczba pokoi | 5 | |
| Powierzchnia | 100 m2 | |
| Działka | 329 m2 | |
| Cena | 1 160 000 zł |
Na sprzedaż nowoczesny, komfortowy bliźniak w stanie deweloperskim blisko szkoły na Mierzynie
Dom oddzielony od sąsiada podwójną ścianą nośną z dylatacją styropianu pomiędzy ( 18+2+18 )
Sprzedaż na podstawie umowy deweloperskiej i rachunku powierniczego.
standard wykończenia:
• ogrzewanie i ciepła woda - indywidualna pompa cieplna powietrzna
• ogrzewanie podłogowe na parterze i piętrze
• system rekuperacji z jednostką
• okna i drzwi tarasowe PCV, 3 szybowe - ciepły montaż na taśmach - profil Salamander
• drzwi na taras w systemie przesuwnym - HS
• na parterze w oknach elektryczne rolety zewnętrzne
• drzwi wejściowe w kolorze antracytowym
• rozprowadzone instalacje: wodno-kanalizacyjna, elektryczna wraz z okablowaniem pod kamery i alarm
• rozprowadzona instalacja internetowa i R-TV.
• schody strychowe drewniane, składane
• sufit poddasza, płyty karton-gips zatarte na łączeniach
• ściany konstrukcyjne murowane, ocieplone styropianem 20 cm.
• elewacja - tynk mineralny barwiony w masie / panele PCV imitujące drewno.
• dachówka ceramiczna płaską, w kolorze antracyt
• rury i rynny PCV w kolorze antracytowym
• tynki wewnętrzne gipsowe
• ujęcie wody zewnętrzne / ogrodowe
• teren wokół budynku wyrównany
• ogrodzenie ogródków z tyłu budynku z paneli systemowych
• dwa miejsca parkingowe - kostka ażurowa / kostka brukowa
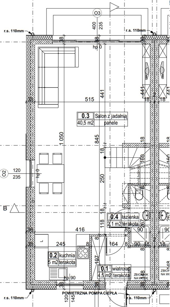
Na powierzchnię 100,6 m2 składają się na parterze :
- salon z jadalnią o pow. 40 m2
- kuchnia o pow 5 m2
- łazienka z toaletą o pow. 2,1 m2
- wiatrołap o pow. 4,5 m2
Piętro :
- pokój o pow. 12 m2
- pokój o pow. 10,4 m2
- pokój o pow. 8,8 m2
- pokój o pow. 7,7 m2
- łazienka razem z toaletą o pow, 4,1 m2
- korytarz o pow. 5,6 m2
Kupujący zwolniony z opłaty PCC, 2 % do Urzędu Skarbowego.
Oferta skierowana do najbardziej wymagających Klientów, ceniących wysoki standard wykończenia.
Lokalizacja idealna , blisko szkoły podstawowej i przedszkola, ciche spokojne miejsce .
Wyłączność nie szukaj dalej, zadzwoń i umów się na prezentację.
| Rodzaj oferty | Dom na sprzedaż | ||
|---|---|---|---|
| Liczba pokoi | 5 | ||
| Liczba łazienek | 2 | ||
| Liczba pięter | 1 | ||
| Powierzchnia | 100 m2 | ||
| Działka | 329 | ||
| Cena | 1 160 000 zł (11 519 zł/m2) | ||
| Forma prawna | Własność | ||
| Rok budowy | 2025 | ||
| Droga dojazdowa | Utwardzona | ||
| Materiał | Cegła | ||
| Stan budynku | Stan deweloperski | ||
| Rodzaj ogrzewania | pompa ciepła | ||
| Komunikacja | autobus | ||
| Odległość od centrum miasta | 1 km | ||
| Dostępne w okolicy | centrum handlowe, przychodnia lekarska, uczelnia, przedszkole, zabudowa niska, las, szkoła, apteka, gimnazjum, kościół, plac zabaw | ||
| Dodatkowo | alarm    internet    telewizja kablowa    ogród    monitoring     |