POWIERZCHNIA (M²)

CENA ZA M²

PIĘTRO

LICZBA POKOI

ROK BUDOWY

RYNEK

NUMER OFERTY

Poprzednia oferta
Powrót
Następna oferta

Wynajem - biuro, 47 m2, 1551 zł

Wynajem lokalu usługowego

Lokalizacja Szczecin Śródmieście-Centrum
Numer oferty ASP21758
Rodzaj budynku Budynek biurowy
Rok budowy 1930
Materiał Cegła
Liczba pokoi 2
Powierzchnia 47 m2
Cena 1 551 zł

Opis

Do wynajęcia powierzchnia biurowa 47 m2 zlokalizowana na 1 piętrze budynku biurowego w doskonałej lokalizacji blisko Centrum Szczecina, w okolicy Jasnych Błoni.

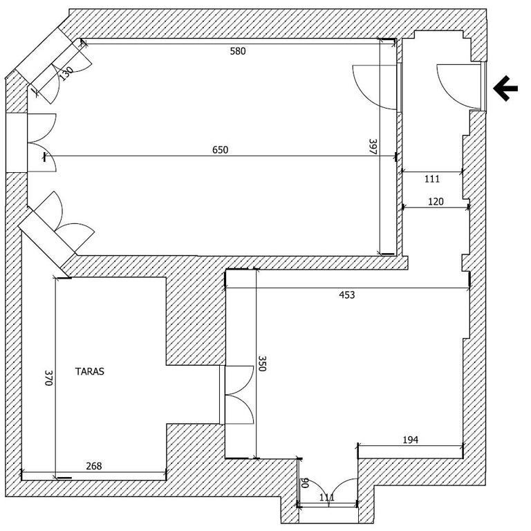
Oferowana powierzchnia składa się z dwóch dużych pomieszczeń biurowych (ok. 26 i 16 m2), korytarza wewnętrznego z umywalką 5m2 oraz dużego tarasu (10 m2). Powierzchnia tarasu nie jest wliczona do powierzchni najmu.

Ściany i sufity gładzone, ozdobna tapeta i malowane, na podłogach parkiet, sufit z oświetleniem rastrowym. Toaleta wspólna z innymi najemcami (tylko kilku użytkowników, sprząta wynajmujący) czysta i zadbana.

Wysokość pomieszczeń około 3 m.

Koszt wynajmu wynosi 33 PLN netto/1 m2 (zawiera opłaty za wodę, śmieci, sprzątanie części wspólnych). Z tarasu można korzystać na wyłączność bez opłat.
Dodatkowo płatne: energia elektryczna (według wskazań podlicznika) oraz ogrzewanie gazowe (rozliczane proporcjonalnie do zajmowanej powierzchni i płatne tylko w sezonie grzewczym, indywidualna kotłownia dla budynku).

Wymagana kaucja w wysokości jednomiesięcznego czynszu najmu brutto.

Przed budynkiem znajdują się liczne ogólnodostępne miejsca parkingowe (SPP) strefa czerwona oraz kilka (5-6) miejsc parkingowych na terenie posesji do dyspozycji kilku najemców bez dodatkowych opłat.

Doskonała lokalizacja, rozpoznawalne miejsce, szybki dojazd do ścisłego Centrum. Sąsiedztwo przystanków komunikacji miejskiej.


Szczegóły
Rodzaj oferty Wynajem lokalu usługowego
Liczba pokoi 2
Liczba pięter 2
Powierzchnia 47 m2
Cena 1 551 zł (33 zł/m2)
Forma prawna Własność
Rodzaj budynku Budynek biurowy
Rok budowy 1930
Materiał Cegła
Stan budynku Dobry