POWIERZCHNIA (M²)

CENA ZA M²

PIĘTRO

LICZBA POKOI

ROK BUDOWY

RYNEK

NUMER OFERTY

Poprzednia oferta
Powrót
Następna oferta

3 pokoje | Nowa Cukrownia| balkon i komórka

Mieszkanie na sprzedaż

Lokalizacja Szczecin Gumieńce
Numer oferty 113/13324/O
Rodzaj budynku Niski blok
Rok budowy 2017
Materiał Pustak
Liczba pokoi 3
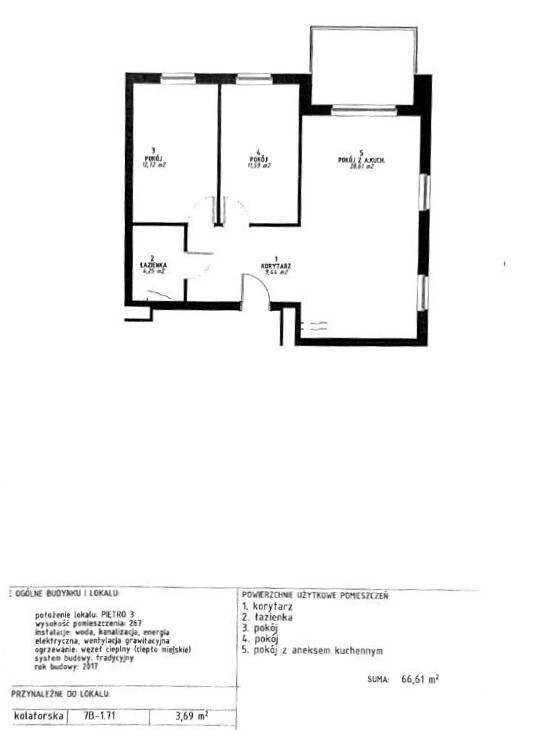
Powierzchnia 66 m2
Cena 770 000 zł

Opis

Przestronne mieszkanie o powierzchni 66,61 m², położone na 3. piętrze w budynku z 2017 roku. Wnętrze utrzymane w stonowanej kolorystyce, dzięki czemu stanowi idealną bazę do aranżacji według własnego stylu i potrzeb. Duży balkon od zachodniej strony będzie idealnym miejscejm na relaks i  popołudniową kawę. Jeśli szukasz mieszkania z potencjałem, w neutralnej stylistyce, z dużym balkonem od strony zachodniej i świetną lokalizacją – ta oferta jest dla Ciebie!

Mieszkanie:

* powierzchnia 66,61 m2
* 3 piętro
* bardzo funkcjonalny układ, rozkładowe pokoje
* przestronny przedpokój z pojemną szafą w zabudowie
* łazienka z wanną, umywalką i wc
* sypialnia 1 z podwójnym łóżkiem i szafą w zabudowie
* sypialnia 2 – obecnie gabinet - z szafą w zabudowie
* duży, jasny i przestronny salon z aneksem; duże okno balkonowe zapewniające mnóstwo naturalnego światła
 *meble kuchenne w zabudowie, sprzęt AGD – płyta indukcyjna w białym kolorze, piekarnik, lodówka i zmywarka
* łazienka z prysznicem, wc i umywalką
* okna pcv w idealnym stanie
* drzwi wejściowe antywłamaniowe 
* ekspozycja okien na północny zachód
* ciepła woda i ogrzewanie z SEC
* duży balkon
* komórka lokatorska
 
Budynek:
* oddany do użytku w 2017 r.
* przestronna klatka schodowa
 
Ważne:

  • Czynsz 700 zł
  • Opłata za wodę i ogrzewanie z SEC w sezonie grzewczym 700 zł, poza sezonem grzewczym 400 zł (przy dużym zużyciu wody)
  • Właściciel dysponuje 2 miejscami w hali garażowej (na osobnej KW)

Zakup miejsc w hali garażowej nie jest obowiązkowy.
  • Cena jednego miejsca (bez mieszkania): 85 000 zł
  • Cena dwóch miejsc (bez mieszkania): 160 000 zł
  • Cena dwóch miejsc przy zakupie mieszkania: 150 000 zł
 
Okolica:
Gumieńce to dzielnica oferująca spokojne życie, a jednocześnie zapewniająca dostęp do miejskich udogodnień, co czyni ją atrakcyjnym miejscem do zamieszkania, zwłaszcza dla rodzin.   Osiedle przy ul. Kwiatkowskiego jest dobrze skomunikowane - gwarantuje szybki dojazd do centrum samochodem, ale w najbliższej okolicy znajdziemy też przystanki autobusowe. W zasięgu krótkiego spaceru znajdują się sklepy, restauracje, kawiarnie, apteki, siłownie i inne punkty usługowe – wszystko, czego potrzebujesz na co dzień, masz tuż pod ręką. Osiedle Nowa Cukrownia zostało zaprojektowane z myślą o komforcie mieszkańców – szerokie chodniki, tereny zielone, nowoczesna architektura oraz place zabaw sprawiają, że to miejsce idealne zarówno dla singli, par, jak i rodzin z dziećmi.
W okolicy:
- sklep Żabka - 400 m
- siłownia, barber, bistro, paczkomat - 400 m
- stacja kolejowa Gumieńce - 600 m
- przystanki autobusowe linii 60, 61, 62, 241, 243 
- McDonald's
- sklep Netto, Makro
- Wydział Humanistyczny US, Wydział Ekonomii US 

Dojazd do Centrum zajmuje około 15 minut samochodem. Na osiedlu miejsca postojowe bez opłat PP.


Szczegóły
Rodzaj oferty Mieszkanie na sprzedaż
Liczba pokoi 3
Liczba łazienek 1
Liczba pięter 3
Powierzchnia 66 m2
Cena 770 000 zł (11 559 zł/m2)
Forma prawna Własność
Rodzaj budynku Niski blok
Rok budowy 2017
Materiał Pustak
Rodzaj ogrzewania co miejskie
Komunikacja kolej, autobus
Dostępne w okolicy fitnes, centrum handlowe, plac zabaw, kort tenisowy, sklep, restauracja, uczelnia