Działka na sprzedaż
| Lokalizacja | Niedźwiedź | |
|---|---|---|
| Numer oferty | MOJ22131 | |
| Działka | 630 m2 | |
| Cena | 155 000 zł |
Do sprzedania dwie działki budowlane w Niedźwiedziu gm. Kobylanka, powiat stargardzki na skraju lasu o wielkościach 630 i 670 m.
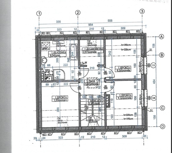
Działki posiadają wydane pozwolenie na budowę wraz z zatwierdzonym projektem architektoniczno-budowlanym oraz projektem zagospodarowania terenu. Dzięki temu inwestor może rozpocząć budowę od razu po zakupie. Istnieje również możliwość zmiany projektu domu na inny według indywidualnych potrzeb kupującego.
Podstawowe informacje:
Przeznaczenie: zabudowa mieszkaniowa jednorodzinna
Powierzchnia zabudowy: 102,00 m² (2,60%)
Powierzchnia biologicznie czynna: 3271,80 m² (83,46%) – wymóg minimum 45% spełniony
Powierzchnia utwardzeń: 288,00 m²
Powierzchnia użytkowa budynku: 105,65 m²
Kubatura: 527,18 m³
Parametry budynku zgodnie z projektem:
Bryła budynku: dom jednorodzinny wolnostojący
Dach: dwuspadowy, symetryczny, stromy, pokrycie dachówką ceramiczną
Układ kalenicy: prostopadły do linii zabudowy
Nachylenie połaci dachowych: 30–40°
Wysokość budynku: max. 9,0 m (projekt: 8,43 m)
Szerokość elewacji frontowej: max. 11,0 m (projekt: 9,54 m)
Górna krawędź elewacji frontowej: max. 4,0 m (projekt: 3,90 m)
Warunki zagospodarowania i użytkowania terenu:
Pas wokół budynku (ok. 50 cm) należy utwardzić grysem, kostką brukową lub płytką chodnikową z nadaniem spadku na zewnątrz,
Zapewnione 2 miejsca postojowe dla samochodów osobowych,
Lokalizacja pojemnika na odpady stałe przy granicy z działką drogową na utwardzonej nawierzchni przy drodze,
Odpady segregowane u źródła, odbierane na podstawie umowy przez firmę zewnętrzną,
Odprowadzenie wody opadowej na własny teren nieutwardzony.
Instalacje i wyposażenie techniczne:
Ogrzewanie: pompa ciepła (również przygotowanie ciepłej wody użytkowej),
Woda: instalacja wodociągowa Ø40 PE – zasilanie ze studni,
Kanalizacja: instalacja sanitarna z rur PVC Ø160, odprowadzenie do szamba,
Energia elektryczna: przyłącze do sieci z projektowanej skrzynki ZK, przewód YKY 4x16 mm²,
Zwolnienie z obowiązku ustanowienia kierownika robót budowlanych w zakresie instalacji elektrycznej, grzewczej i wod.-kan.
Atuty działki:
✅ Gotowe pozwolenie na budowę z kompletną dokumentacją,
✅ Spełnione wszystkie wymagania prawne i techniczne,
✅ Duża powierzchnia z przewagą terenu biologicznie czynnego,
✅ Spokojna i zielona okolica w gm. Kobylanka, szybki dojazd do Stargardu i Szczecina,
✅ Możliwość rozpoczęcia budowy od razu po zakupie.
Zapraszam do kontaktu telefonicznego i obejrzenia działek na miejscu!
| Rodzaj oferty | Działka na sprzedaż | ||
|---|---|---|---|
| Działka | 630 | ||
| Cena | 155 000 zł (246 zł/m2) | ||
| Forma prawna gruntu | Własność | ||
| Droga dojazdowa | Utwardzona |