POWIERZCHNIA (M²)

CENA ZA M²

PIĘTRO

LICZBA POKOI

ROK BUDOWY

RYNEK

NUMER OFERTY

Poprzednia oferta
Powrót
Następna oferta

Osiedle Nautica, 71m2, 3pok, miejsce postojowe

Mieszkanie na sprzedaż

Lokalizacja Szczecin Centrum
Numer oferty INS22031
Rodzaj budynku Budynek apartamentowy
Rok budowy 2016
Materiał Cegła
Liczba pokoi 3
Powierzchnia 70 m2
Cena 895 000 zł

Opis

Mamy przyjemność zaprezentować Państwu przestronne, klimatyzowane mieszkanie ok. 71 m2 w inwestycji Nautica przy ul. Raginisa w Centrum Szczecina, wraz z miejscem postojowym w garażu oraz parkingiem za szlabanem, dostępnym dla gości.

Ściany gładzone i pomalowane, w oknach rolety drewniane wewnętrzne i aluminiowe zewnętrzne. na podłodze w całym mieszkaniu kafle drewno podobne. Drzwi wewnętrzne z zamkami magnetycznymi firmy POL-SKONE (bdb. jakości).

PARAMETRY NIERUCHOMOŚCI Lokal 3-pokojowy o bardzo funkcjonalnym układzie - obszerne dwa pokoje, ustawny i przestronny salon z balkonem otwarty na kuchnie z oknem, łazienka z wanną, oddzielna toaleta, panoramiczne aluminiowe okna. Wygodne wejście bez schodów na wysokości gruntu.

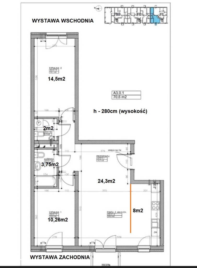
ROZKŁAD
Przedpokój
Salon: 24,3m2 (690x350) z wyjściem na balkon ok. 2-3m2 - okna zwrócone na zachód
Kuchnia: 8m2 (421x190)
Pokój 1: 10,26m2 (375x273) - okna zwrócone na zachód
Pokój 2: 14,50m2 (532x273) - okna na wschód
WC1: 2m2 (144x144)
Łazienka: 3,74m2 (251x149)

Do lokalu przynależy wygodne, narożne miejsce parkingowe w garażu podziemnym - płatne dodatkowo.

LOKALIZACJA I KOMUNIKACJA
Śródmieści/Centrum to od lat jedna z najbardziej pożądanych dzielnic Szczecina. Okolica tętniąca życiem, niedaleko znajduje się Park Żeromskiego, CH Galaxy, Plac Grunwaldzki oraz mnogość sklepów i lokali usługowych. Linie tramwajowe, autobusowe oraz usytuowanie w zacisznej enklawie dojazdu do głównych arterii pozwalają w łatwy sposób dostać się w każde miejsce Szczecina, czyniąc mieszkanie bardzo atrakcyjnie skomunikowanym.

Na osiedlu znajduje się parking samochodowy oraz stojak rowerowy.

Apartament w inwestycji Nautica dewelopera SGI przy ul. Raginisa to propozycja dla osób ceniących dobrze skomunikowaną lokalizację, zapewniającą bliskość głównych punktów Szczecina, nowoczesny standard, szlachetne materiały i komfortową przestrzeń z widokiem na zieleń. Dostosowanie do prowadzenia działalności medycznej, terapeutycznej czy kosmetycznej pozwala niemal od razu rozpocząć działalność. Uniwersalna inwestycja - zarówno biznesowa, a po szybkim i prostym dostosowaniu dostosowaniu - idealna do zamieszkania.

Zapraszamy na prezentację. Klucze w biurze.


Szczegóły
Rodzaj oferty Mieszkanie na sprzedaż
Liczba pokoi 3
Liczba łazienek 2
Liczba pięter 6
Powierzchnia 70 m2
Cena 895 000 zł (12 677 zł/m2)
Forma prawna Własność
Forma prawna gruntu Własność
Rodzaj budynku Budynek apartamentowy
Rok budowy 2016
Droga dojazdowa Asfaltowa
Materiał Cegła
Stan budynku Idealny
Rodzaj ogrzewania co miejskie
Komunikacja autobus, tramwaj
Odległość od centrum miasta 1 km
Dostępne w okolicy restauracja, przedszkole, szkoła, plac zabaw, fitnes, bank, centrum handlowe
Dodatkowo przystosowane dla niepełnosprawych    internet    telewizja kablowa    klimatyzacja    winda    recepcja    ochrona    monitoring