Mieszkanie na sprzedaż
| Lokalizacja |
Szczecin Pomorzany ul. Aleja Powstańców Wielkopolskich |
|
|---|---|---|
| Numer oferty | BON48540 | |
| Rodzaj budynku | Niski blok | |
| Rok budowy | 1998 | |
| Materiał | Cegła | |
| Liczba pokoi | 2 | |
| Powierzchnia | 48 m2 | |
| Cena | 475 000 zł |
Planujesz skredytować to marzenie – zadzwoń.
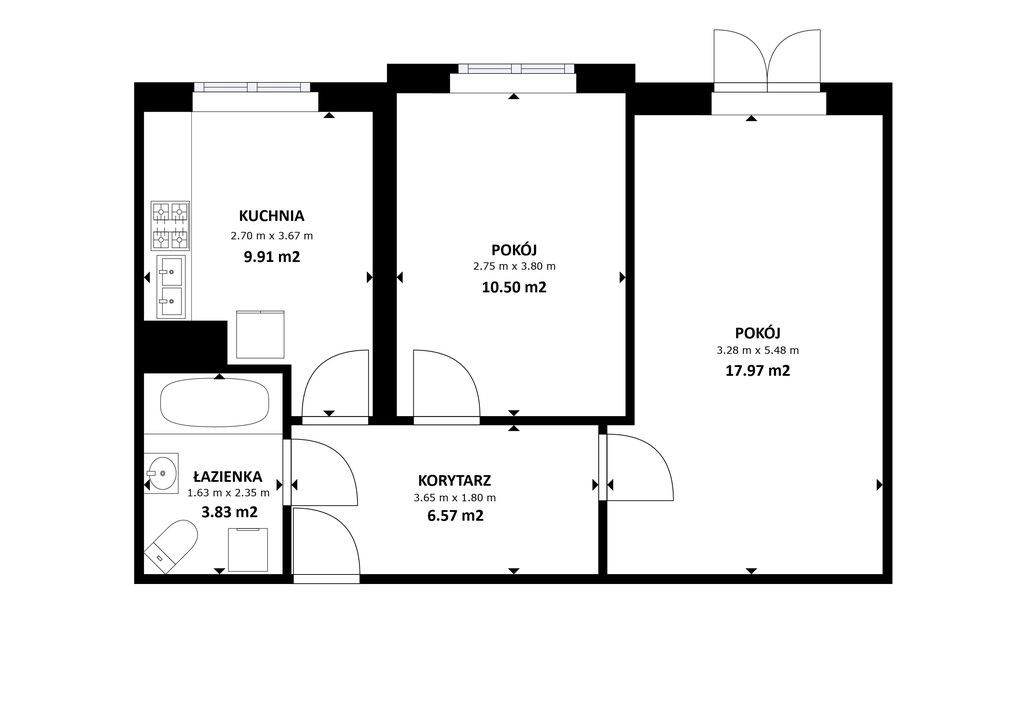
Atrakcyjne dwupokojowe mieszkanie położone na Pomorzanach obok szpitala, budynek z cegły z 1998 roku z szybkim i łatwym dostępem do centrum i dworca PKP. Świetna lokalizacja z pełną infrastrukturą, w pobliżu szpital, biblioteka PUM, restauracje, centrum handlowe, komunikacja miejska, Netto itp.
Lokal w stanie do zamieszkania, wyposażony i gotowy do wydana. Mieszkanie składa się z:
- salonu z wyjściem na balkon
- sypialni
- oddzielnej kuchni
- łazienki z wanną, wc i pralką
- korytarza z szafą
Pokoje wyposażone, duża kuchnia w zabudowie ze sprzętem AGD. Podłogi w pokojach i korytarzu wyłożone panelami. Łazienka wykończona w glazurze i terakocie.
Ogrzewanie i ciepła woda z sieci miejskiej, wszystko w czynszu. Teren wokół budynku ogrodzony i zamknięty, dostępne rotacyjne miejsca parkingowe, nieopodal parking strzeżony.
Wydanie od zaraz.
Zapraszam do skorzystania z wirtualnego spaceru i do obejrzenia na żywo.
| Rodzaj oferty | Mieszkanie na sprzedaż | ||
|---|---|---|---|
| Liczba pokoi | 2 | ||
| Liczba łazienek | 1 | ||
| Liczba pięter | 4 | ||
| Powierzchnia | 48 m2 | ||
| Cena | 475 000 zł (9 854 zł/m2) | ||
| Forma prawna | Spółdzielcze własnościowe prawo | ||
| Rodzaj budynku | Niski blok | ||
| Rok budowy | 1998 | ||
| Materiał | Cegła | ||
| Stan budynku | Dobry | ||
| Dodatkowo | internet    telewizja kablowa     |