POWIERZCHNIA (M²)

CENA ZA M²

PIĘTRO

LICZBA POKOI

ROK BUDOWY

RYNEK

NUMER OFERTY

Poprzednia oferta
Powrót
Następna oferta

Apartament- 2 pok.- Podzamcze- Szczecin

Mieszkanie na sprzedaż

Lokalizacja Szczecin Stare Miasto
ul. Kurkowa
Numer oferty CIE24833
Rodzaj budynku Kamienica
Rok budowy 2022
Materiał Silikat
Liczba pokoi 2
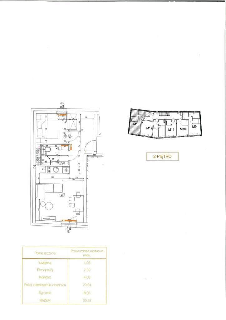
Powierzchnia 39 m2
Cena 865 488 zł

Opis


Z przyjemnością prezentujemy Państwu  apartament do sprzedaży  na Starym Mieście w Szczecinie.
Mamy do sprzedaży 3 prestiżowe mieszkania położone w jednym z najbardziej urokliwych i dynamicznie rozwijających się rejonów Szczecina.
Ta unikalna inwestycja łączy nowoczesną architekturę z wysokim standardem wykończenia, tworząc idealne miejsce do życia dla osób ceniących komfort, elegancję i bliskość miejskich atrakcji.
Mieszkanie znajduje się w samym sercu Szczecina, zaledwie kilka minut spacerem od najważniejszych punktów miasta. Doskonała komunikacja zapewnia szybki dostęp do centrów biznesowych, uczelni, parków oraz kulturalnych i rozrywkowych przestrzeni. W okolicy znajduje się również bogata infrastruktura handlowa i usługowa, co czyni tę lokalizację niezwykle wygodną na co dzień.
Charakterystyka inwestycji
 Budynek wolnostojący z 4 kondygnacjami wyposażony w windę , na parterze znajduje  piękne patio zewnętrzne , zielone miejsce do wypoczynku porą letnią jak również piękna recepcja oraz kawiarnia. Nowoczesny kompleks składa się z eleganckiego budynku z  przestronnymi apartamentami o różnych metrażach, dostosowanych do potrzeb zarówno singli, jak i rodzin. Przemyślane rozkłady pomieszczeń, wysokiej jakości materiały wykończeniowe  to wyróżnia tę inwestycję na rynku mieszkaniowym Szczecina . Dużą uwagę zwrócono na detale, które podkreślają luksusowy charakter tego  miejsca.
Atuty

  • Przestronne mieszkania z dużymi oknami zapewniającymi naturalne światło
  • Nowoczesne rozwiązania technologiczne i energooszczędne systemy
  • Piękne zielone  patio wewnątrz kwartału
  • Bezpieczeństwo i komfort mieszkańców dzięki monitoringowi i kontrolowanym wejściom
  • winda
  • całkowite umeblowanie apartamentów oraz wyposażenie w sprzęty AGD oraz RTV wysokiej jakości.
Mieszkanie składa się z:
- przestronnego, umeblowanego  salonu, wyposażonego w kanapę, stolik kawowy, regały na książki, komody wraz z aneksem kuchennym wyposażonym w meble kuchenne, zmywarkę , piekarnik , lodówkę, zamrażarkę, płytę elektryczną oraz  stół jadalniany z krzesłami 
- sypialni (w pokoju  znajduje się podwójne łóżko z materacem, szafa oraz szafka nocna)
- łazienki z meblami w zabudowie, prysznica, WC oraz pralki
OPŁATY:
czynsz administracyjny- ok. 470 zł
prąd wg zużycia

Lokalizacja i historia:
Apartamenty w tej lokalizacji to nie tylko miejsce do zamieszkania, ale również inwestycja w wysoką jakość życia. Połączenie luksusu, wygody i świetnego położenia sprawia, że jest to oferta, której nie można przegapić, to wyjątkowe miejsce położone w cichej uliczce, w pobliżu Zamku Książąt Pomorskich. Apartamenty dzieli tylko kilka minut spaceru od największych atrakcji Szczecina, takich jak Filharmonia Szczecińska, Muzeum Narodowe oraz Bulwary Szczecińskie.
Od lipca 2022 roku to miejsce zyskało uznanie na rynku jako butikowy aparthotel z unikalnymi wnętrzami, wysoko oceniany przez gości zarówno z kraju, jak i zagranicy. Kamienica jest również miejscem artystycznych spotkań, organizowanych wernisaży i koncertów. W krótkim czasie działalności stała się ona domem dla artystów z różnych zakątków świata, tworząc inspirującą atmosferę i sprzyjającą kreatywności przestrzeń. Zapraszamy do kontaktu i umówienia się na prezentację – odkryj swoje przyszłe wymarzone mieszkanie w sercu Szczecina! 



Świadectwo charakterystyki energetycznej - zapotrzebowanie na energię:

EU - użytkową (kWh/m2*rok): 68.27; EK - końcową (kWh/m2*rok): 82.30; EP - nieodnawialną energię pierwotną (kWh/m2*rok): 81.94; EC02 - Wielkość emisji CO2 (t C02/m2*rok): 0.02; UOZE - Udział odnawialnych źródeł energii w zapotrzebowaniu na energię końcową [%]: 0.00;


Szczegóły
Rodzaj oferty Mieszkanie na sprzedaż
Liczba pokoi 2
Liczba łazienek 1
Liczba pięter 3
Powierzchnia 39 m2
Cena 865 488 zł (21 900 zł/m2)
Forma prawna Własność
Forma prawna gruntu Własność
Rodzaj budynku Kamienica
Rok budowy 2022
Materiał Silikat
Rodzaj ogrzewania co miejskie
Komunikacja tramwaj, autobus
Dostępne w okolicy fitnes, szkoła, restauracja, rzeka, przedszkole, bank
Dodatkowo alarm    ogród    winda    recepcja    monitoring