Dom na sprzedaż
| Lokalizacja | Szczecin Płonia | |
|---|---|---|
| Numer oferty | MEM22813 | |
| Rok budowy | 2026 | |
| Materiał | Ytong | |
| Liczba pokoi | 4 | |
| Powierzchnia | 130 m2 | |
| Działka | 520 m2 | |
| Cena | 950 000 zł |
Osiedle Trzy Rzeki to spokojne i urokliwe miejsce na Prawobrzeżu Szczecina, zaledwie 15 minut jazdy samochodem od centrum miasta. Bliskość centrum handlowego przy osiedlu Słonecznym, miasta Stargardu i węzła Kijewo sprawiają, że życie tutaj to nie tylko przyjemność, ale i wygoda. Spacer do rezerwatu przyrody Buczynowe Wąwozy zajmuje 10 minut, a jeszcze bliżej jest do lasku sosnowego, który znajduje się zaledwie 50 m od terenu inwestycji. W pobliżu mieści się też szkoła podstawowa, apteka, sklepy oraz szpital. Dobra infrastruktura, przemyślana zabudowa i spokojna okolica powodują, że Osiedle Trzy Rzeki to idealne miejsce do życia i rozwoju.
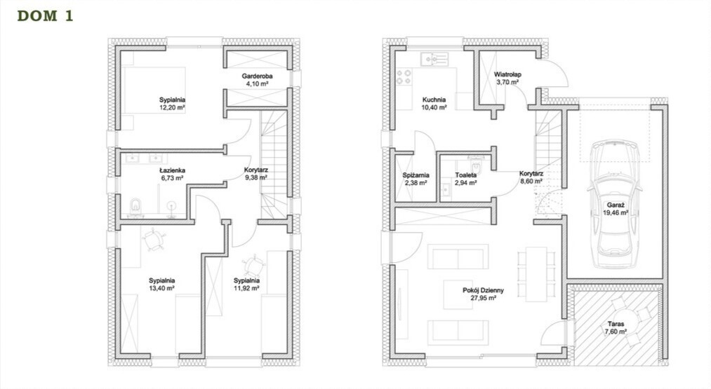
Każdy z ośmiu lokali o pow. 130m2 składa się z dwóch poziomów.
Na pierwszy poziom składa się:
-pokój dzienny 27,95m2
-kuchnia 10,4m2
-korytarz 8,6 m2
-wiatrołap 3,7m2
-spiżarnia 2,38m2
-toaleta 2,94m2
Na drugim poziomie znajduje się:
-sypialnia 13,4m2
-sypialnia 12,2m2
-sypialnia 11,92
-łazienka 6,73m2
-korytarz 9,38m2
Standard wykończenia:
-ogrodzenie
-woda miejska
-szambo ekologiczne
-materiał- silka
-pompa ciepła
-podjazdy wyłożony polbrukiem.
Termin wykończenia inwestycji- lato 2026.
| Rodzaj oferty | Dom na sprzedaż | ||
|---|---|---|---|
| Liczba pokoi | 4 | ||
| Liczba łazienek | 1 | ||
| Liczba pięter | 2 | ||
| Powierzchnia | 130 m2 | ||
| Działka | 520 | ||
| Cena | 950 000 zł (7 307 zł/m2) | ||
| Forma prawna | Własność | ||
| Rok budowy | 2026 | ||
| Droga dojazdowa | Asfaltowa | ||
| Materiał | Ytong | ||
| Stan budynku | Stan deweloperski | ||
| Rodzaj ogrzewania | pompa ciepła | ||
| Komunikacja | autobus | ||
| Dodatkowo | ogród     |