POWIERZCHNIA (M²)

CENA ZA M²

PIĘTRO

LICZBA POKOI

ROK BUDOWY

RYNEK

NUMER OFERTY

Poprzednia oferta
Powrót
Następna oferta

3 pokoje | Centrum | duży potencjał inwestycyjny

Mieszkanie na sprzedaż

Lokalizacja Szczecin Centrum
ul. Legionów Dąbrowskiego
Numer oferty 50/13324/OM
Rodzaj budynku Kamienica
Rok budowy 1920
Materiał Cegła
Liczba pokoi 4
Powierzchnia 84 m2
Cena 499 000 zł

Opis

IDEALNE DLA: RODZINY Z DZIEĆMI, INWESTORA, DZIAŁALNOŚCI GOSPODARCZEJ
 
Szukasz mieszkania w świetnej lokalizacji, które możesz zaaranżować według własnych potrzeb? A może chcesz otworzyć biuro lub kancelarię?
 
Mamy dla Ciebie idealną propozycję! 84-metrowe mieszkanie na parterze w samym sercu miasta z szerokim wachlarzem możliwości zmiany rozkładu pomieszczeń!
 
Zapewniamy wysoki rabat na wszelkie materiały budowlane i wykończeniowe!

Mieszkanie:
* powierzchnia 84,26mkw, 3 pokoje, kuchnia, łazienka, przedpokój
* wysoki parter w 3 piętrowej kamienicy
* ogrzewanie i woda z pieca gazowego
* okna PVC w dobrym stanie
* ekspozycja okien: północ – południe
 
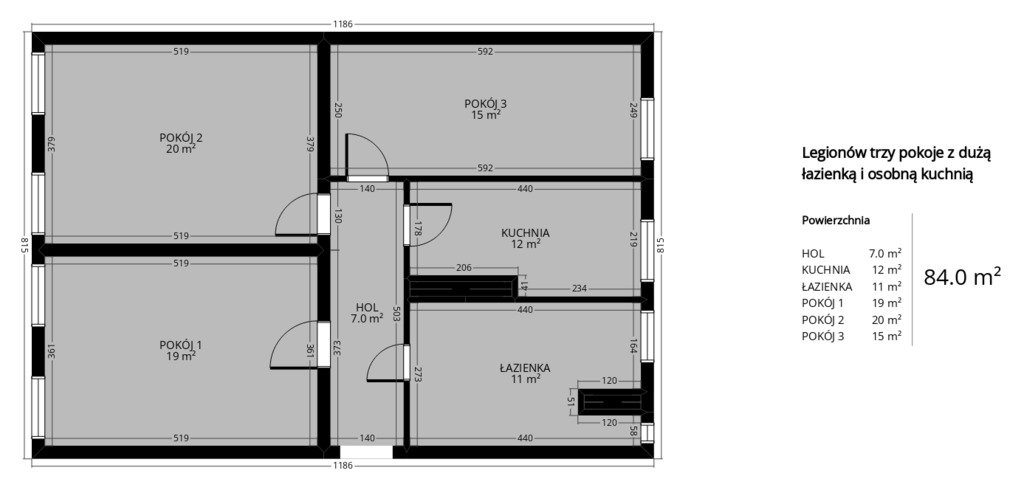
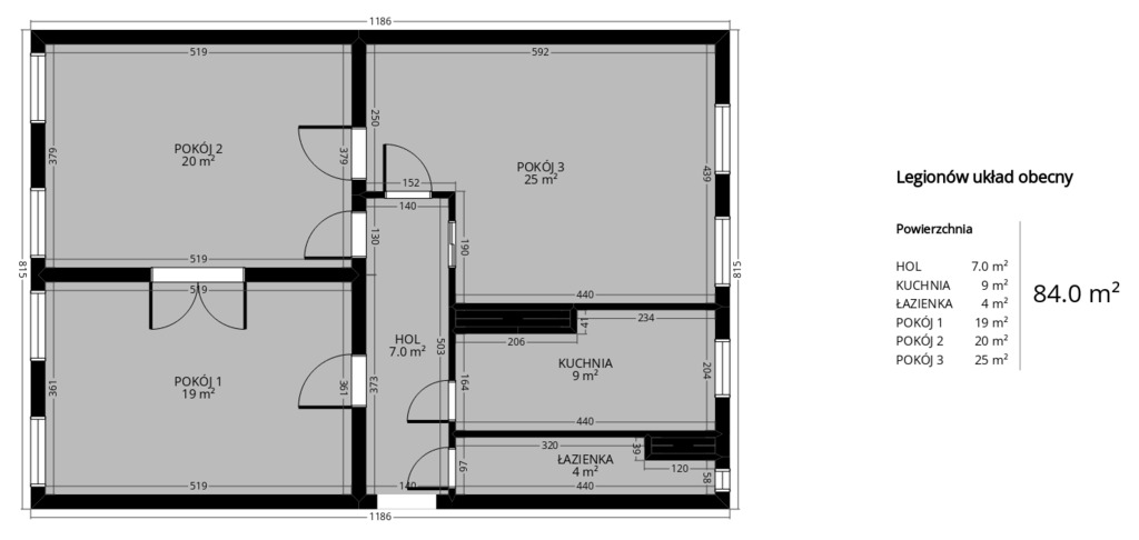
Mieszkanie ma bardzo duży potencjał, jeśli chodzi o aranżację pomieszczeń, co pokazujemy na zamieszczonych rzutach:
 
1. Rzut z obecnym rozkładem.
2. Możliwość łatwego wydzielenia 4-tego pokoju i pozostawienie innych pomieszczeń bez zmian (działalność – maksymalizacja ilości izb).
3. Możliwość przeniesienia kuchni do pomieszczenia wydzielonego jak wyżej, dzięki czemu uzyskujemy dodatkową powierzchnię pod łazienkę powstałą z połączenia z dawną kuchnią.
4. Możliwość powiększenia łazienki kosztem kuchni i przeniesienia jej do salonu w formie aneksu.
 
Dodatkowo istnieją też liczne wariacje w których wydzielić można np. garderobę lub też mniejsze pomieszczenia w ramach dwóch dużych pokoi posiadających po 2 okna.
 
Budynek:
* kamienica z wyremontowaną fasadą
* czysta i zadbana klatka schodowa
* zielone i ciche podwórko wewnętrzne
 
Okolica:
* ścisłe Centrum w pobliżu CH Turzyn
* w okolicy szkoły, przedszkola, sklepy, galerie handlowe, siłownia, restauracje, przystanki tramwajowe linii 5, 7, 8 i 9 oraz autobusowe linii 75
 
Ważne:
* pełna własność z Księgą Wieczystą
* czynsz około 450 zł
* przynależna duża piwnica z oknem o pow. 13 m2


Szczegóły
Rodzaj oferty Mieszkanie na sprzedaż
Liczba pokoi 4
Liczba łazienek 1
Liczba pięter 4
Powierzchnia 84 m2
Cena 499 000 zł (5 922 zł/m2)
Forma prawna Własność
Rodzaj budynku Kamienica
Rok budowy 1920
Materiał Cegła
Rodzaj ogrzewania gazowe
Komunikacja autobus, tramwaj
Dostępne w okolicy przychodnia lekarska, bar, kościół, apteka, zabudowa niska, gimnazjum, Żłobek, uczelnia, sklep, centrum handlowe, restauracja, przedszkole, szkoła, park, szpital, hala sportowa, plac zabaw, bank, fitnes