POWIERZCHNIA (M²)

CENA ZA M²

PIĘTRO

LICZBA POKOI

ROK BUDOWY

RYNEK

NUMER OFERTY

Poprzednia oferta
Powrót
Następna oferta

Lokal na wynajem na osiedlu zamkniętym

Wynajem lokalu usługowego

Lokalizacja Szczecin Niebuszewo
Mariana Rapackiego
Numer oferty ELT33506
Rodzaj budynku Niski blok
Rok budowy 2014
Materiał Silikat
Liczba pokoi 7
Powierzchnia 129 m2
Cena 6 000 zł

Opis

Na wynajem lokal niemieszkalny zlokalizowany na parterze niskiego budynku mieszkalnego w dzielnicy Niebuszewo.

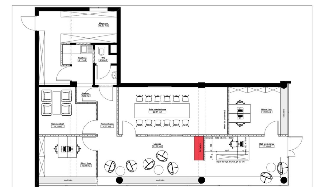
Nieruchomość o powierzchni 129,80 m2 obecnie składa się:

* hall wejściowy wraz z recepcją 17,16 m2
* pomieszczenie biurowe 12,09 m2
* pomieszczenie salonowe 21,69 m2
* sala konferencyjna 22,41 m2
* pomieszczenie biurowe 12,06 m2
* sala spotkań 10,28 m2
* korytarz 5,32 m2
* toaleta 3,30 m2
* kuchnia 4,12 m2
* magazyn 15,53 m2 z wyjściem na patio

Ściany działowe, pierwotnie lokal był jako open space.
Pomieszczenia klimatyzowane.

Lokal posiada prywatne miejsce parkingowe w garażu w cenie najmu.
Czynsz 6 000 zł netto. Czynsz administracyjny 623 zł w tym także fundusz remontowy plus prąd.
Ogrzewanie obecnie podłogowe - elektryczne, możliwość przywrócenia ogrzewania miejskiego.

Przeznaczenie lokalu na działalność nieuciążliwą. Osiedle zamknięte.
Możliwość także kupna nieruchomości.

Zapraszam na prezentację.


Szczegóły
Rodzaj oferty Wynajem lokalu usługowego
Liczba pokoi 7
Liczba łazienek 1
Liczba pięter 4
Powierzchnia 129 m2
Cena 6 000 zł (46 zł/m2)
Forma prawna Własność
Rodzaj budynku Niski blok
Rok budowy 2014
Materiał Silikat
Stan budynku Bardzo dobry
Rodzaj ogrzewania elektryczne, co miejskie
Komunikacja autobus
Dodatkowo internet    klimatyzacja    winda    recepcja