Mieszkanie na sprzedaż
| Lokalizacja |
Szczecin Centrum ul. bł. Królowej Jadwigi |
|
|---|---|---|
| Numer oferty | OST20227 | |
| Rodzaj budynku | Niski blok | |
| Rok budowy | 1930 | |
| Materiał | Cegła | |
| Liczba pokoi | 2 | |
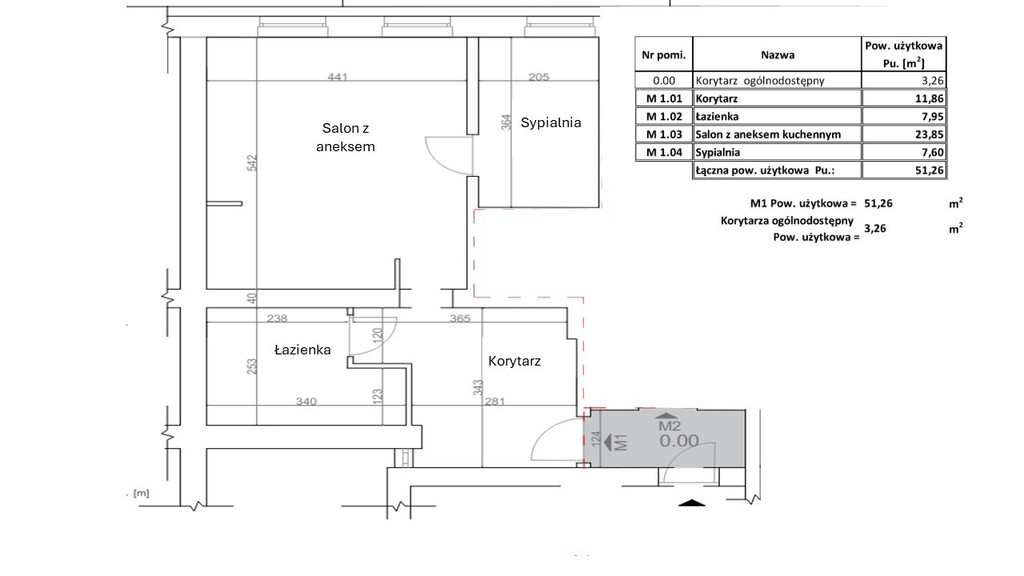
| Powierzchnia | 51 m2 | |
| Cena | 529 000 zł |
Serdecznie polecam ofertę sprzedaży wyjątkowego mieszkania, położonego w cichym Centrum Szczecina.
W najbliższym sąsiedztwie znajdują się:
- ZUT - 4 minuty pieszo,
- Wydział Inżynierii Mechanicznej - 10 min pieszo,
- przystanek autobusowy - 4 min pieszo,
- przystanek tramwajowy - 4 min pieszo
- sklep osiedlowy - 3 min pieszo,
- dyskonty spożywcze - 3-5 min pieszo.
Nieruchomość usytuowana jest na 2 piętrze odremontowanej i czystej kamienicy.
Mieszkanie przeszło gruntowny remont w 2023 roku, m.in.:
- wymieniono instalację elektryczną na nową trójfazową,
- położono nowy układ centralnego ogrzewania z piecem kondensacyjnym De Dietrich,
- zainstalowano nowe wkłady kominowe,
- zamontowano zabezpieczenia przeciwpożarowe w mieszkaniu i na klatce schodowej,
- zabezpieczono strop i podłogę przeciwpożarowo do normy REI 60,
- wstawiono kuchnię na wymiar ze sprzętami AGD: płytą indukcyjną, okapem, zmywarką 60 cm, mikrofalówką oraz lodówko-zamrażarką,
- w łazience zamontowano wannę z parawanem i kolumną prysznicową, zestaw podtynkowy z podwieszonym WC, wstawiono nowoczesną pralkę Toshiba,
- ściany zostały wygładzone i pomalowane na jasne kolory,
- podłogi wyłożono panelami fugowymi o wysokiej klasie ścieralności.
Na powierzchnię 51,26 m2 składają się:
- przestronny korytarz z trzydrzwiową szafą do przechowywania odzieży oraz sprzętów czyszczących,
- duża łazienka z dwoma oknami, wykończona stylowymi płytkami i gresem,
- jasny salon z aneksem kuchennym, podzielony na strefę kulinarną, jadalną oraz wypoczynkową,
- cicha sypialnia z podwójnym łóżkiem oraz szafą.
Na życzenie nabywców wyposażenie może pozostać w mieszkaniu (kanapa z Agata Meble z funkcją spania, rozkładany stół i krzesła welurowe z Komfortu, szafka rtv, zaciemniające zasłony welurowe, łóżko drewniane, szafa z lustrami w sypialni oraz zabudowa w przedpokoju), co będzie dużą oszczędnością czasu i pieniędzy przy zamieszkaniu.
Obrazy widoczne na zdjęciach pochodzą z Galerii VD Justyny Kuligowskiej i mogą zostać zakupione za dodatkową opłatą (cena do uzgodnienia).
Niskie koszty utrzymania są ogromnym atutem - czynsz wynosi zaledwie 281 zł przy 1 osobie.
Oferta na wyłączność, klucze w biurze.
Serdecznie polecam ze względu na wyjątkowy charakter nieruchomości, czysty i zadbany budynek oraz doskonałą lokalizację zarówno do samodzielnego zamieszkania, jak i pod inwestycję!
Zapraszam na prezentację.
| Rodzaj oferty | Mieszkanie na sprzedaż | ||
|---|---|---|---|
| Liczba pokoi | 2 | ||
| Liczba łazienek | 1 | ||
| Liczba pięter | 4 | ||
| Powierzchnia | 51 m2 | ||
| Cena | 529 000 zł (10 319 zł/m2) | ||
| Forma prawna | Własność | ||
| Rodzaj budynku | Niski blok | ||
| Rok budowy | 1930 | ||
| Materiał | Cegła | ||
| Rodzaj ogrzewania | gazowe | ||
| Komunikacja | tramwaj, autobus | ||
| Dostępne w okolicy | sklep, Żłobek, przychodnia lekarska, uczelnia, bank, fitnes, centrum handlowe, restauracja, przedszkole, szkoła, kościół, plac zabaw, apteka, zabudowa niska | ||
| Dodatkowo | piwnica     |