Mieszkanie na sprzedaż
| Lokalizacja | Szczecin Centrum | |
|---|---|---|
| Numer oferty | INS21870 | |
| Rodzaj budynku | Wysoki blok | |
| Rok budowy | 2023 | |
| Materiał | Silikat | |
| Liczba pokoi | 3 | |
| Powierzchnia | 53 m2 | |
| Cena | 638 000 zł |
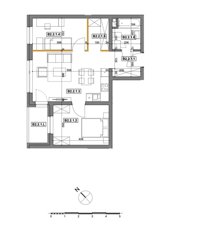
Na sprzedaż mieszkanie o powierzchni 53,33m2 w standardzie deweloperskim. Klucze do mieszkania w 06-07.2024r.
Nieruchomość składa się z:
- holu 4,03m2,
- pokoju dziennego z aneksem kuchennym 20,05m2,
- sypialni 11,65m2
- sypialni 9,04m2
- łazienki 4,34m2,
- wnęki na szafę 3,40m2.
Dodatkowo loggia o pow. 3,37 m2.
Doskonała lokalizacja jest bez wątpienia jednym z największym atutów nieruchomości. Najbliższe otoczenie zapewnia mieszkańcom ciszę i spokój, ponieważ znajduje się w drugiej linii zabudowy od głównej ulicy, jednocześnie korzystając z atrakcji i uroków miasta.
W okolicy wszystko w zasięgu ręki - liczne sklepy, szkoły, przedszkola, komunikacja miejska.
Osiedle bardzo dobrze skomunikowane z centrum miasta!
Atuty nieruchomości:
* nowoczesna modernistyczna architektura
* funkcjonalny układ przestrzenny mieszkania,
* cichobieżne windy w każdej klatce schodowej,
* miejsca parkingowe w podziemnych garażach
* indywidualne komórki lokatorskie w podziemnym garażu
* plac zabaw dla najmłodszych,
* inwestycja przyjazna dla osób niepełnosprawnych,
* rekreacyjny dziedziniec z ciągami spacerowymi.
Istnieje możliwość zakupu komórki lokatorskiej w cenie od 16400 zł oraz miejsca parkingowego w podziemnej hali garażowej w cenie od 72 600 zł.
Planowane oddanie inwestycji do użytku - lipiec - sierpień 2024 roku.
0% PCC ! Cena do neg.
| Rodzaj oferty | Mieszkanie na sprzedaż | ||
|---|---|---|---|
| Liczba pokoi | 3 | ||
| Liczba łazienek | 1 | ||
| Liczba pięter | 6 | ||
| Powierzchnia | 53 m2 | ||
| Cena | 638 000 zł (11 990 zł/m2) | ||
| Forma prawna | Własność | ||
| Forma prawna gruntu | Własność | ||
| Rodzaj budynku | Wysoki blok | ||
| Rok budowy | 2023 | ||
| Droga dojazdowa | Asfaltowa | ||
| Materiał | Silikat | ||
| Stan budynku | Bardzo dobry | ||
| Rodzaj ogrzewania | co miejskie | ||
| Komunikacja | tramwaj, autobus | ||
| Odległość od centrum miasta | 3 km | ||
| Dostępne w okolicy | sklep, fitnes, centrum handlowe, plac zabaw, bank, hala sportowa, szkoła, przedszkole, restauracja, basen | ||
| Dodatkowo | przystosowane dla niepełnosprawych    internet    telewizja kablowa    piwnica    winda     |