POWIERZCHNIA (M²)

CENA ZA M²

PIĘTRO

LICZBA POKOI

ROK BUDOWY

RYNEK

NUMER OFERTY

Poprzednia oferta
Powrót
Następna oferta

Piękny nowy apartament na Warszewie

Wynajem mieszkania

Lokalizacja Szczecin Warszewo
Galaktyki
Numer oferty EXT24813
Rodzaj budynku Budynek apartamentowy
Rok budowy 2022
Materiał Cegła
Liczba pokoi 3
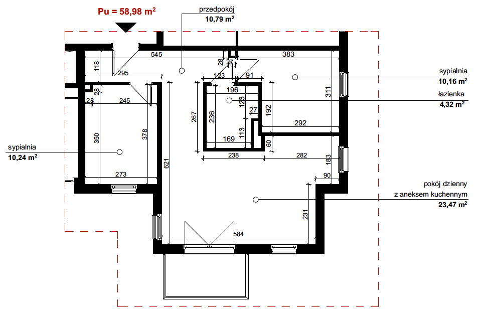
Powierzchnia 58 m2
Cena 3 600 zł

Opis

Oferujemy do wynajmu nowy, niezamieszkiwany dotąd apartament 3 pokojowy  na osiedlu Galaktyka w Szczecinie. 

OFERTA
| Na wynajem komfortowe, wykończone w wysokim standardzie . Kuchnia i łazienka są w pełni wyposażone, a w nich wszystkie niezbędne sprzęty AGD potrzebne przyszłemu najemcy takie jak: pralka, zmywarka, płyta indukcyjna, lodówko-zamrażarka.

Dodatkowo zamontowano duże pojemne szafy widoczne na zdjęciach.
 
Mieszkanie znajduje się na 1. piętrze 2-piętrowego bloku w nowoczesnej inwestycji na Warszewie  .

- salon z wyjściem na balkon
- 2 sypialnie o powierzchni 10 mkw każda
- kuchnia z oknem, otwarta, w pełni wyposażona w zabudowę oraz AGD
- łazienka z prysznicem i pralką
- przedpokój
- zadaszony balkon
- zamykany garaż w podziemnym garażowcu - zjazd windą 

LOKALIZACJA | Szczecin | Warszewo | Os. Galaktyka

SZCZEGÓŁY | Nieruchomość jest kompletnie nowa, nigdy nie była wynajmowana. Lokal narożny - ekspozycja okien dwustronna:  Północno-Zachodnia. Mieszkanie świeżo wykończone, gustownie urządzone, w wysokim standardzie. Jest przestronne, komfortowe i jasne.  Istnieje możliwość uzgodnienia z Wynajmującą częściowego umeblowania mieszkania. Mieszkanie jest bardzo ustawne i daje wiele możliwości aranżacyjnych.  Ciepła woda i ogrzewanie z sieci miejskiej SEC [CO]. Dostawcami Internetu światłowodowego w budynku jest UPC oraz Orange.  Przed budynkiem ogólnodostępne miejsca postojowe dla mieszkańców. Nieruchomość jest gotowa do wynajęcia od zaraz. 

Do mieszkania przynależy garaż w podziemnym garażowcu [w bryle budynku], zamykany, bezpośredni dostęp windą. 
Płatny dodatkowo

OPŁATY 
Czynsz najmu - 3600 PLN
Czynsz administracyjny - 350 PLN

Dodatkowo płatne media wg zużycia: energia ; ZWiK - zimna woda ; SEC - ogrzewanie i ciepła woda 
Kaucja - 3600 PLN 

Wymagany najem okazjonalny oraz długoterminowy - minimum rok. Istnieje możliwość uzgodnienia kwestii zwierząt - małych, nieuciążliwych.

DLA KOGO? | Dla tych, co chcą mieszkać w otoczeniu zieleni nie tracąc jednocześnie możliwości bardzo szybkiego dotarcia do ścisłego centrum miasta oraz dostępu do pełnej infrastruktury handlowo-usługowej. Dla osób szukających wytchnienia od gwaru miasta, ceniących sobie wygodę, spokój i przestrzeń. W pobliżu Szkoła Podstawowa, dyskonty, lokale usługowe, przedszkole, park i wiele innych.

W BEZPOŚREDNIEJ ODLEGŁOŚCI: 
Paczkomat - 120m
Żabka - 150m
BERLIN DÖNER KEBAP - 150m
Poczta - 500m
Weterynarz -550,m
Przedszkole - 630m / 1 km
Domino's - 650m
E. Leclerc - 700m
Apteka - 700m / 800m
Biedronka - 800m
Boisko - 950m / 1.4 km
Szkoła Postawowa - 1.2 km
Stara Cegielnia - 1.5 km

Oferta na wyłączność.
Zapraszam do kontaktu! 
We offer for rent a new, uninhabited 3-room apartment in the Galaktyka housing estate in Szczecin.

OFFER
 | Comfortable, finished to a high standard for rent. The kitchen and bathroom are fully equipped with all the necessary household appliances needed by the future tenant, such as: washing machine, dishwasher, induction hob, fridge-freezer.

Additionally, large, spacious wardrobes visible in the photos were installed.
The apartment is located on the 1st floor of a 2-story block in a modern investment in Warsaw.

- living room with access to the balcony
- 2 bedrooms with an area of 10 sq m each
- open kitchen with a window, fully equipped with built-in furniture and household appliances
- bathroom with shower and washing machine
- hall
- covered balcony
- closed garage in an underground garage - access by elevator

LOCATION | Szczecin | Warszewo | Os. Galaxy

DETAILS | The property is completely new , has never been rented . Corner premises - two-sided window exposure: North-West. The apartment is freshly finished, tastefully decorated, to a high standard. It is spacious, comfortable and bright. It is possible to agree on partial furnishing of the apartment with the Landlord . The apartment is very spacious and offers many arrangement possibilities.   Hot water and heating from the SEC [CO] municipal network . The fiber optic Internet providers in the building are UPC and Orange. Public parking spaces for residents are available in front of the building. The property is ready for rent immediately.

The apartment includes a garage in an underground garage [in the building], closed, direct access by elevator.
Paid additionally

FEES
Rent - PLN 3,600
Administrative rent - PLN 350

Additionally paid utilities according to consumption: energy; ZWiK - cold water; SEC - heating and hot water
Deposit - PLN 3,600

Occasional and long-term rental required - minimum one year . It is possible to agree on the issue of animals - small, not bothersome.

FOR WHOM? | For those who want to live surrounded by greenery without losing the ability to quickly reach the city center and have access to full commercial and service infrastructure. For people looking for respite from the bustle of the city, who value comfort, peace and space. Nearby there is a primary school, discount stores, service premises, a kindergarten, a park and much more.

IN THE IMMEDIATE DISTANCE:
Parcel locker - 120m
Żabka - 150m
BERLIN DÖNER KEBAP - 150m
Post office - 500m
Veterinarian -550, m
Kindergarten - 630m / 1 km
Domino's - 650m
E. Leclerc - 700m
Pharmacy - 700m / 800m
Biedronka - 800m
Playing field - 950m / 1.4 km
Primary School - 1.2 km
Stara Brickyard - 1.5 km

Exclusive offer.
Feel free to contact me!


Szczegóły
Rodzaj oferty Wynajem mieszkania
Liczba pokoi 3
Liczba łazienek 1
Liczba pięter 2
Powierzchnia 58 m2
Cena 3 600 zł (64 zł/m2)
Forma prawna Własność
Rodzaj budynku Budynek apartamentowy
Rok budowy 2022
Materiał Cegła
Rodzaj ogrzewania co miejskie
Komunikacja autobus
Dostępne w okolicy plac zabaw, park, zabudowa niska, las, szkoła, sklep
Dodatkowo winda