Wynajem obiektu komercyjnego
| Lokalizacja |
Stargard Metalowa |
|
|---|---|---|
| Numer oferty | SCN22233 | |
| Rodzaj budynku | Magazynowo-biurowy | |
| Rok budowy | 2014 | |
| Materiał | Stal | |
| Powierzchnia | 3000 m2 | |
| Działka | 8000 m2 | |
| Cena | 43 500 zł |
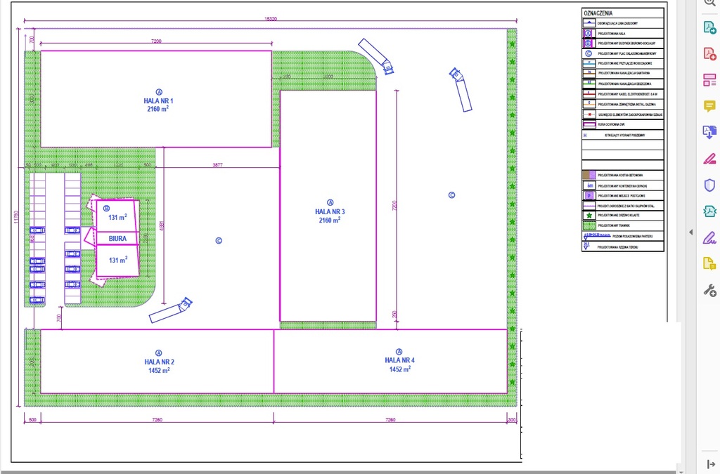
Nieruchomość zlokalizowana w Parku Nowoczesnych Technologii. Składa się z 4 hal o powierzchni 2 x 1450m2 i 2 x 2160m2 i budynku socjalno biurowego o pow. ok. 600m2. Wjazd do hal z poziomu "0", wysokość budynków 6,5m, posadzki bezpyłowe o nośności do 5000 kg/m2, świetliki dachowe w każdym budynku. Budynek biurowy dwukondygnacyjny z możliwością różnej aranżacji, wyposażony we wszystkie instalacje. Utwardzony plac do składowania, a cały teren jest ogrodzony. Możliwość wynajmu powierzchni magazynowej od 1450m2 do 7200m2 w cenie 14,5 pln netto/m2. Działka blisko 2 ha.
| Rodzaj oferty | Wynajem obiektu komercyjnego | ||
|---|---|---|---|
| Powierzchnia | 3000 m2 | ||
| Działka | 8000 | ||
| Cena | 43 500 zł (14 zł/m2) | ||
| Forma prawna | Własność | ||
| Forma prawna gruntu | Własność | ||
| Rodzaj budynku | Magazynowo-biurowy | ||
| Rok budowy | 2014 | ||
| Droga dojazdowa | Asfaltowa | ||
| Materiał | Stal | ||
| Stan budynku | Idealny | ||
| Dodatkowo | monitoring     |