Lokal usługowy na sprzedaż
| Lokalizacja | Szczecin Centrum | |
|---|---|---|
| Numer oferty | CIT23211 | |
| Rodzaj budynku | Kamienica | |
| Rok budowy | 1900 | |
| Powierzchnia | 131 m2 | |
| Cena | 1 290 000 zł |
***TYLKO U NAS***
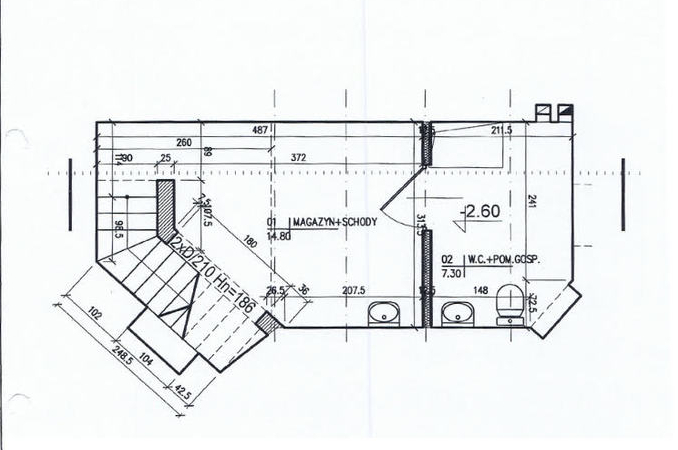
Do sprzedaży atrakcyjny lokal użytkowy, położony w jednej z najbardziej pożądanych lokalizacji w mieście, przy Placu Kościuszki. Lokal znajduje się na wysokim parterze w kamienicy z bezpośrednim wejściem z ulicy po kilku stopniach. W 2008 r został przeprowadzony remont kapitalny pod nadzorem kierownika budowy (pełna dokumentacja). Powierzchnia użytkowa wynosi 131,20 m2, na którą składają się dwie kondygnacje: na parterze 109,10 m2 stanowi sala sprzedaży i pokój biurowy (obecnie dodatkowo wydzielone zaplecze), bezpośrednio z tego poziomu jest zajście do zagospodarowanej piwnicy 22,10 m2 z częścią magazynową oraz wc i pomieszczeniem gospodarczym. Wykończenie w wysokim standardzie, witryna i drzwi wejściowe PCV w drewnopodobnej okleinie, posadzki wyłożona gresem polerowanym, podwieszane sufity. Ogrzewanie i ciepła woda z pieca gazowego dwuobiegowego (ogrzewanie podłogowe). Lokal dodatkowo wyposażony w system alarmowy, wentylację oraz klimatyzację. Przed nieruchomością właściciel dzierżawi od miasta część gruntu 59 m2 z możliwością przeznaczenia np. na ogródek gastronomiczny w przypadku zmiany charakteru prowadzonej działalności.
Zapraszam zainteresowanych tym bardziej, że położenie, funkcjonalność i standard lokalu pozwalają na prowadzenie działalności w wielu branżach: handel, usługi, gastronomia, medycyna, kosmetologia, kancelarie, biura i in.
| Rodzaj oferty | Lokal usługowy na sprzedaż | ||
|---|---|---|---|
| Liczba pięter | 3 | ||
| Powierzchnia | 131 m2 | ||
| Cena | 1 290 000 zł (9 832 zł/m2) | ||
| Forma prawna | Własność | ||
| Forma prawna gruntu | Użytkowanie wieczyste | ||
| Rodzaj budynku | Kamienica | ||
| Rok budowy | 1900 | ||
| Stan budynku | Dobry | ||
| Dodatkowo | klimatyzacja    piwnica    monitoring     |