Lokal usługowy na sprzedaż
| Lokalizacja |
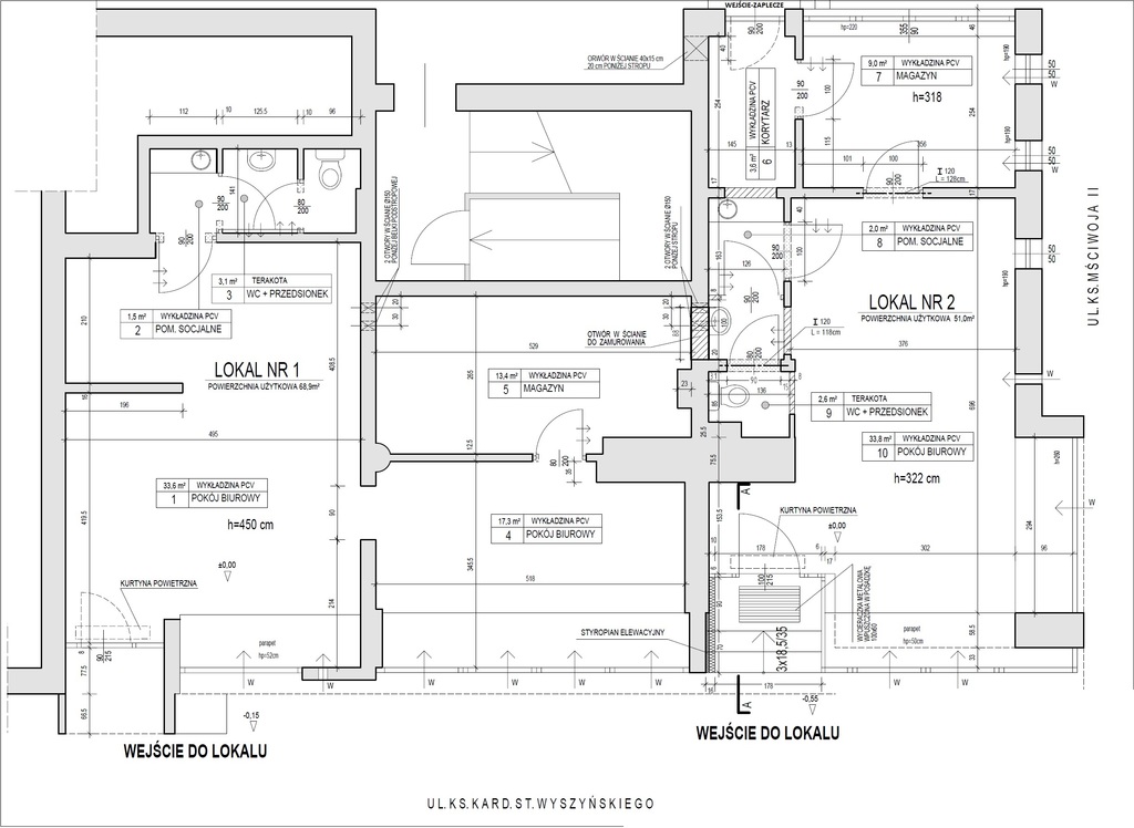
Szczecin ul. ks. kard. Stefana Wyszyńskiego |
|
|---|---|---|
| Numer oferty | WPN20019 | |
| Rodzaj budynku | Niski blok | |
| Rok budowy | 1970 | |
| Materiał | Cegła | |
| Liczba pokoi | 5 | |
| Powierzchnia | 125 m2 | |
| Cena | 1 980 000 zł |
Do sprzedania jest lokal komercyjny. Posiada klimatyzację i CO miejskie. Obecnie podzielony jest na dwa mniejsze z osobnymi wejściami z czego jeden o pow. 70 m2 to sklep, a drugi o pow. 55 m2 to punk gastronomiczny. Punk gastronomiczny ma dwa wejścia od ulicy i jedno od zaplecza. Lokal położony w bardzo atrakcyjnej części miasta przy ciągu handlowym i głównej arterii komunikacyjne Szczecina, ulicy Ks. Kard. St. Wyszyńskiego, dodatkowo usytuowany w bezpośrednim sąsiedztwie przystanków komunikacji miejskiej autobusowych i tramwajowych. Dodatkowym atutem też jest lokalizacja w lokalu dwóch bankomatów. Lokalizacja gwarantuje duży przepływ pieszych i pojazdów. Lokal jest wynajęty i przynosi stały dochód z 12 letnią stopą zwrotu.
| Rodzaj oferty | Lokal usługowy na sprzedaż | ||
|---|---|---|---|
| Liczba pokoi | 5 | ||
| Liczba łazienek | 2 | ||
| Liczba pięter | 4 | ||
| Powierzchnia | 125 m2 | ||
| Cena | 1 980 000 zł (15 840 zł/m2) | ||
| Forma prawna | Własność | ||
| Forma prawna gruntu | Użytkowanie wieczyste | ||
| Rodzaj budynku | Niski blok | ||
| Rok budowy | 1970 | ||
| Materiał | Cegła | ||
| Stan budynku | Bardzo dobry | ||
| Rodzaj ogrzewania | co miejskie | ||
| Komunikacja | kolej, autobus, tramwaj | ||
| Dodatkowo | klimatyzacja     |