Dom na sprzedaż
| Lokalizacja | Bezrzecze | |
|---|---|---|
| Numer oferty | ELT34456 | |
| Rok budowy | 2026 | |
| Materiał | Cegła | |
| Liczba pokoi | 5 | |
| Powierzchnia | 128 m2 | |
| Działka | 400 m2 | |
| Cena | 1 250 000 zł |
Na sprzedaż nowoczesny, komfortowy bliźniak w stanie deweloperskim na Bezrzeczu.
Do każdego lokalu przynależą dwa miejsca parkingowe ( możliwość zrobienia wiaty, duża odległość między budynkami ).
Wszystkie media gminne : prąd , gaz, kanalizacja sanitarna i kanalizacja deszczowa .
Standard deweloperski :
- ogrzewanie podłogowe na parterze i na piętrze .
- ściany zewnętrzne porotherm 25 cm + styropian grafitowy 15 cm + tynk.
- okna PCV trzyszybowe, w salonie drzwi tarasowe przesuwne.
- ściana pomiędzy lokalami silka akustyczna 24 cm Klasa 20.
- piec gazowy, SAUNIER DUVAL - THELIA CONDENS.
- w stropie przygotowany otwór - możliwość montażu kominka .
- strop poddasza, ocieplony wełną mineralną 20cm.
- dach docieplony pianą PUR.
- instalacja wodno-kanalizacyjna, elektryczna.
- instalacja TV i internetowa.
- tynki maszynowe gipsowe.
- Posadzki betonowe.
- dachówka BRAS CELTYCKA Cisar, kolor grafitowy.
- Rynny i rury spustowe.
- Obróbki kominiarskie.
- drzwi wejściowe PANTOR 72 mm ciepłe.
Zagospodarowanie terenu:
- miejsca parkingowe i dojście do lokalu z kostki brukowej
- Ogrodzenie systemowe panelowe ( bez frontu )
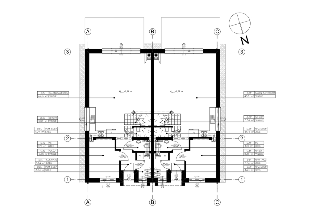
Na powierzchnię 128m2 składają się na parterze :
- salon z aneksem o pow. 40,81m2
- pokój o pow. 9,85 m2 / możliwość zrobienia osobnej kuchni.
- toaleta o pow. 1,76 m2
- pom. gospodarcze o pow. 3 m2
- pom. gospodarcze o pow. 0,74 m2
- schody o pow. 5,3 m2
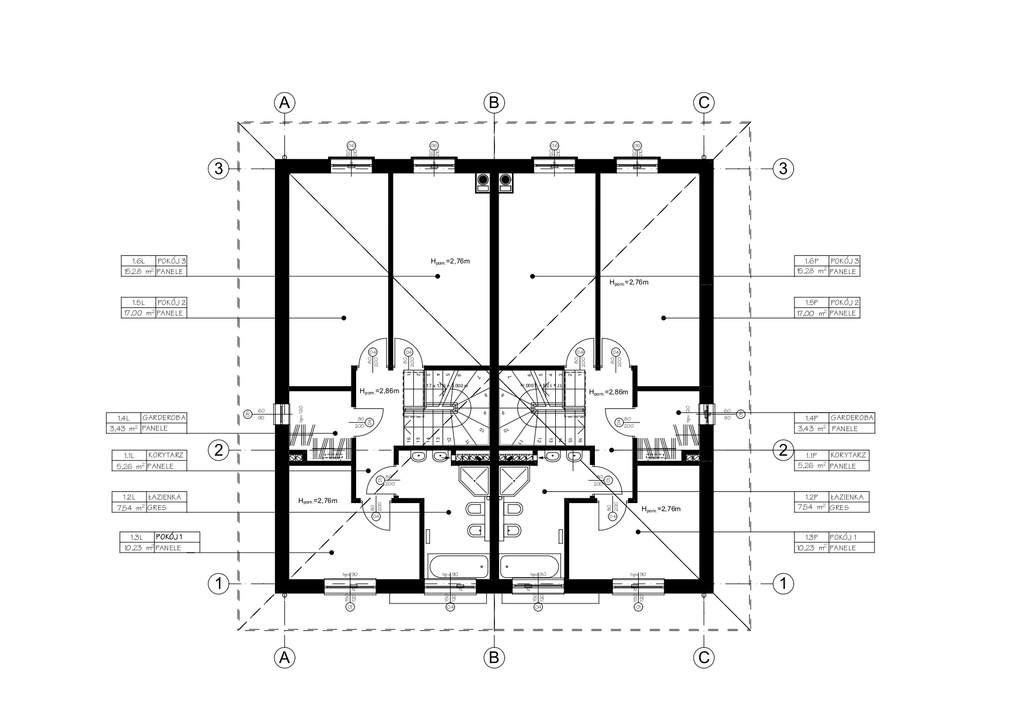
Piętro ( bez skosów ) :
- pokój o pow. 17 m2
- pokój o pow. 15,28 m2
- pokój o pow. 10,23 m2
- garderoba o pow. 3,43 m2
- łazienka razem z toaletą o pow, 7,5m2
- korytarz o pow. 5,26 m2
Doskonała lokalizacja, nowoczesny dom w zabudowie bliźniaczej w cichym kameralnym miejscu na Bezrzeczu.
Kupujący zwolniony z opłaty PCC, 2 % do Urzędu Skarbowego.
Polecam i zapraszam na prezentację
| Rodzaj oferty | Dom na sprzedaż | ||
|---|---|---|---|
| Liczba pokoi | 5 | ||
| Liczba łazienek | 1 | ||
| Liczba pięter | 1 | ||
| Powierzchnia | 128 m2 | ||
| Działka | 400 | ||
| Cena | 1 250 000 zł (9 765 zł/m2) | ||
| Forma prawna | Własność | ||
| Rok budowy | 2026 | ||
| Droga dojazdowa | Asfaltowa | ||
| Materiał | Cegła | ||
| Stan budynku | Stan deweloperski | ||
| Rodzaj ogrzewania | gazowe | ||
| Komunikacja | autobus | ||
| Odległość od centrum miasta | 2 km | ||
| Dostępne w okolicy | gimnazjum, apteka, zabudowa niska, sklep, bank, fitnes, las, kościół, centrum handlowe, szpital, przedszkole, szkoła | ||
| Dodatkowo | alarm    internet    telewizja kablowa    kominek    ogród     |