Wynajem lokalu usługowego
| Lokalizacja |
Szczecin Pomorzany Smolańska |
|
|---|---|---|
| Numer oferty | ELT34424 | |
| Rodzaj budynku | Budynek biurowy | |
| Rok budowy | 1964 | |
| Materiał | Wielka Płyta | |
| Liczba pokoi | 1 | |
| Powierzchnia | 96 m2 | |
| Cena | 3 871 zł |
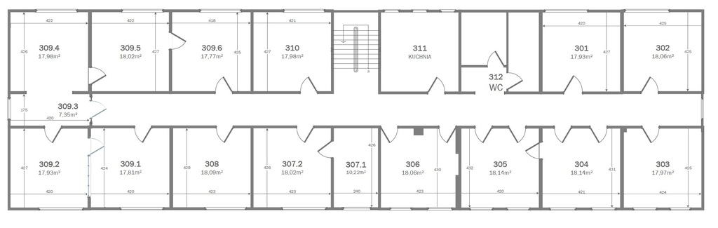
Na wynajem lokal mieszczący się na III piętrze w biurowcu znajdującym się przy pętli Pomorzany.
Biuro o powierzchni 96,79 m2, składające się z 5 klimatyzowanych pokoi.
Biura są po remoncie - gotowe do wynajęcia, na podłogach ułożono panele a ściany zostały odmalowane.
Na każdym piętrze znajduje się WC oraz pomieszczenie socjalne dostępne dla najemców.
Czynsz najmu wynosi od 46zł/m² + VAT. (w czynszu wliczone są opłaty za: wodę, ogrzewanie, śmieci). Dodatkowo płatny jest prąd według zużycia oraz Internet - 50 zł/mc (w budynku światłowód Orange).
Dla najemców dostępne są miejsca parkingowe na terenie obiektu w cenie 150 zł/mc za miejsce postojowe.
W budynku dostępne są biura o zróżnicowanych powierzchniach od 10 m2 do ok. 300 m2 (całe piętro). Istnieje możliwość aranżacji pomieszczeń według własnych potrzeb. Biura są przeznaczone do prowadzenia działalności biurowej oraz usługowej.
Zapraszam do kontaktu i na prezentację.
| Rodzaj oferty | Wynajem lokalu usługowego | ||
|---|---|---|---|
| Liczba pokoi | 1 | ||
| Liczba łazienek | 1 | ||
| Liczba pięter | 4 | ||
| Powierzchnia | 96 m2 | ||
| Cena | 3 871 zł (46 zł/m2) | ||
| Forma prawna | Własność | ||
| Rodzaj budynku | Budynek biurowy | ||
| Rok budowy | 1964 | ||
| Materiał | Wielka Płyta | ||
| Stan budynku | Dobry | ||
| Rodzaj ogrzewania | co miejskie | ||
| Komunikacja | tramwaj, autobus | ||
| Odległość od centrum miasta | 5 km | ||
| Dodatkowo | internet    monitoring     |