POWIERZCHNIA (M²)

CENA ZA M²

PIĘTRO

LICZBA POKOI

ROK BUDOWY

RYNEK

NUMER OFERTY

Poprzednia oferta
Powrót
Następna oferta

2 pokoje w centrum Szczecina

Mieszkanie na sprzedaż

Lokalizacja Szczecin Śródmieście-Centrum
ul. Strzelecka
Numer oferty NYC21449
Rodzaj budynku Niski blok
Rok budowy 1930
Materiał Cegła
Liczba pokoi 2
Powierzchnia 30 m2
Cena 366 960 zł

Opis

2-pokoje w doskonałej lokalizacji - wysoki standard wykończenia!

Mieszkanie znajduje się na 3 piętrze niskiego budynku, powstało w wyniku adaptacji poddasza. 

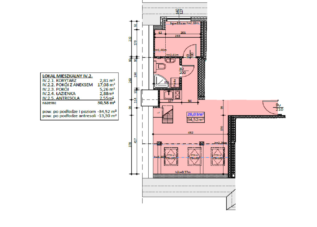
Powierzchnia użytkowa lokalu to 30,58m2, natomiast powierzchnia całkowita to 47,82 m2!

Mieszkanie posiada strefę dzienną z aneksem kuchennym, łazienkę oraz antresolę, co maksymalnie zwiększa komfort użytkowania i atrakcyjność tego lokalu.
Całość wykończona w wysokim standardzie, bez konieczności ponoszenia dodatkowych nakładów finansowych.
W pokojach na podłogach panele, ściany i listwy przypodłogowe białe - co optycznie powiększa nam pomieszczenia. Łazienka z prysznicem wykończona w stylowy sposób. 
W mieszkaniu zastosowano ogrzewanie podłogowe (promienniki podczerwieni), w lokalu nie ma gazu - co dodatkowo zwiększa poczucie bezpieczeństwa.
Wysoki standard wykończenia podwyższa atrakcyjność tej oferty.

Dodatkowo do mieszkania przynależy piwnica - zostanie wydzielona po odbiorze. W gratisie przyszli właściciele zyskują również OGRÓDEK z tyłu budynku.
Elewacja bloku oraz klatka zostały odnowione.

Nieruchomość położona jest w cichej i spokojnej okolicy, ale nadal w centrum i z doskonałą infrastrukturą w pobliżu - nieopodal znajdują się sklepy, punkty usługowe, komunikacja miejska i tereny zielone.
Idealna propozycja jako inwestycja, która może generować stabilny dochód od pierwszego dnia - bez rementów, stresów i zbędnego czekania.

Nie czekaj, umów się na prezentację i sam przekonaj się o wyjątkowości tej oferty.
Zapraszam!


Szczegóły
Rodzaj oferty Mieszkanie na sprzedaż
Liczba pokoi 2
Liczba łazienek 1
Liczba pięter 3
Powierzchnia 30 m2
Cena 366 960 zł (12 000 zł/m2)
Forma prawna Własność
Rodzaj budynku Niski blok
Rok budowy 1930
Materiał Cegła
Rodzaj ogrzewania promienniki podczerwieni
Komunikacja tramwaj, autobus
Dostępne w okolicy sklep, kościół, bank, park, apteka, restauracja, przychodnia lekarska, przedszkole, plac zabaw, zabudowa niska, szpital, szkoła