POWIERZCHNIA (M²)

CENA ZA M²

PIĘTRO

LICZBA POKOI

ROK BUDOWY

RYNEK

NUMER OFERTY

Poprzednia oferta
Powrót
Następna oferta

dwa mieszkania w cenie jednego! HIT

Mieszkanie na sprzedaż

Lokalizacja Szczecin Śródmieście-Centrum
ul. Strzelecka
Numer oferty NYC21448
Rodzaj budynku Niski blok
Rok budowy 1930
Materiał Cegła
Liczba pokoi 4
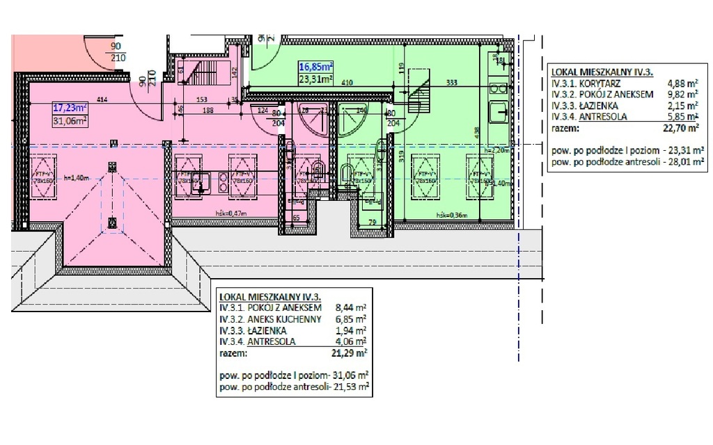
Powierzchnia 43 m2
Cena 571 870 zł

Opis

Totalny HIT INWESTYCYJNY!

Jedno mieszkanie - podwójny potencjał inwestycyjny!
Na sprzedaż wyjątkowa nieruchomość obejmująca dwa w pełni funkcjonalne, niezależne lokale - sprzedawane jako jedna całość.
To doskonałe rozwiązanie dla inwestora - kupujesz jedno mieszkanie, a faktycznie zyskujesz dwa gotowe do wynajmu apartamenty.

Powierzchnia użytkowa obu lokali to 43,99m2, natomiast powierzchnia całkowita to AŻ 103,81 m2!

Obie części zostały zaprojektowane w przemyślany sposób - każda posiada własną strefę dzienną z aneksem kuchennym, łazienkę oraz antresolę, co maksymalnie zwiększa komfort użytkowania i atrakcyjność najmu. 
Całość wykończona w wysokim standardzie, bez konieczności ponoszenia dodatkowych nakładów finansowych.
W pokojach na podłogach panele, ściany i listwy przypodłogowe białe - co optycznie powiększa nam pomieszczenia. Łazienka z prysznicem wykończona w stylowy sposób z przewagą czerni. 
W mieszkaniach zastosowano ogrzewanie podłogowe (promienniki podczerwieni), w lokalach nie ma gazu - co dodatkowo zwiększa poczucie bezpieczeństwa.
Wysoki standard wykończenia podwyższa atrakcyjność tej oferty.

Dodatkowo do mieszkania przynależy piwnica - zostanie wydzielona po odbiorze. W gratisie przyszli właściciele zyskują również OGRÓDEK z tyłu budynku.
Elewacja bloku oraz klatka zostały odnowione.

Nieruchomość położona jest w cichej i spokojnej okolicy, ale nadal w centrum i z doskonałą infrastrukturą w pobliżu - nieopodal znajdują się sklepy, punkty usługowe, komunikacja miejska i tereny zielone.
To gotowa inwestycja, która może generować stabilny dochód od pierwszego dnia - bez rementów, stresów i zbędnego czekania.

Nie czekaj, umów się na prezentację i sam przekonaj się o wyjątkowości tej oferty.
Zapraszam!


Szczegóły
Rodzaj oferty Mieszkanie na sprzedaż
Liczba pokoi 4
Liczba łazienek 2
Liczba pięter 2
Powierzchnia 43 m2
Cena 571 870 zł (13 000 zł/m2)
Forma prawna Własność
Rodzaj budynku Niski blok
Rok budowy 1930
Materiał Cegła
Rodzaj ogrzewania promienniki podczerwieni
Komunikacja tramwaj, autobus
Dostępne w okolicy sklep, kościół, apteka, restauracja, przychodnia lekarska, bank, park, plac zabaw, zabudowa niska, przedszkole, szpital, szkoła