Mieszkanie na sprzedaż
| Lokalizacja |
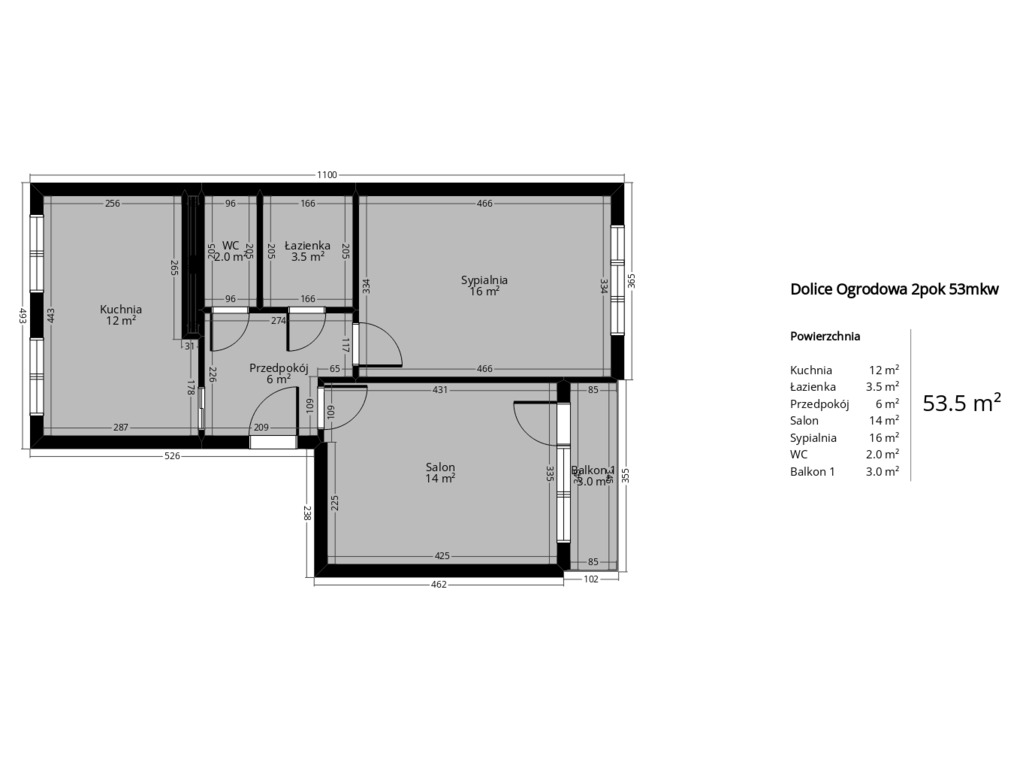
Dolice Ogrodowa |
|
|---|---|---|
| Numer oferty | 137/13324/O | |
| Rodzaj budynku | Niski blok | |
| Rok budowy | 1985 | |
| Materiał | Beton | |
| Liczba pokoi | 2 | |
| Powierzchnia | 53 m2 | |
| Cena | 219 000 zł |
Na sprzedaż przestronne, rozkładowe mieszkanie o powierzchni 53,5 m², położone na 2. piętrze niskiego bloku w miejscowości Dolice. Lokal jest jasny i funkcjonalny, z dużą, widną kuchnią. Niedaleko znajduje się sklep spożywczy, szkoła podstawowa i przedszkole.
Mieszkanie:
- pow. 53,5 mkw
- piętro 2/2
- duży przedpokój
- 2 rozkładowe, słoneczne pokoje
- duża, widna kuchnia
- łazienka z prysznicem, miejscem na pralkę i umywalką
- osobno wc
- balkon
- czynsz przy trzech osobach z zaliczkami na wodę ok 500 zł
- ogrzewanie i ciepła woda z pieca gazowego
- ekspozycja okien na północ (kuchnia) i południe (pokoje)
Budynek:
- niski blok
- duża piwnica o pow. 7,5 mkw. przynależna do mieszkania oraz pomieszczenie wspólne (wózkownia)
Okolica:
Dolice – wieś w Polsce, położona w województwie zachodniopomorskim, w powiecie stargardzkim, w gminie Dolice, 20,5 km na południowy wschód od Stargardu. Miejscowość posiada podstawowe elementy infrastruktury potrzebne do codziennego życia – m.in. szkołę, sklepy oraz instytucje publiczne obsługujące mieszkańców gminy. Do Stargardu dojazd zajmuje 25 minut. Przez Dolice kursują pociągi regionalne Polregio m.in. do Choszczna, a także odbywają się przewozy autobusowe publicznego transportu, zapewniając dobrą komunikację.
Ważne:
- Do mieszkania przynależy duży murowany garaż o pow. 17,7 mkw. Do garażu doprowadzony jest prąd.
- Czynsz przy trzech osobach z zaliczkami na wodę, śmieci itp. ok. 500 zł
- pełna własność z KW
| Rodzaj oferty | Mieszkanie na sprzedaż | ||
|---|---|---|---|
| Liczba pokoi | 2 | ||
| Liczba łazienek | 1 | ||
| Liczba pięter | 2 | ||
| Powierzchnia | 53 m2 | ||
| Cena | 219 000 zł (4 093 zł/m2) | ||
| Forma prawna | Własność | ||
| Rodzaj budynku | Niski blok | ||
| Rok budowy | 1985 | ||
| Materiał | Beton | ||
| Rodzaj ogrzewania | gazowe | ||
| Komunikacja | autobus |