Dom na sprzedaż
| Lokalizacja |
Mierzyn ul. Teresy |
|
|---|---|---|
| Numer oferty | GHS20506 | |
| Rok budowy | 2014 | |
| Materiał | Pustak | |
| Liczba pokoi | 7 | |
| Powierzchnia | 335 m2 | |
| Działka | 1001 m2 | |
| Cena | 3 690 000 zł |
Na sprzedaż elegancka, ponadczasowa rezydencja położona w jednej z najbardziej prestiżowych części Mierzyna.
Dom zachwyca wysoką jakością wykonania, przestrzenią oraz prywatnością, którą zapewnia kameralna uliczka dostępna wyłącznie dla mieszkańców.
To idealna propozycja dla osób, które szukają komfortowego domu z dużym ogrodem, gdzie można odpocząć od miejskiego tempa życia. Wiosną ogród staje się prawdziwą oazą zieleni – miejscem relaksu, spotkań z bliskimi i codziennej przyjemności z mieszkania w wyjątkowym miejscu.
Nieruchomość została wybudowana w 2014 roku z materiałów wysokiej klasy, a każdy detal został przemyślany pod kątem komfortu i trwałości.
Najważniejsze informacje:
• cena do indywidualnej negocjacji
• powierzchnia domu: 335,62 m²
• powierzchnia działki: 1001 m²
• garaż dwustanowiskowy w bryle budynku
• kameralna, prywatna uliczka (wjazd tylko dla mieszkańców)
• instalacja fotowoltaiczna
• ogrzewanie gazowe nadmuchowe + ogrzewanie podłogowe w łazienkach
• drewniane okna trzyszybowe
• moskitiery w trzech sypialniach
• miedziane rynny zewnętrzne
• pięknie zaprojektowany ogród z dbałością o każdy detal
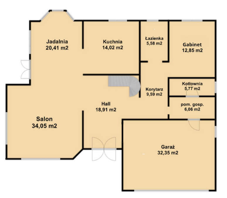
Parter - 167,81 m2 :
・ Hol - podłoga marmurowa
・Salon z kominkiem - obudowa marmurowa, wsad Hajduk + wbudowane kino domowe (południowy zachód)
・Jadalnia z wyjściem na taras i ogród(podłoga deska Merbau olejowana), (północny zachód)
・Kuchnia wykonana z najwyższej klasy materiałów (blaty i parapety granit) (północny zachód)
・Schody z litego dębu
・korytarz
・łazienka z kabiną prysznicową, dodatkowo ogrzewana podłoga
・gabinet
・kotłownia
・spiżarnia
・garaż
Piętro 167,81 m2 (powierzchnia całkowita), użytkowa: 139,76 m2
・przestronny korytarz (podłoga deska Merbau - deska lakierowana fabrycznie)
・3 sypialnie ( dwie z garderobą, jedna z balkonem)
・pokój gościnny z garderobą
・pokój kąpielowy (wanna, prysznic), dodatkowo ogrzewana podłoga + zjawiskowe okno w stylu bawolego oka
・kiniarnia
Dodatkowo: nieruchomość wyposażona jest w centralny odkurzacz, centralny filtr wody - zmiękczacz, nawodnienie ogrodu, robot koszący Husqvarna, bramę i ogrodzenie Wiśniowski, kominek zewnętrzny na tarasie oraz strych o powierzchni 25m2.
Dom łączy nowoczesne technologie z elegancją i funkcjonalnością, oferując przestrzeń idealną dla wymagających właścicieli. Duża działka zapewnia prywatność, a ogród stanowi naturalne przedłużenie strefy wypoczynkowej domu.
ENGLISH:
For Sale: An Exceptional Residence in Mierzyn
Key Features:
・Built with the highest quality materials
・Total house area: 335,62 m²
・Land area: 1001 m²
・Built-in Garage
・Year of construction: 2014
・Private street (access restricted to residents only)
・Photovoltaic system installed
・Gas heating: forced air (underfloor heating in bathrooms)
・Beautiful garden
・Triple-glazed wooden windows
Ground Floor - 167.81 m²:
・Entrance Hall – marble flooring
・Living room with fireplace – marble surround, Hajduk insert + built-in home cinema (southwest-facing)
・Dining room with access to the terrace and garden, (Merbau oil-finished hardwood floors), (northwest-facing)
・Kitchen – crafted with top-quality materials (granite countertops and windowsills) (northwest-facing)
・Solid oak staircase
・Corridor
・Bathroom with shower (underfloor heating)
・Office
・Boiler room
・Pantry
・Garage
First Floor - 167,81 m² (total area), usefull area: 139,76 m2
・Spacious corridor (Merbau factory-lacquered hardwood floors)
・3 bedrooms (two with walk-in closets, one with a balcony)
・Luxury bathroom (bathtub, shower) – underfloor heating + stunning "bull’s-eye" style window
・Guest room
・Cinema room
Additional Features:
The property includes a central vacuum system, central water filter/softener, garden irrigation system, Husqvarna robotic lawnmower, Wiśniowski gate and fence, and an outdoor fireplace on the terrace.
This exceptional property offers an ideal haven for those who value elegance, luxury, and tranquility, while staying close to the city center.
We invite you to contact us to experience this unique residence in person and discover its unmatched charm.
| Rodzaj oferty | Dom na sprzedaż | ||
|---|---|---|---|
| Liczba pokoi | 7 | ||
| Liczba łazienek | 2 | ||
| Liczba pięter | 1 | ||
| Powierzchnia | 335 m2 | ||
| Działka | 1001 | ||
| Cena | 3 690 000 zł (10 994 zł/m2) | ||
| Forma prawna | Własność | ||
| Forma prawna gruntu | Własność | ||
| Rok budowy | 2014 | ||
| Droga dojazdowa | Asfaltowa | ||
| Materiał | Pustak | ||
| Stan budynku | Idealny | ||
| Rodzaj ogrzewania | podłogowe, gazowe | ||
| Komunikacja | autobus | ||
| Dostępne w okolicy | restauracja, kort tenisowy, centrum handlowe, bank, apteka, kościół, basen, szkoła | ||
| Dodatkowo | alarm     |