POWIERZCHNIA (M²)

CENA ZA M²

PIĘTRO

LICZBA POKOI

ROK BUDOWY

RYNEK

NUMER OFERTY

Poprzednia oferta
Powrót
Następna oferta

Ładne mieszkanie z ogrodem oraz dużym tarasem

Mieszkanie na sprzedaż

Lokalizacja Dobra
ul. Szczecińska
Numer oferty BON49275
Rodzaj budynku Niski blok
Rok budowy 1999
Materiał Mieszany
Liczba pokoi 4
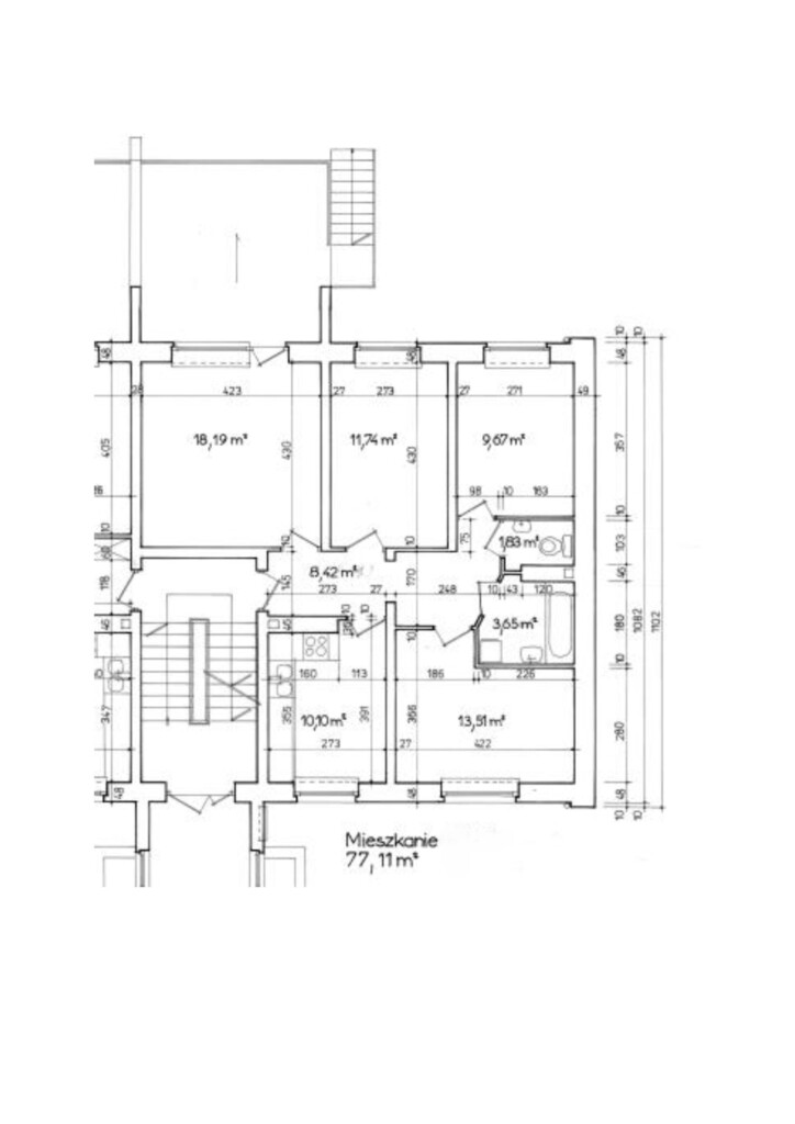
Powierzchnia 80 m2
Cena 760 000 zł

Opis


Planujesz skredytować to marzenie – zadzwoń.

Mieszkanie na parterze w niskim budynku wielorodzinnym, z  ogródkiem oraz dużym słonecznym tarasem. Idealne dla rodziny.
Cztery pokoje w zielonej okolicy w Dobrej, w pobliżu liczne ścieżki rowerowe oraz piesze.  Budynek z końca lat 90tych. 
Bardzo dobrze skomunikowane miejsce, szybki i wygodny dojazd do centrum Szczecina.
W pobliżu przystanek autobusowy oraz niedawno otwarty dyskont.

Na powierzchnię mieszkania 80,10 m2 składają się:
-pokój dzienny z wyjściem na taras oraz ogród
-3 sypialnie
-kuchnia
-łazienka oraz osobne WC
-komunikacja

Ogrzewanie i ciepła woda z dwuobiegowego pieca gazowego. Czynsz administracyjny około 800 zł. Do mieszkania przynależy duża piwnica o powierzchni około 18 m2.


Zapraszam na prezentację.


Szczegóły
Rodzaj oferty Mieszkanie na sprzedaż
Liczba pokoi 4
Liczba łazienek 1
Liczba pięter 2
Powierzchnia 80 m2
Cena 760 000 zł (9 488 zł/m2)
Forma prawna Własność
Rodzaj budynku Niski blok
Rok budowy 1999
Materiał Mieszany
Stan budynku Dobry
Dodatkowo piwnica    ogród