POWIERZCHNIA (M²)

CENA ZA M²

PIĘTRO

LICZBA POKOI

ROK BUDOWY

RYNEK

NUMER OFERTY

Poprzednia oferta
Powrót
Następna oferta

Nowy dom bliźniak Osów 4 pokojowy

Dom na sprzedaż

Lokalizacja Szczecin Osów
Numer oferty ELT34382
Rok budowy 2026
Materiał Silikat
Liczba pokoi 4
Powierzchnia 93 m2
Działka 110 m2
Cena 950 000 zł

Opis

Na sprzedaż nowoczesny bliźniak w stanie deweloperskim, położony na kameralnym i spokojnym osiedlu, w otoczeniu ciszy i zieleni.

Dom o funkcjonalnym układzie 4 pokoi, zapewnia wygodę codziennego życia.

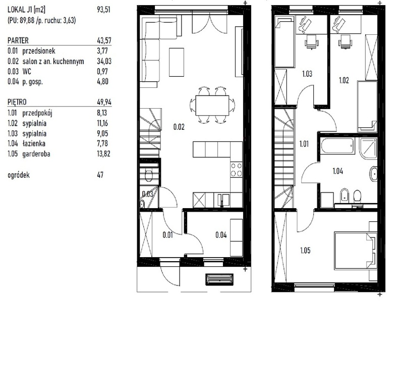
Na parterze znajduje się przedsionek (3,77m2), pomieszczenie gospodarcze (4,80m2), oddzielne WC (0,97m2), oraz przestronna strefa dzienna, na którą składa się salon z aneksem kuchennym (34,03m2) i wyjściem do ogródka (47m2).

 Na piętrze natomiast mamy duży przedpokój (8,13m2), trzy sypialnie o wymiarach - 11,16m2, 9,05m2 i 13,82m3, oraz łazienkę (7,78m2).
Dodatkowym atutem jest spora powierzchnia strychowa, idealna do przechowywania.

Nieruchomość została wyposażona w nowoczesne i energooszczędne rozwiązania:
pompę ciepła, rekuperację, oraz ogrzewanie podłogowe w każdym pomieszczeniu.
Bezpieczeństwo zapewniają drzwi antywłamaniowe, a możliwość podłączenia światłowodu, gwarantuje szybki internet do pracy i rozrywki.

Przed budynkiem znajdują się dwa prywatne miejsca postojowe.

To idealna propozycja dla osób ceniących nowoczesny design, komfort oraz spokojne otoczenie z szybkim dostępem do infrastruktury miejskiej.
W ofercie posiadamy jeszcze inne - podobne lokale.


Szczegóły
Rodzaj oferty Dom na sprzedaż
Liczba pokoi 4
Liczba łazienek 1
Liczba pięter 1
Powierzchnia 93 m2
Działka 110
Cena 950 000 zł (10 159 zł/m2)
Forma prawna Własność
Rok budowy 2026
Droga dojazdowa Utwardzona
Materiał Silikat
Stan budynku Stan deweloperski
Rodzaj ogrzewania pompa ciepła
Komunikacja autobus
Dostępne w okolicy kościół, Żłobek, las, plac zabaw, zabudowa niska, sklep, apteka, szkoła, przedszkole, fitnes
Dodatkowo alarm    ogród