POWIERZCHNIA (M²)

CENA ZA M²

PIĘTRO

LICZBA POKOI

ROK BUDOWY

RYNEK

NUMER OFERTY

Poprzednia oferta
Powrót
Następna oferta

Działki w Insku

Działka na sprzedaż

Lokalizacja Ińsko
Numer oferty SWN32809
Działka 500 m2
Cena 85 000 zł

Opis

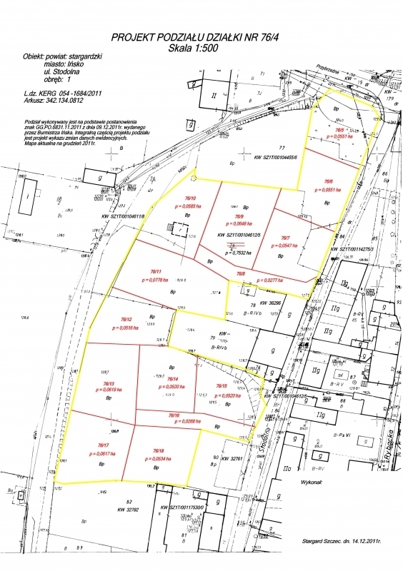
Niepowtarzalna oferta działek budowlanych nad jeziorem IŃSKO
uzbrojenie w drodze przy działkach
wokół rozpoczęła się już zabudowa działek
bezpieczna lokalizacja w spokojnej miejscowości przy Parku Krajobrazowym.
jezioro z I klasą czystości wody
powierzchnie działek od 500 do 600 m2
ceny 170 PLN / m2 netto + 23% vat


Szczegóły
Rodzaj oferty Działka na sprzedaż
Działka 500
Cena 85 000 zł (170 zł/m2)