POWIERZCHNIA (M²)

CENA ZA M²

PIĘTRO

LICZBA POKOI

ROK BUDOWY

RYNEK

NUMER OFERTY

Poprzednia oferta
Powrót
Następna oferta

3 pokoje z ogrodem 96 m² | Parking | Warzymice

Mieszkanie na sprzedaż

Lokalizacja Warzymice
Sympatyczna
Numer oferty HES29152
Rodzaj budynku Blok
Rok budowy 2018
Materiał Silikat
Liczba pokoi 3
Powierzchnia 68 m2
Cena 899 000 zł

Opis

Na sprzedaż przestronne i funkcjonalne mieszkanie o powierzchni 68 m², położone na parterze nowoczesnego budynku z 2018 roku. Lokal jest idealnym rozwiązaniem dla osób ceniących komfort, prywatność oraz dostęp do własnej przestrzeni na zewnątrz.

Mieszkanie należy do pierwszego właściciela i znajduje się na zamkniętym, monitorowanym osiedlu z bramą wjazdową.

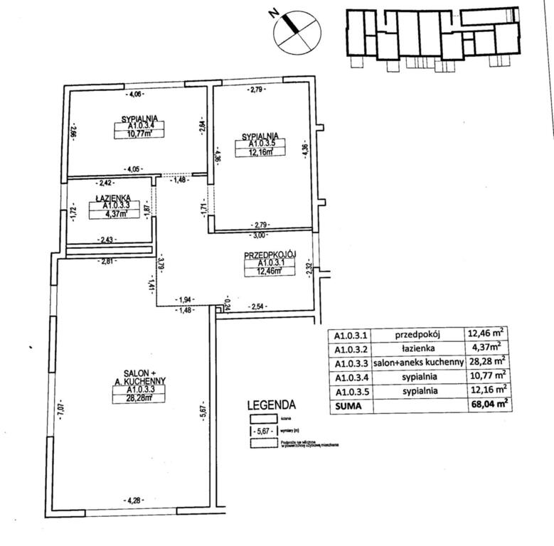
Układ mieszkania:

  • salon z wyjściem do ogrodu
  • 2 sypialnie
  • łazienka
  • dodatkowe WC
  • garderoba

Układ pomieszczeń:
  • salon z aneksem kuchennym – 28,28 m² (z wyjściem do ogrodu)
  • sypialnia – 12,16 m²
  • sypialnia – 10,77 m²
  • łazienka – 4,37 m²
  • przedpokój – 12,46 m²
W przedpokoju wydzielono dodatkowe WC oraz przestronną zabudowaną szafę z miejscem na suszarkę.

We wszystkich oknach zamontowane są rolety antywłamaniowe, moskitiery oraz plisy.

Dużym atutem nieruchomości jest prywatny ogród o powierzchni 96 m² z altanką ogrodową (ok. 4 m²). Dodatkowo właściciele mogą korzystać z przyległego terenu o powierzchni ok. 90 m², co znacząco powiększa przestrzeń rekreacyjną.

Do mieszkania przynależą:
  • komórka lokatorska – 10 m² (z instalacją elektryczną)
  • miejsce parkingowe w garażu podziemnym – 12,5 m²
Miejsce parkingowe wraz z komórką dodatkowo płatne 85 000 zł.

Czynsz administracyjny wynosi ok. 1000 zł i obejmuje m.in.:
  • wodę
  • ciepłą wodę
  • ogrzewanie
  • fundusz remontowy
  • sprzątanie części wspólnych
  • uzdatnianie wody
Dodatkowo płatny jest jedynie prąd.

Standard osiedla:
  • osiedle zamknięte i monitorowane
  • plac zabaw dla dzieci
  • miejsca parkingowe dla gości
  • prywatna stacja uzdatniania wody
  • światłowód z możliwością wyboru operatora
  • osiedlowa serwerownia obsługująca monitoring
  • podgrzewany zjazd do garażu – nawierzchnia nie zamarza zimą
Mieszkanie jest dobrze wygłuszone, co zapewnia wysoki komfort codziennego życia.

Nieruchomość znajduje się w bardzo dobrze skomunikowanej okolicy z szybkim dojazdem do centrum Szczecina.
W pobliżu znajdują się:
  • liczne sklepy i supermarkety
  • punkty usługowe
  • siłownia i restauracje przy Rondzie Hakena
  • Gminny Ośrodek Kultury, Sportu i Rekreacji w Przecławiu
  • kościół
  • placówki edukacyjne (dzieci w szkole w Przylepie korzystają z darmowej komunikacji)

To idealna propozycja dla rodzin, osób pracujących w Szczecinie oraz wszystkich, którzy chcą połączyć wygodę mieszkania z własną przestrzenią ogrodową.


Szczegóły
Rodzaj oferty Mieszkanie na sprzedaż
Liczba pokoi 3
Liczba łazienek 2
Liczba pięter 2
Powierzchnia 68 m2
Cena 899 000 zł (13 220 zł/m2)
Forma prawna Własność
Rodzaj budynku Blok
Rok budowy 2018
Materiał Silikat
Rodzaj ogrzewania co miejskie
Komunikacja , PKS, autobus, autostrada
Dodatkowo alarm    piwnica    ogród    winda    ochrona    monitoring