POWIERZCHNIA (M²)

CENA ZA M²

PIĘTRO

LICZBA POKOI

ROK BUDOWY

RYNEK

NUMER OFERTY

Poprzednia oferta
Powrót
Następna oferta

Nowa kawalerka, stan deweloperski – okazja!

Mieszkanie na sprzedaż

Lokalizacja Police
ul. Rycerska
Numer oferty 510/10212/O
Rodzaj budynku Niski blok
Rok budowy 2024
Materiał Silikat
Liczba pokoi 1
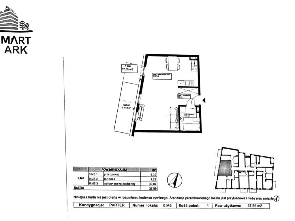
Powierzchnia 37 m2
Cena 322 417 zł

Opis

Zapraszamy do zapoznania się z wyjątkową ofertą nowoczesnej i funkcjonalnej kawalerki o powierzchni 37,59 m², położonej na parterze nowo powstałego budynku przy ul. Rycerskiej w Policach.

Najważniejsze atuty:

• Przemyślany układ przestrzeni – mieszkanie jest wyjątkowo ustawne, a dzięki sprytnemu rozmieszczeniu ścian i okien można je łatwo dostosować do własnych potrzeb, np. wydzielając dodatkowy pokój.

• Możliwość aranżacji – idealne zarówno dla singla, pary, jak i jako inwestycja pod wynajem.

 Ekspozycja zachodnia – okna wychodzą na drzewa, co nadaje wnętrzu wyjątkowego klimatu i zapewnia prywatność. Okolica jest cicha i spokojna, dzięki czemu mieszkanie sprzyja relaksowi po intensywnym dniu. Wieczorami klimatu nada widok zachodzącego słońca.

• Dodatkowe udogodnienia – możliwość zakupu miejsca postojowego w hali garażowej (49 200 zł).

• Nowoczesny budynek – inwestycja ukończona w 2025 roku, z wysokim standardem wykończenia części wspólnych.

Mieszkanie składa się z:

  • salonu z aneksem kuchennym (30,07m2)
  • przedpokoju (3,30m2)
  • łazienki (4,22m2)
  • balkonu (5,43m2)

Budynek:
Nowoczesny blok oddany w 2025 roku. Wysoki standard wykończenia, estetyczna architektura oraz zadbane części wspólne zapewniają komfort i bezpieczeństwo mieszkańcom.

Lokalizacja:

Mieszkanie znajduje się w Policach, przy ul. Rycerskiej. W bezpośrednim sąsiedztwie znajduje się rzeka Łarpia, sklepy, szkoła, przedszkole, park oraz zajezdnia autobusowa z dogodnymi połączeniami do Szczecina.
Dodatkowym atutem lokalizacji jest bliskość terenów zielonych i lasów Puszczy Wkrzańskiej, które sprzyjają aktywnemu wypoczynkowi. Dzięki dobremu układowi dróg dojazdowych, w krótkim czasie można dotrzeć do Szczecina i innych miejscowości regionu.

Zakres prac wewnątrz lokalu:
 •Ściany kondygnacji mieszkalnych – tynki gipsowe
 •Sufity mieszkań – tynki gipsowe
 •Posadzki – jastrych cementowy
 •Drzwi do lokali mieszkalnych antywłamaniowe RC2 o podwyższonej izolacyjności akustycznej 37 DB, bez drzwi wewnętrznych
 •Rozprowadzenie instalacji wodno-kanalizacyjnej zakończonej przyłączami, podejścia kanalizacyjne do przyborów, bez armatury
 •Ogrzewanie centralne – grzejniki płytowe w pokojach i drabinkowe w łazienkach
 •Rozprowadzenie instalacji elektrycznej wraz z osprzętem
 •Instalacje: sygnalizacja domofonowa, RTV i internetowa zgodnie z projektem
 •Instalacja grzewcza i ciepła woda – przyłączenie do sieci ciepłowniczej miejskiej poprzez węzeł ciepłowniczy zlokalizowany w garażu
 •Zintegrowane węzły cieplne techniczne w częściach wspólnych
 •Instalacja wentylacyjna  

Technologia wykonania budynku


 Konstrukcja:
•Fundamenty, na podkładzie z chudego betonu.
•Ściany fundamentowe oraz garażu wykonane w technologii żelbetowej.
•Ściany nośne kondygnacji nadziemnych wykonane w technologii murowanej z silikatów
•Ściany między lokalowe z silikatu gr 18 cm akustyczny
•Ściany działowe mieszkań murowane z bloczków silikatowych
•Dach w konstrukcji drewnianej, z pokryciem z dachówki ceramicznej i papy
•Stropy kondygnacji żelbetowe.
•Podciągi i słupy żelbetowe

 Wykończenie wewnętrzne budynku:
•Elewacja – ocieplenie styropianem + tynk cienkowarstwowy, malowane farbą Sto Lotusan
•Stolarka okienna PVC trzyszybowa, w kolorze białym i 7016 od zewnątrz

Zakres prac w częściach wspólnych inwestycji:
•Drzwi zewnętrzne do klatki schodowej aluminiowe
•Balustrady balkonów – w konstrukcji stalowej
•Balustrady klatki schodowej – stalowe
•Platforma dla niepełnosprawnych
•Posadzki klatki schodowej – płytki gresowe
•Posadzki korytarzy – płytki gresowe •Posadzki garażu – wylewka betonowa przemysłowa

Gotowe do odbioru!
Zapraszamy do kontaktu i umówienia się na prezentację.


Szczegóły
Rodzaj oferty Mieszkanie na sprzedaż
Liczba pokoi 1
Liczba łazienek 1
Liczba pięter 2
Powierzchnia 37 m2
Cena 322 417 zł (8 577 zł/m2)
Forma prawna Własność
Rodzaj budynku Niski blok
Rok budowy 2024
Materiał Silikat
Rodzaj ogrzewania co miejskie
Komunikacja autobus
Dostępne w okolicy restauracja, przedszkole, park, rzeka, fitnes, centrum handlowe, szkoła