Mieszkanie na sprzedaż
| Lokalizacja |
Szczecin Centrum ul. Mazurska |
|
|---|---|---|
| Numer oferty | WPN20375 | |
| Rodzaj budynku | Kamienica | |
| Rok budowy | 1930 | |
| Materiał | Cegła | |
| Liczba pokoi | 2 | |
| Powierzchnia | 52 m2 | |
| Cena | 449 000 zł |
Rewelacyjna oferta sprzedaży Kawalerek . 225 000 zł
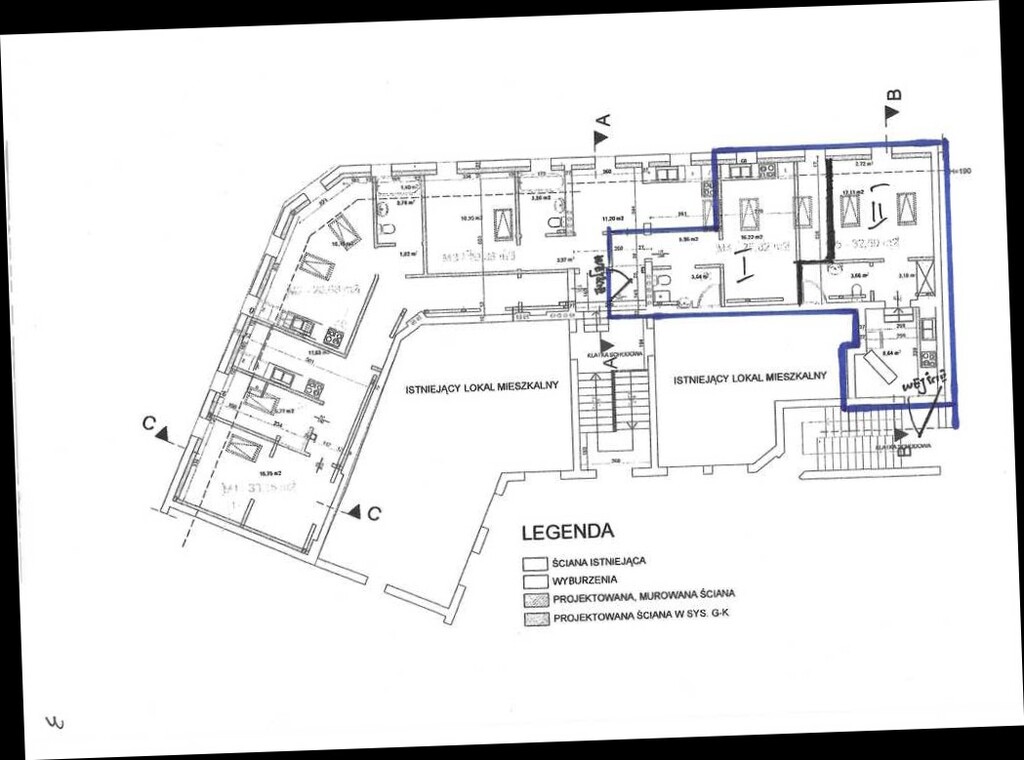
Do sprzedania mieszkanie powstałe z adaptacji poddasza w kamienicy w centrum miasta o powierzchni 52,64 m2 wg. Kw.
Kawalerka w centrum Szczecina do zamieszkania bez żadnych nakładów ( mieszkania są w całości wyposażone ) za 225 000zł .Jest to chyba najlepsza oferta w centrum.
Mieszkanie to z uwagi na możliwości techniczne zostało podzielone na dwie kawalerki o powierzchniach około 25 m2 i 32m2(różnica wynika z pozyskania z dodatkowej powierzchni od wspólnoty) .
Lokale są wyposażone we wszystkie niezbędne do mieszkania sprzęty.
Jedno z nich jest w chwili obecnej wynajęte.
Ogrzewanie elektryczne , woda podgrzewana z elektrycznego bojlera.
Atutem oferty jest położenie nieruchomości w samym centrum Szczecina , bliskość sklepów oraz komunikacji miejskiej.
Doskonała oferta inwestycyjna lub pod swoje potrzeby lub jedno i drugie.
Zapraszam na prezentację
Oferta biura nieruchomości.
| Rodzaj oferty | Mieszkanie na sprzedaż | ||
|---|---|---|---|
| Liczba pokoi | 2 | ||
| Liczba pięter | 4 | ||
| Powierzchnia | 52 m2 | ||
| Cena | 449 000 zł (8 529 zł/m2) | ||
| Rodzaj budynku | Kamienica | ||
| Rok budowy | 1930 | ||
| Droga dojazdowa | Asfaltowa | ||
| Materiał | Cegła | ||
| Stan budynku | Bardzo dobry | ||
| Rodzaj ogrzewania | elektryczne | ||
| Komunikacja | autobus, tramwaj | ||
| Dostępne w okolicy | park, przedszkole, kościół, plac zabaw, restauracja, basen, szkoła, centrum handlowe, sklep, Żłobek, przychodnia lekarska, komenda policji, bar, bazarek, apteka, bank, fitnes | ||
| Dodatkowo | internet    telewizja kablowa     |