Mieszkanie na sprzedaż
| Lokalizacja |
Szczecin os. Kaliny ul. Antoniego Kaliny |
|
|---|---|---|
| Numer oferty | BON49224 | |
| Rodzaj budynku | Wysoki blok | |
| Rok budowy | 1977 | |
| Materiał | Wielka Płyta | |
| Liczba pokoi | 2 | |
| Powierzchnia | 43 m2 | |
| Cena | 389 000 zł |
Planujesz skredytować to marzenie – zadzwoń.
LOKALIZACJA
Mieszkanie znajduje się na popularnym i przestronnym osiedlu Świerczewo w jednym z wysokich budynków.
W okolicy znajdują się szkoły, liczne sklepy, tereny zielone, place zabaw, pływalnia i inne obiekty użyteczności publicznej.
Świerczewo to bardzo dobrze skomunikowana część miasta.
BUDYNEK
- blok z wielkiej płyty
- dobrze utrzymana klatka schodowa
- winda
- liczne ogólnodostępne miejsca parkingowe
NIERUCHOMOŚĆ
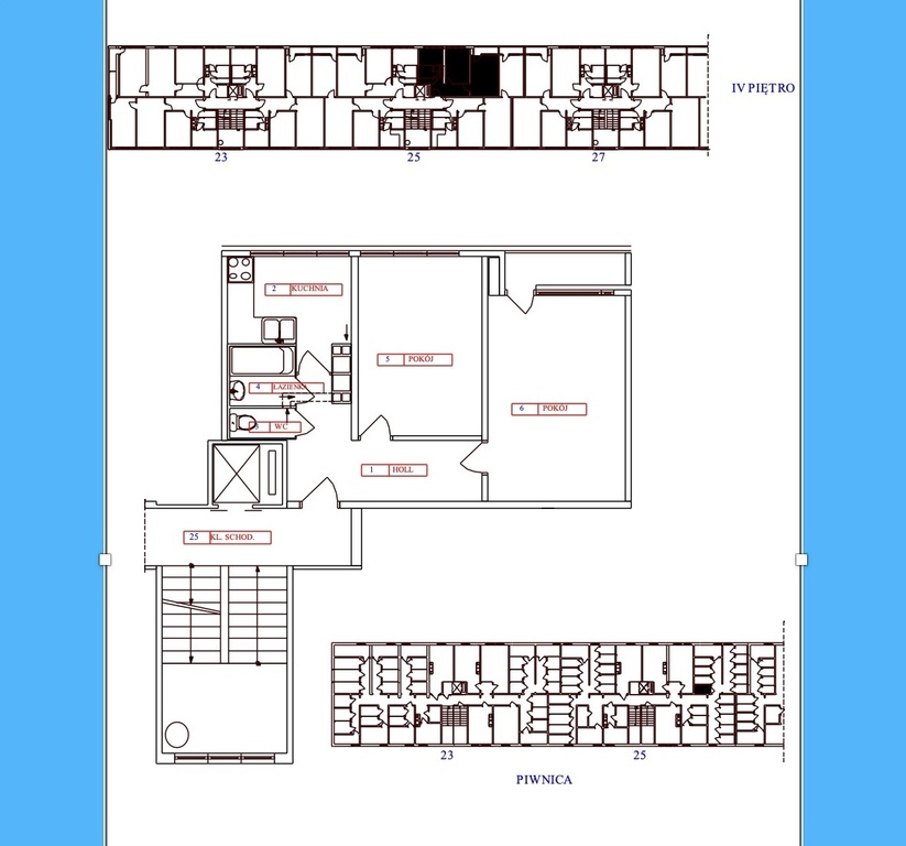
Przestronne dwupokojowe mieszkanie na czwartym piętrze o powierzchni 43,70 m2.
Nieruchomość składa się z:
- przedpokoju
- kuchni
- łazienki z wanną
- WC
- pokoju
- pokoju dziennego z balkonem
Mieszkanie do remontu.
DODATKOWE INFORMACJE
- czynsz administracyjny wynosi ok. 465 złotych i zawiera zaliczkę na ogrzewanie, ciepłą i zimną wodę, fundusz remontowy, opłaty administracyjne, wywóz śmieci
- do mieszkania przynależy piwnica
- spółdzielcze własnościowe prawo do lokalu - możliwość zakupu przez osoby spoza UE.
Zapraszam na prezentację.
| Rodzaj oferty | Mieszkanie na sprzedaż | ||
|---|---|---|---|
| Liczba pokoi | 2 | ||
| Liczba łazienek | 1 | ||
| Liczba pięter | 8 | ||
| Powierzchnia | 43 m2 | ||
| Cena | 389 000 zł (8 901 zł/m2) | ||
| Forma prawna | Spółdzielcze własnościowe prawo | ||
| Rodzaj budynku | Wysoki blok | ||
| Rok budowy | 1977 | ||
| Materiał | Wielka Płyta | ||
| Stan budynku | Bardzo dobry | ||
| Dodatkowo | piwnica    winda     |