Dom na sprzedaż
| Lokalizacja | Szczecin Osów | |
|---|---|---|
| Numer oferty | NYC21431 | |
| Rok budowy | 2026 | |
| Materiał | Silikat | |
| Liczba pokoi | 4 | |
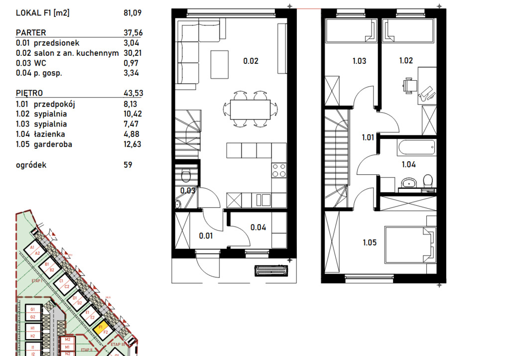
| Powierzchnia | 81 m2 | |
| Działka | 110 m2 | |
| Cena | 850 000 zł |
Na sprzedaż nowoczesny bliźniak w stanie deweloperskim, położony na kameralnym i spokojnym osiedlu, w otoczeniu ciszy i zieleni.
Dom o funkcjonalnym układzie 4 pokoi, zapewnia wygodę codziennego życia.
Na parterze znajduje się przedsionek (3,04m2), pomieszczenie gospodarcze (3,34m2), oddzielne WC (0,97m2), oraz przestronna strefa dzienna, na którą składa się salon z aneksem kuchennym i wyjściem do ogródka (59m2). Na piętrze natomiast mamy duży przedpokój (8,13m2), trzy sypialnie o wymiarach - 10,42m2, 7,47m2 i 12,63m3, oraz łazienkę (4,88m2).
Dodatkowym atutem jest spora powierzchnia strychowa, idealna do przechowywania.
Ogród od południowego-zachodu to ogromny plus tego lokalu.
Nieruchomość została wyposażona w nowoczesne i energooszczędne rozwiązania:
pompę ciepła, rekuperację, oraz ogrzewanie podłogowe w każdym pomieszczeniu.
Bezpieczeństwo zapewniają drzwi antywłamaniowe, a możliwość podłączenia światłowodu, gwarantuje szybki internet do pracy i rozrywki.
Przed budynkiem znajdują się dwa prywatne miejsca postojowe.
To idealna propozycja dla osób ceniących nowoczesny design, komfort oraz spokojne otoczenie z szybkim dostępem do infrastruktury miejskiej.
W ofercie posiadamy jeszcze inne - podobne lokale.
| Rodzaj oferty | Dom na sprzedaż | ||
|---|---|---|---|
| Liczba pokoi | 4 | ||
| Liczba łazienek | 1 | ||
| Liczba pięter | 1 | ||
| Powierzchnia | 81 m2 | ||
| Działka | 110 | ||
| Cena | 850 000 zł (10 482 zł/m2) | ||
| Forma prawna | Własność | ||
| Forma prawna gruntu | Własność | ||
| Rok budowy | 2026 | ||
| Droga dojazdowa | Utwardzona | ||
| Materiał | Silikat | ||
| Stan budynku | Stan deweloperski | ||
| Rodzaj ogrzewania | pompa ciepła | ||
| Komunikacja | autobus | ||
| Dostępne w okolicy | fitnes, przychodnia lekarska, przedszkole, zabudowa niska, kościół, plac zabaw, szkoła, sklep, Żłobek, apteka, las |