POWIERZCHNIA (M²)

CENA ZA M²

PIĘTRO

LICZBA POKOI

ROK BUDOWY

RYNEK

NUMER OFERTY

Poprzednia oferta
Powrót
Następna oferta

Bukowo - 2pok, balkon, parking Nowa Północ

Mieszkanie na sprzedaż

Lokalizacja Szczecin Bukowo
ul. Modelarska
Numer oferty INS22076
Rodzaj budynku Niski blok
Rok budowy 2025
Materiał Bloczki
Liczba pokoi 2
Powierzchnia 35 m2
Cena 450 000 zł

Opis

Lokalizacja: Szczecin, Bukowo Północ, ul. Modelarska

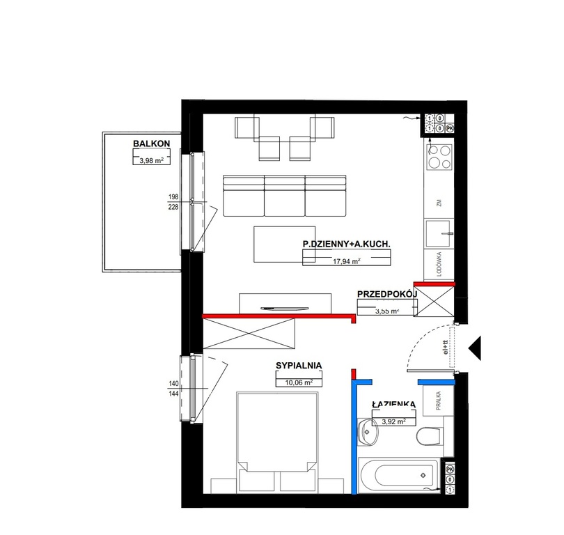
Powierzchnia: 35,87 m² Piętro: 1 Liczba pokoi: 2

O MIESZKANIU : Oferujemy na sprzedaż funkcjonalne, 2-pokojowe mieszkanie o przemyślanym układzie, położone na pierwszym piętrze nowoczesnego budynku. Lokal o wysokości 2,62 m zapewnia poczucie przestrzeni i doskonałe możliwości aranżacyjne.


W skład mieszkania wchodzą:


  • Salon z aneksem kuchennym: 17,94 m² – jasna i ustawna strefa dzienna.



  • Sypialnia: 10,06 m² – komfortowa przestrzeń do wypoczynku.



  • Łazienka: 3,92 m².



  • Przedpokój: 3,55 m².



  • Balkon: 3,98 m² – idealne miejsce na poranną kawę.
Czynsz ok. 240zł z zaliczkami na ogrzewanie i wodę z sieci miejskiej.
Miejsce postojowe zewnętrzne dodatkowo płatne 25 tys. zakup obligatoryjny.

O INWESTYCJI – NOWA PÓŁNOC: Projekt dewelopera Ronson Development to samowystarczalne, kameralne osiedle zaprojektowane w duchu eko. Mieszkańcy mogą korzystać z bogatej infrastruktury rekreacyjnej i nowoczesnych rozwiązań:
  • Strefa Rekreacji: Dwa place zabaw, boisko, siłownia plenerowa oraz pergola z siedziskami.
  • Ekologia i Zieleń: Park kieszonkowy, łąki kwietne, zielone elewacje oraz system gromadzenia wody deszczowej i oświetlenie LED.
  • Udogodnienia: Garaż podziemny w każdym budynku, stojaki na rowery oraz lokale usługowe na terenie osiedla.
LOKALIZACJA I KOMUNIKACJA: Osiedle jest doskonale skomunikowane z resztą miasta i Policami:
  • Komunikacja miejska: Zaledwie 1 minuta spacerem do przystanku autobusowego (linie 101, 107, 63).
  • Zakupy: Aldi (1 min pieszo), Biedronka (2 min autem).
  • Natura: Bliskość Uroczyska Kupały (18 min spacerem) sprzyja aktywnemu wypoczynkowi.
  • Infrastruktura: W bezpośrednim sąsiedztwie żłobek (63 m), lekarz, apteka oraz piekarnia.
To idealna propozycja zarówno dla singla, pary, jak i pod bezpieczną inwestycję na wynajem.


Szczegóły
Rodzaj oferty Mieszkanie na sprzedaż
Liczba pokoi 2
Liczba łazienek 1
Liczba pięter 2
Powierzchnia 35 m2
Cena 450 000 zł (12 686 zł/m2)
Forma prawna Własność
Rodzaj budynku Niski blok
Rok budowy 2025
Materiał Bloczki
Rodzaj ogrzewania co miejskie
Komunikacja autobus
Dostępne w okolicy przychodnia lekarska, restauracja, park, przedszkole, szkoła, sklep, centrum handlowe, apteka
Dodatkowo winda