Dom na sprzedaż
| Lokalizacja |
Żarowo Modrzewiowa |
|
|---|---|---|
| Numer oferty | 272/11683/O | |
| Rok budowy | 2026 | |
| Materiał | Silikat | |
| Liczba pokoi | 4 | |
| Powierzchnia | 100 m2 | |
| Działka | 500 m2 | |
| Cena | 579 000 zł |
Ostatni wolny dom na koniec wiosny 2026!
Tylko u nas - inwestycja "Leśne Zacisze"
W inwestycji domy jednorodzinne wolnostojące na działkach o pow. ok. 460m2 - 500m2 które tworzyć będą piękne i nowoczesne osiedle w otulinie lasu w miejscowości Żarowo jedynie 4 minuty od Stargardu i 25 minut od Szczecina!
Dziś proponujemy Państwu jeden z domów który oddany do użytkowania będzie już na II kwartał 2026 roku
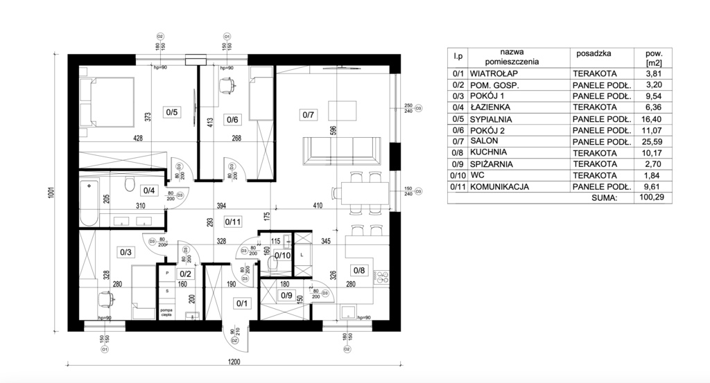
Na metraż 100,29 m2 składają się :
- Salon z otwartą kuchnią o pow. 36 m2
- spiżarnia 2,70 m2
- wiatrołap - 3,80 m2
- korytarz - 9,61 m2
- pokój 1 - 9,54 m2 m2
- pokój 2 - 11,07 m2
- pokój 3 - 16,40 m2
- łazienka - 6,36 m2
- wc - 1,84 m2
Dom oddawany będzie w stanie deweloperskim :
- dach pokryty dachówką ceramiczną
- przyłącza wod-kan
- instalacja elektryczna
- instalacja ogrzewania podłogowego
- tynki gipsowe
- posadzki
- okna trzyszybowe
- elewacja strukturalna
- przyłącze pod żródło ogrzewania
Za dodatkową opłatą możliwe wykonanie :
- ogrodzenie
- pompa ciepła
- kostka brukowa
Zapraszam na prezentację – to idealna propozycja dla osób szukających nowoczesnego domu w spokojnym otoczeniu, z szybkim dojazdem do miasta.
Piękna malownicza okolica! Zapraszamy do rezerwacji. Podana cena jest ceną brutto. Kupujący zwolniony z podatku PCC u notariusza.
Potrzebujesz kredytu? Nasz doradca finansowy zadba o najlepszą ofertę na rynku!
Zapraszam do kontaktu.
| Rodzaj oferty | Dom na sprzedaż | ||
|---|---|---|---|
| Liczba pokoi | 4 | ||
| Liczba łazienek | 2 | ||
| Liczba pięter | 1 | ||
| Powierzchnia | 100 m2 | ||
| Działka | 500 | ||
| Cena | 579 000 zł (5 772 zł/m2) | ||
| Forma prawna | Własność | ||
| Rok budowy | 2026 | ||
| Droga dojazdowa | Żwirowa | ||
| Materiał | Silikat | ||
| Stan budynku | Stan deweloperski | ||
| Rodzaj ogrzewania | co własne |