Dom na sprzedaż
| Lokalizacja | Wrzosowo | |
|---|---|---|
| Numer oferty | RNH21231 | |
| Rok budowy | 2025 | |
| Materiał | Silikat | |
| Liczba pokoi | 6 | |
| Powierzchnia | 150 m2 | |
| Działka | 2172 m2 | |
| Cena | 950 000 zł |
Na sprzedaż dom wolnostojący zlokalizowany w cichej okolicy, blisko Zalewu Kamieńskim - Zatoka Wrzosowska oraz zaledwie 3 km od plaży w Dziwnówku.
Duża, ogrodzona działka (2,172 m2) - zadbany trawnik, liczne nasadzenia; dojazd drogą z kostki brukowej.
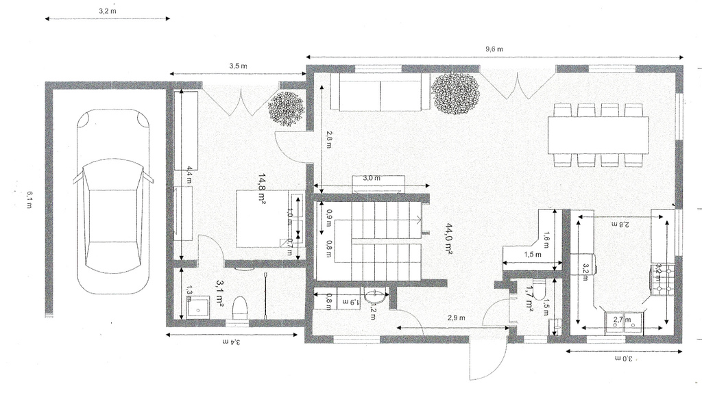
Na parterze :
- duży salon z jadalnią , od strony południowej,
- kuchnia,
- łazienka,
- kotłownia,
- pokój z własna łazienką.
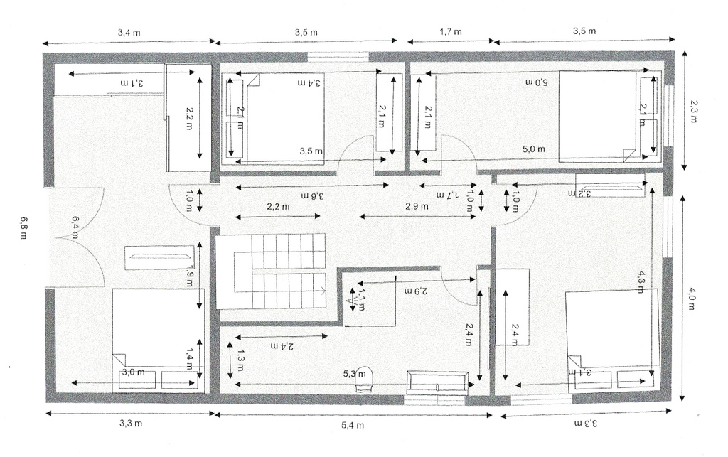
Na piętrze :
- 4 pokoje, w tym jeden z garderobą.
- łazienka.
Dodatkowo poddasze.
W salonie przewidziane miejsce pod kominek.
Z górnych pokoi widok na Zalew.
Dom budowany w technologii tradycyjnej - ściany z POROTHERM , strop żelbetowy lany , okna PCV, dachówka ceramiczna.
Obecnie dom w stanie surowym zamkniętym. W budynku rozciągnięta sieć elektryczna.
Do wykonania pozostało :
- instalacja wod - kan,
- ogrzewanie,
- tynki,
- ocieplenie ścian i poddasza.
Na tym etapie można jeszcze zmienić ustawienie ścianek i rozmieszczenie pomieszczeń.
Garaż w formie wiaty przylegającej do budynku.
Ogrzewanie i ciepła woda z pieca gazowego dwu-obiegowego.
Na działce skrzynka ZK, podłączenie wody i kanalizacji, oraz gaz.
Gmina jest jeszcze w trakcie uchwalania Planu Ogólnego, dzięki czemu można wystąpić o WZ lub zapis w planie o dodatkową zabudowę (np. domem mieszkalnym lub letniskowymi).
Właściciel wystąpił o zgodę na dwa małe budynki pod wynajem.
| Rodzaj oferty | Dom na sprzedaż | ||
|---|---|---|---|
| Liczba pokoi | 6 | ||
| Liczba łazienek | 3 | ||
| Liczba pięter | 1 | ||
| Powierzchnia | 150 m2 | ||
| Działka | 2172 | ||
| Cena | 950 000 zł (7 661 zł/m2) | ||
| Forma prawna | Własność | ||
| Forma prawna gruntu | Własność | ||
| Rok budowy | 2025 | ||
| Droga dojazdowa | Kostka brukowa | ||
| Materiał | Silikat | ||
| Stan budynku | Surowy zamknięty | ||
| Rodzaj ogrzewania | gazowe | ||
| Dostępne w okolicy | las, jezioro, morze |