Dom na sprzedaż
| Lokalizacja | Tanowo | |
|---|---|---|
| Numer oferty | HAC22905 | |
| Rok budowy | 2026 | |
| Materiał | Mieszany | |
| Liczba pokoi | 5 | |
| Powierzchnia | 121 m2 | |
| Działka | 1203 m2 | |
| Cena | 969 000 zł |
Powstaje nowa inwestycja w samym centrum Tanowa
Domy z zabudowie bliźniaczej z garażem oraz ogródkami przy ulicy Szczecińskiej.
Docelowo inwestycja składać się będzie z czterech domów położonych na dwóch działkach (1 i 2) w zabudowie szeregowej po 2 segmenty. (Łącznie 8 szeregowców)
Powierzchnia użytkowa to 121,04m2.
Stan deweloperski, budynek jednorodzinny w zabudowie szeregowej .
Nieruchomość o bardzo funkcjonalnym rozkładzie pomieszczeń.
Przemyślany, funkcjonalny projekt, który zapewni wygodę i przyjemność z przebywania.
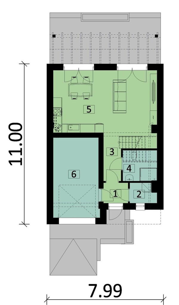
Na parterze salon z wyjściem na taras oraz ogródek, kuchnia, WC , schowek ,wiatrołap oraz garażu ok 18,5m2
Z salonu wyjście na piękny ogródek poprzez taras.
Piętro - cztery pokoje, łazienka z WC oraz korytarz.
Fundamenty:
- ławy żelbetowe beton
- izolacja przeciwwilgociowa
- izolacja termiczna ścian fundamentowych styropian fundamentowy wodoodporny
Ściany: nośne dwuwarstwowe z bloczków silikatowych . Działowe z bloczków silikatowych.
Komin kominkowy - komin systemowy JAWAR .
Dach: więźba dachowa drewniana, dachówka ceramiczna, rynny PCV, obróbki blacharskie z blachy stalowej ocynkowanej lub cynkowej
Okna; PCV, trzyszybowe, ciepły montaż
Drzwi tarasowe rozsuwane
Schody wewnętrzne monolityczne żelbetowe.
Ocieplenie budynku- styropian zakończony pucem.
Ogrzewanie pompa ciepła , ogrzewanie podłogowe w całym domu i grzejniki łazienkowe.
Teren: ogrodzenie przydomowych ogródków - z paneli, dojścia do budynków
Powierzchnia działki na którym posadowione są dwa budynki to powierzchnia 1203 m2.
Nieruchomość ogrodzona. Dojazd drogą główną asfaltową. Dobry dojazd do Szczecina oraz Polic.
W pobliżu przystanki autobusowe, szkoła podstawowa oraz małe sklepiki oraz Dino.
Wysoki standard wykończenia, bliskość do centrum miasta a jednocześnie spokój, cisza oraz bezpieczna okolica gwarantuje komfort zamieszkania.
Przewidywany termin zakończenia inwestycji IV kwartał 2026 roku.
Lokalizacja spokojna, zielona, w sąsiedztwie domów jednorodzinnych.
Nie zwlekaj i już dziś zarezerwuj swój wymarzony dom! Kupując tą nieruchomość nie płacisz PCC! Sprzedaż na podstawie umowy deweloperskiej.
Zapraszam na prezentację!
| Rodzaj oferty | Dom na sprzedaż | ||
|---|---|---|---|
| Liczba pokoi | 5 | ||
| Liczba łazienek | 2 | ||
| Liczba pięter | 2 | ||
| Powierzchnia | 121 m2 | ||
| Działka | 1203 | ||
| Cena | 969 000 zł (7 757 zł/m2) | ||
| Forma prawna | Własność | ||
| Forma prawna gruntu | Własność | ||
| Rok budowy | 2026 | ||
| Droga dojazdowa | Utwardzona | ||
| Materiał | Mieszany | ||
| Stan budynku | Stan deweloperski | ||
| Rodzaj ogrzewania | pompa ciepła | ||
| Dodatkowo | ogród     |