Dom na sprzedaż
| Lokalizacja | Mierzyn | |
|---|---|---|
| Numer oferty | IDN33931 | |
| Rok budowy | 2025 | |
| Materiał | Silikat | |
| Liczba pokoi | 4 | |
| Powierzchnia | 78 m2 | |
| Działka | 103 m2 | |
| Cena | 770 000 zł |
Nowa inwestycja 2025 zakończona! ostatnie domy na sprzedaż.
Prezentujemy 3 lokale dwupoziomowe w zabudowie bliźniaczej w centrum Mierzyna o powierzchni od 78,69m2 do 78,84 m2.
Pozostały 2 lokale w stanie deweloperskim oraz 1 lokal w standardzie wykończonym.
STAN DEWELOPERSKI
* LOKAL NR 1
Lokal o powierzchni 78,84m2 w cenie 770.000 zł
Ogród ok. 52m2
Powierzchnia działki 103m2
* LOKAL NR 2
Lokal o powierzchni 78,78m2 w cenie 799.000 zł
Ogród ok. 52m2
Powierzchnia działki 103m2
STAN WYKOŃCZONY
* LOKAL NR 3
Lokal o powierzchni 78,69m2 w cenie 899.000 zł
Ogród ok. 52m2
Powierzchnia działki 103m2
- ogrzewanie podłogowe, panele,
- ściany wygładzone i pomalowane,
- kafle w przedpokoju i części kuchennej,
- oświetlenie, drzwi do wc, łazienki i sypialni,
- łazienka w pełni wykończona: wanna, prysznic, wc, umywalka z szafką i lustrem.
Wszystkie powyższe lokale składają się z:
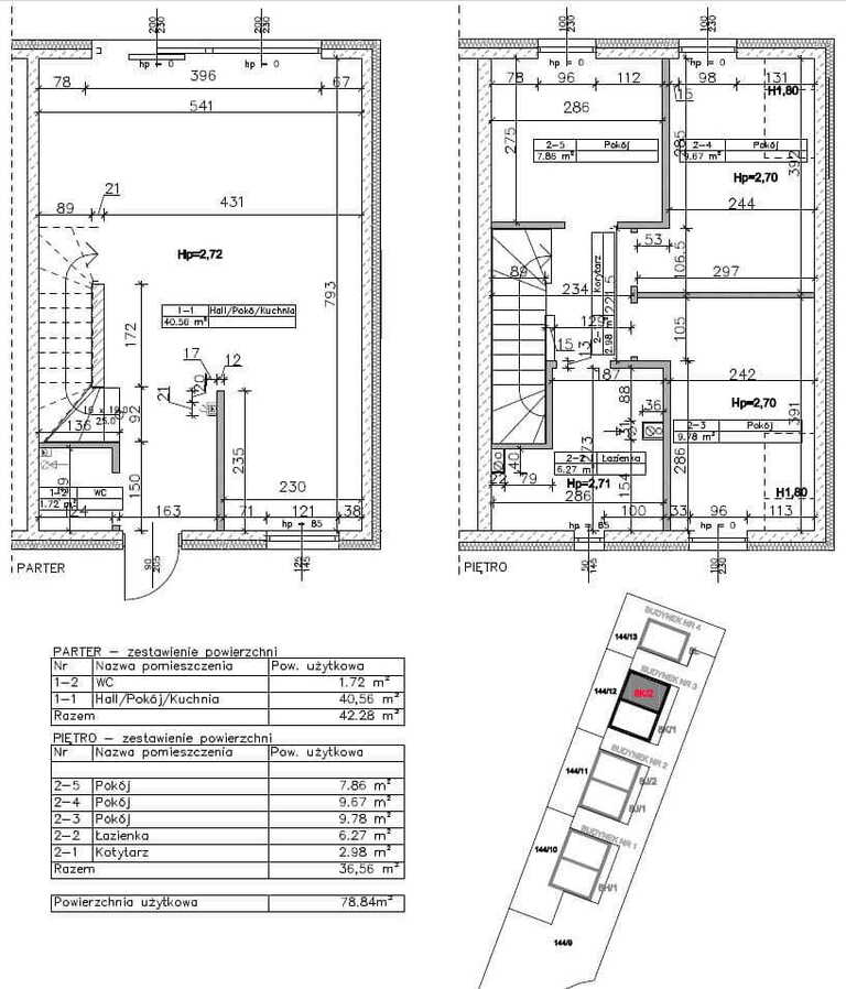
PARTER:
* przedpokój, salon z aneksem kuchennym oraz wyjściem do ogrodu ok. 40,56 m2
* osobne wc z umywalką ok. 1,72 m2
PIĘTRO 1
* pokój 1 ok. 7,86 m2
* pokój 2 ok. 9,67 m2
* pokój 3 ok. 9,78 m2
* łazienka z wc, wanną oraz prysznicem ok. 6,27 m2
* kortytarz ok 2,98 m2
Każdy z domów w cenie ma własny ogródek oraz dwa zewnętrzne miejsca postojowe.
Lokal bezczynszowy. Ogrzewanie podłogowe - pompa ciepła. Okna PCV trzyszybowe.
Woda oraz kanalizacja z sieci gminnej.
Dodatkowa kwota za udział w drodze 6150 zł brutto – płatna jednorazowo do umowy przeniesienia własności.
ZDJĘCIA PREZENTUJĄ STAN RZECZYWISTY lokalu wykończonego oraz przykładowe wizualizacje do własnej aranżacji.
Polecam ze względu na lokalizację, spokojną i cichą okolicę idealną do odpoczynku.
Zapraszam na pierwszą prezentację.
| Rodzaj oferty | Dom na sprzedaż | ||
|---|---|---|---|
| Liczba pokoi | 4 | ||
| Liczba łazienek | 1 | ||
| Liczba pięter | 1 | ||
| Powierzchnia | 78 m2 | ||
| Działka | 103 | ||
| Cena | 770 000 zł (9 766 zł/m2) | ||
| Forma prawna | Własność | ||
| Forma prawna gruntu | Udział | ||
| Rok budowy | 2025 | ||
| Droga dojazdowa | Asfaltowa | ||
| Materiał | Silikat | ||
| Stan budynku | Stan deweloperski | ||
| Rodzaj ogrzewania | pompa ciepła | ||
| Komunikacja | autobus | ||
| Dostępne w okolicy | szkoła, przedszkole, centrum handlowe, sklep, kort tenisowy | ||
| Dodatkowo | przystosowane dla niepełnosprawych     |