POWIERZCHNIA (M²)

CENA ZA M²

PIĘTRO

LICZBA POKOI

ROK BUDOWY

RYNEK

NUMER OFERTY

Poprzednia oferta
Powrót
Następna oferta

Mierzyn 3 pokojowe mieszkanie ! gotowe

Mieszkanie na sprzedaż

Lokalizacja Mierzyn
Numer oferty ELT34326
Rodzaj budynku Niski blok
Rok budowy 2026
Materiał Cegła
Liczba pokoi 3
Powierzchnia 68 m2
Cena 715 936 zł

Opis

Na sprzedaż mieszkanie trzy pokojowe w stanie deweloperskim w niskim budynku z winą na Mierzynie.

Apartament znajduje się na ostatnim trzecim piętrze ( brak sąsiada nad głową ).
Winda zjeżdża do hali z miejscami parkingowymi.

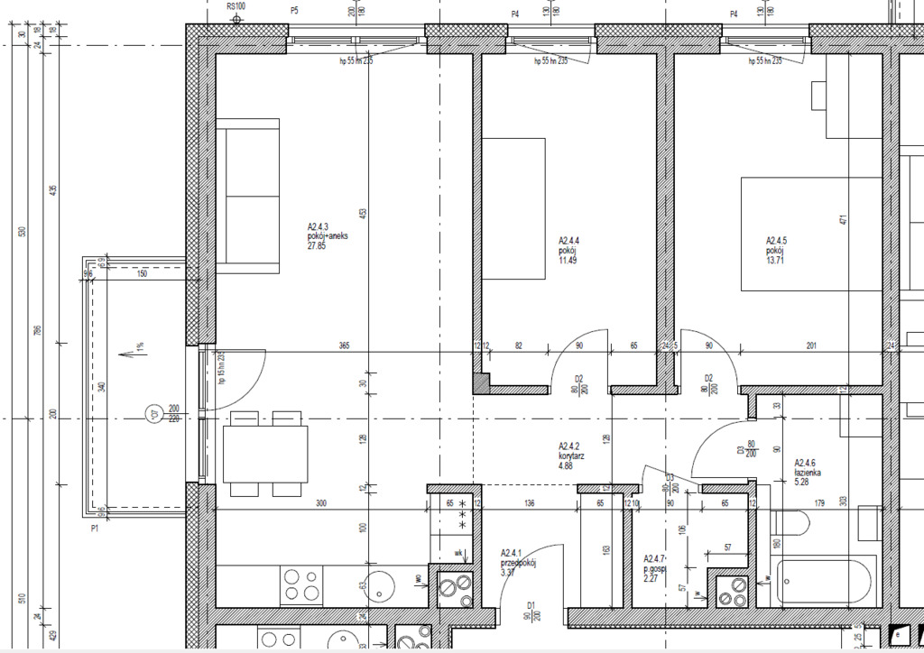
Na powierzchnię 68,4m2 składa się:

  • salon z aneksem kuchennym o pow. 27,8m2
  • sypialnia o pow. 11,49m2
  • sypialnia o pow. 13,71m2
  •  łazienka razem z WC o pow. 5,28m2
  •  pomieszczenie gospodarcze o pow. 2,27m2
  •  korytarz

W standardzie deweloperskim :

  • okna trzyszybowe 
  • tynki gipsowe, maszynowe
  • rozprowadzona instalacja elektryczna, wodno-kanalizacyjna, grzewcza
  • rozprowadzona instalacja telewizyjna i internetowa
  • w sypialniach grzejniki panelowe w łazience grzejnik drabinkowy..

Do każdego mieszkania trzeba dokupić obligatoryjnie minimum jedno miejsce parkingowe znajdujące się w hali garażowej pod budynkiem ( winda zjeżdża na poziom: -1 )

Ogrzewanie i ciepła woda z SEC'u.

Inwestycja zakończona,  mieszkanie gotowe do wydania. 

Nowoczesna architektura, kompleksowo zagospodarowany teren osiedla, chodniki, niskie nasadzenia, plac zabaw dla najmłodszych.
Doskonała lokalizacja, spokojne sąsiedztwo, niska zabudowa, w pobliżu: szkoła ,żłobek, przedszkole, sklepy, blisko komunikacja miejska. 
Zapraszam na prezentację


Szczegóły
Rodzaj oferty Mieszkanie na sprzedaż
Liczba pokoi 3
Liczba łazienek 1
Liczba pięter 3
Powierzchnia 68 m2
Cena 715 936 zł (10 400 zł/m2)
Forma prawna Własność
Forma prawna gruntu Własność
Rodzaj budynku Niski blok
Rok budowy 2026
Droga dojazdowa Asfaltowa
Materiał Cegła
Stan budynku Idealny
Rodzaj ogrzewania co miejskie
Komunikacja autobus
Odległość od centrum miasta 2 km
Dostępne w okolicy przedszkole, kort tenisowy, centrum handlowe, fitnes, restauracja, szkoła
Dodatkowo przystosowane dla niepełnosprawych    internet    telewizja kablowa    winda