Mieszkanie na sprzedaż
| Lokalizacja |
Warzymice ul. Tęczowe Ogrody |
|
|---|---|---|
| Numer oferty | OST20521 | |
| Rodzaj budynku | Niski blok | |
| Rok budowy | 2009 | |
| Materiał | Cegła | |
| Liczba pokoi | 4 | |
| Powierzchnia | 88 m2 | |
| Cena | 920 000 zł |
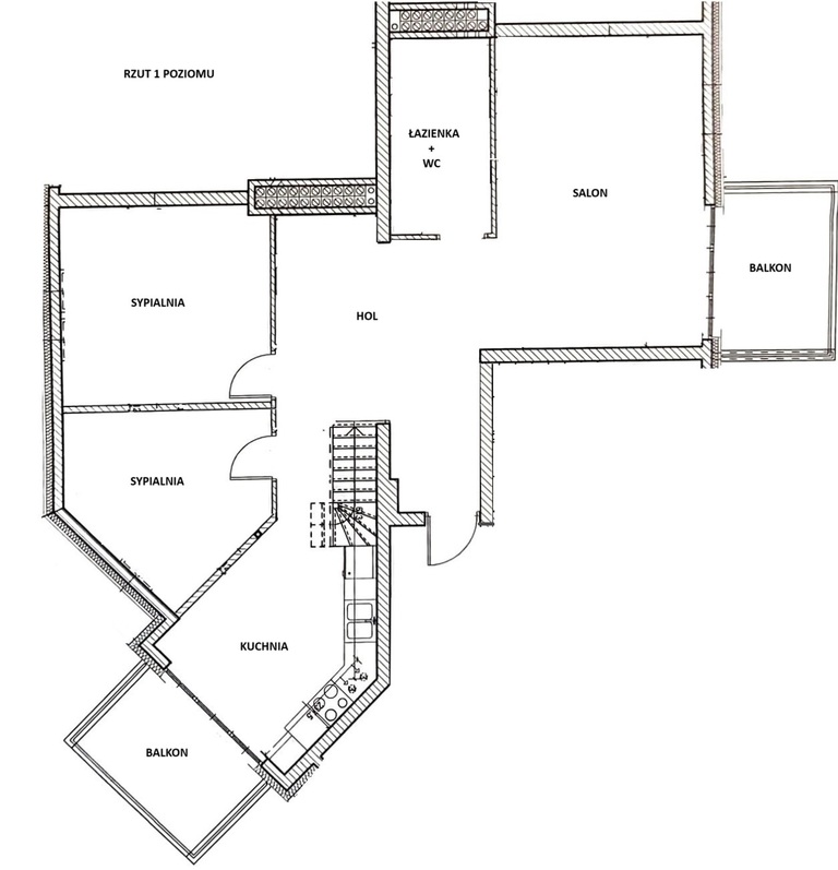
Prezentujemy Państwu na sprzedaż 4 pokojowe mieszkanie o pow. ok. 89 m2 usytuowane na 2 piętrze niskiego budynku na klimatycznym i zamkniętym osiedlu na Warzymicach.
Nieruchomość o bardzo ciekawym rozkładzie pomieszczeń, funkcjonalnie i przyjemnie zaaranżowana.
Na powierzchnię mieszkania składają się dwa poziomy.
Na pierwszym znajdują się spory salon o pow. ok. 23 m2 w wyjściem na balkon, dwie sypialnie, kuchnia z wyjściem na balkon, łazienka z WC oraz duży hol z szafami w zabudowie.
Łazienka spora wyposażona w wannę, kabinę prysznicową WC oraz bidet, wykończona gustownymi kaflami.
Kuchnia urządzona bardzo funkcjonalnie, z meblami w zabudowie .
Na drugim poziomie znajduje się duża przestrzeń gdzie znajduje się sypialnia z garderobą oraz część przeznaczona na gabinet.
Nieruchomość w bardzo dobrym stanie, nowocześnie zaaranżowana i przyjemna dla oka.
Liczne punktowe oświetlenie oraz wystrój dają bardzo przyjemny klimat.
Czynsz ok. 1200 + 330 zł fundusz remontowy. Ogrzewanie oraz ciepła woda w czynszu (miejskie).
Do użytku 2 piwnice!
Istnieje możliwość dokupienia garażu.
Budynek w świetnym stanie z ładną klatką oraz przyjemną infrastrukturą na całym osiedlu.
Osiedle strzeżone i monitorowane z licznymi miejscami parkingowymi.
Okolica przyjazna rodzinie. W pobliżu sklepy, punkty usługowe oraz miejsca do rekreacji!
Szczególnie polecamy ze względu na lokalizację oraz standard nieruchomości!
Zapraszamy na prezentacje
| Rodzaj oferty | Mieszkanie na sprzedaż | ||
|---|---|---|---|
| Liczba pokoi | 4 | ||
| Liczba łazienek | 1 | ||
| Liczba pięter | 2 | ||
| Powierzchnia | 88 m2 | ||
| Cena | 920 000 zł (10 356 zł/m2) | ||
| Forma prawna | Własność | ||
| Rodzaj budynku | Niski blok | ||
| Rok budowy | 2009 | ||
| Materiał | Cegła | ||
| Rodzaj ogrzewania | co miejskie | ||
| Dodatkowo | piwnica    ochrona    monitoring     |