Dom na sprzedaż
| Lokalizacja | Podańsko | |
|---|---|---|
| Numer oferty | MNI22178 | |
| Rok budowy | 1945 | |
| Materiał | Cegła | |
| Liczba pokoi | 5 | |
| Powierzchnia | 138 m2 | |
| Działka | 1600 m2 | |
| Cena | 779 000 zł |
Oferta dostępna tylko u NAS!!!
Zapraszamy do zapoznania się z najnowszą ofertą sprzedaży domu parterowego z użytkowym poddaszem położonego w miejscowości Podańsko.
Dom wybudowany w technologii tradycyjnej usytuowany na zagospodarowanej działce o pow. 1600 m2, na której znajduje się dodatkowo budynek gospodarczy.
To doskonała nieruchomość dla rodziny oraz osób potrzebujących przestrzeni w spokojnej okolicy.
Dom o pow. użytkowej 138 m2, gotowy do wprowadzenia.
Dom mieszkalny składa się z następujących pomieszczeń:
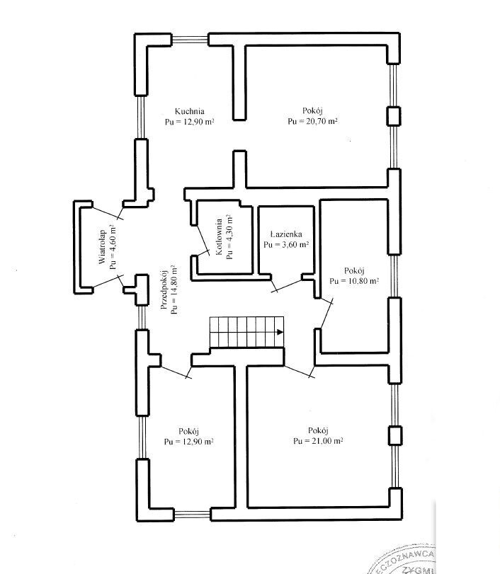
Parter o łącznej pow. 105,60 m2:
- salon o pow. 21,00 m2,
- kuchnia o pow. 12,90 m2
- 3 pokoje o pow. 10,80; 12,90; 20,70
- łazienka o pow. 3,60 m2,
- kotłownia o pow. 4,30 m2,
- przedpokój o pow. 14,80 m2,
- wiatrołap o pow. 4,60 m2.
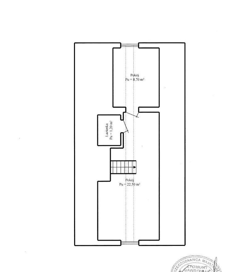
Poddasze o pow. 32,40 m2:
- duży pokój o pow. 22,50 m2,
- łazienka o pow. 1,20 m2,
- pokój o pow. 8,70 m2.
KONSTRUKCJA/STARNARD WYKOŃCZENIA:
- ściany - cegła, docieplona styropianem, puc
- dach dwuspadowy pokryty dachówką ceramiczną,
- podłogi panele,
- ściany malowane,
- instalacja wod-kan - sieć miejska,
- ogrzewanie - piec gazowy,
- okna PCV, rolety antywłamaniowe.
ZAGOSPODAROWANIE TERENU:
- teren ogrodzony,
- brama wjazdowa z furtką,
- budynek gospodarczy.
Miejscowość Podańsko oddalona jest zaledwie 5 km od centrum Goleniowa. W bezpośrednim sąsiedztwie- osiedle Helenów, gdzie znajduje się szkoła, przedszkole, żłobek, przychodnia lekarska, sklepy i wiele innych usług. Dużym atutem jest również ścieżka rowerowa i komunikacja miejska.
Koszty związane z nabyciem nieruchomości:
- wynagrodzenie biura z tytułu usługi pośrednictwa w nabyciu,
- podatek PCC 2%, taksa notariusza, opłaty sądowe, opłat za wypisy aktu notarialnego.
Zapraszamy na prezentacje i do składania ofert zakupu.
BEZPŁATNIE POMAGAMY W UZYSKANIU KREDYTU.
| Rodzaj oferty | Dom na sprzedaż | ||
|---|---|---|---|
| Liczba pokoi | 5 | ||
| Liczba łazienek | 2 | ||
| Liczba pięter | 1 | ||
| Powierzchnia | 138 m2 | ||
| Działka | 1600 | ||
| Cena | 779 000 zł (5 644 zł/m2) | ||
| Forma prawna | Własność | ||
| Forma prawna gruntu | Własność | ||
| Rok budowy | 1945 | ||
| Droga dojazdowa | Asfaltowa | ||
| Materiał | Cegła | ||
| Stan budynku | Bardzo dobry | ||
| Dodatkowo | ogród     |