POWIERZCHNIA (M²)

CENA ZA M²

PIĘTRO

LICZBA POKOI

ROK BUDOWY

RYNEK

NUMER OFERTY

Poprzednia oferta
Powrót
Następna oferta

Bliźniak z garażem i dużą działką w Lipniku

Dom na sprzedaż

Lokalizacja Lipnik
Numer oferty 266/11683/O
Rok budowy 2024
Materiał Bloczki
Liczba pokoi 4
Powierzchnia 126 m2
Działka 600 m2
Cena 719 000 zł

Opis

!!! OSTATNI DOSTĘPNY BLIŹNIAK  W LIPNIKU!!!

Serdecznie zapraszam do zapoznania się z ofertą sprzedaży domu w zabudowie bliźniaczej, znajdujący się w miejscowości Lipnik.

  • Ofertą sprzedaży jest dom w zabudowie bliźniaczej, sprzedawany w stanie deweloperskim. Dom jest oddzielony od sąsiedniego domu garażem , co zapewnia większą niezależność.
  • Na całej powierzchni użytkowej - ogrzewanie podłogowe.
  • Ogrzewanie - z pompy ciepła.

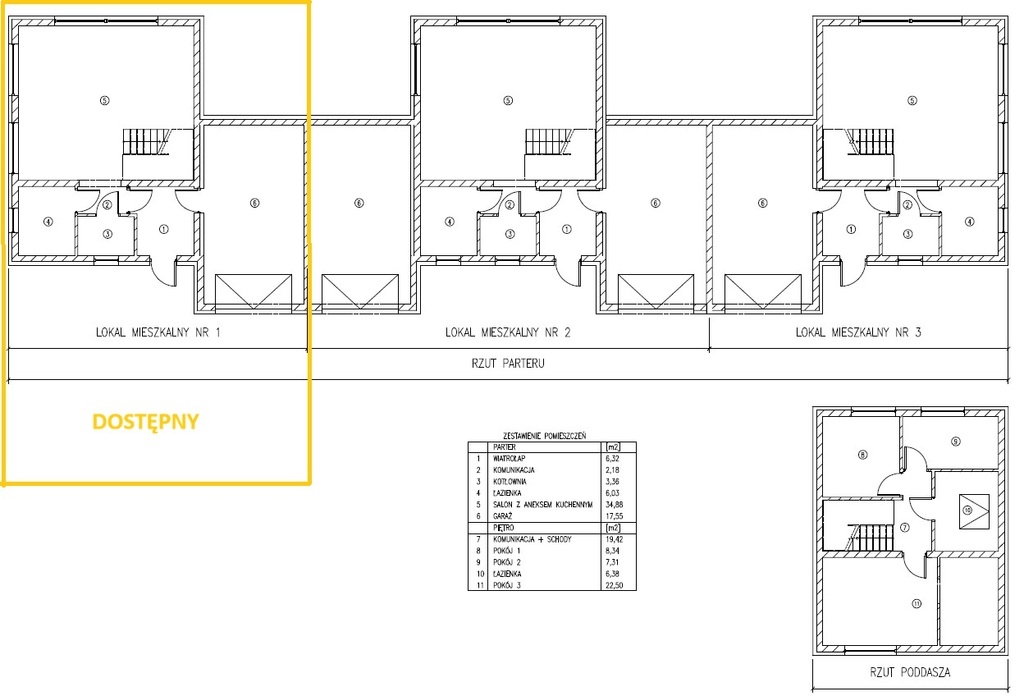
Skrajny bliźniak z garażem o  powierzchni całkowitej  126,6 m2 w skład której wchodzą:

PARTER: 
- salon z aneksem kuchennym 34,88 m2
- łazienka 6,03 m2
- wiatrołap 6,32 m2
- komunikacja  - 2,18m2
- kotłownia - 3,36 m2
GARAŻ - 17,55 m2

RAZEM:  52,76 m2 + garaż  17,55 m2 =70,32 m2

PODDASZE:
- pokój - 22,50 m2
- pokój - 7,81 m2
- pokój - 9,14 m2
- łazienka  - 6,38m2
- komunikacja + schody -  10,42

RAZEM: 56,25 m2 

Powierzchnia działki wynosi 600 m2.

Niewątpliwym atutem są również piękne duże tarasowe okna o szerokości 4m!!!
Idealna lokalizacja: w okolicy - szkoła podstawowa, przedszkole, Centrum handlowe Lipnik, Rossman, Netto i wiele innych. Szybki wyjazd do Szczecina i do centrum Stargardu.
W bliskiej odległości znajduje się również Jezioro Miedwie, Centrum Handlowe - Lipnik, Szkoła, Przedszkole, szybki dojazd do Stargardu i do Szczecina.

Możliwość wykończenia domu pod klucz!
Kupujący nie płaci 2% PCC!

Serdecznie polecam - nie czekaj , zarezerwuj już dziś i ciesz się pięknym domem w bardzo dobrej lokalizacji!

Zapraszam serdecznie!





Szczegóły
Rodzaj oferty Dom na sprzedaż
Liczba pokoi 4
Powierzchnia 126 m2
Działka 600
Cena 719 000 zł (5 679 zł/m2)
Rok budowy 2024
Materiał Bloczki
Stan budynku Stan deweloperski
Rodzaj ogrzewania pompa ciepła