Dom na sprzedaż
| Lokalizacja | Szczecin Gumieńce | |
|---|---|---|
| Numer oferty | ROY04408 | |
| Rok budowy | 2025 | |
| Materiał | Silikat | |
| Liczba pokoi | 4 | |
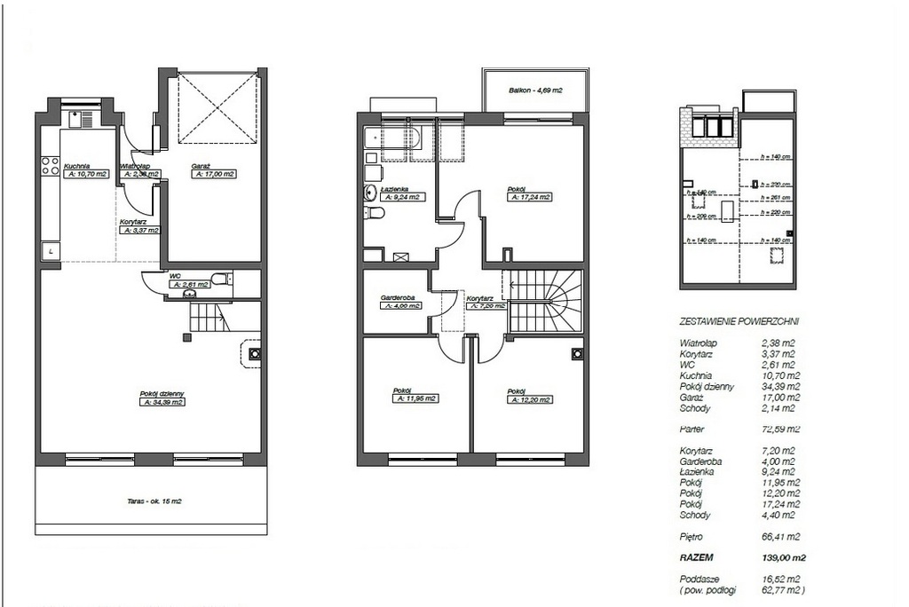
| Powierzchnia | 139 m2 | |
| Działka | 178 m2 | |
| Cena | 1 399 000 zł |
Mam przyjemność zaprezentować Państwu bardzo interesujący dom 139m², 4pokojowy w zabudowie szeregowej, znajdujący się na Gumieńcach.
Do nieruchomości przynależy ogród z tarasem, idealny do wypoczynku na świeżym powietrzu, oraz garaż z automatyczną bramą na pilota. Dodatkowo przy domu znajdują się miejsca parkingowe dla mieszkańców i gości.
Na powierzchnię użytkową składają się:
Parter:
- Salon z aneksem kuchennym o powierzchni 45,09 m2,
- wc o powierzchni 2,61 m2,
- korytarz o powierzchni 3,37 m2,
- wiatrołap o powierzchni 2,38 m2,
- garaż o powierzchni 17,00 m2,
- schody o powierzchni 2,14 m2.
+ Taras o powierzchni 15m2,
+ Ogród o powierzchni 178 m2.
Piętro:
- Pokój o powierzchni 17,24 m2,
- Pokój o powierzchni 12,20 m2,
- Pokój o powierzchni 11,95 m2,
- Garderoba o powierzchni 4 m2,
- Łazienka o powierzchni 9,24 m2,
- Korytarz o powierzchni 7,20 m2,
- Schody o powierzchni 4,20 m2.
+ Do swojej dyspozycji mają państwo również strych, który nie został wliczony w metraż domu .
Lokalizacja to doskonały wybór dla osób ceniących spokój, bezpieczeństwo i komfort, do centrum miasta zaledwie 15min.
W okolicy znajduje się dużo otwartej przestrzeni, co stanowi ogromny atut tej nieruchomości. W sąsiedztwie dostępne są również apteki, szkoły oraz przedszkola, co czyni to miejsce idealnym dla rodzin.
Nieruchomość sprzedawana w standardzie deweloperskim - Możliwe wykończenie domu pod klienta - odbiór pod klucz.
Serdecznie zapraszam na prezentację – ten dom z pewnością spełni Państwa oczekiwania!
| Rodzaj oferty | Dom na sprzedaż | ||
|---|---|---|---|
| Liczba pokoi | 4 | ||
| Liczba łazienek | 1 | ||
| Liczba pięter | 1 | ||
| Powierzchnia | 139 m2 | ||
| Działka | 178 | ||
| Cena | 1 399 000 zł (10 064 zł/m2) | ||
| Forma prawna | Własność | ||
| Forma prawna gruntu | Własność | ||
| Rok budowy | 2025 | ||
| Droga dojazdowa | Kostka brukowa | ||
| Materiał | Silikat | ||
| Stan budynku | Stan deweloperski | ||
| Rodzaj ogrzewania | gazowe | ||
| Dodatkowo | alarm    internet    telewizja kablowa    ogród    monitoring     |