POWIERZCHNIA (M²)

CENA ZA M²

PIĘTRO

LICZBA POKOI

ROK BUDOWY

RYNEK

NUMER OFERTY

Poprzednia oferta
Powrót
Następna oferta

2-3 pokoje | Podjuchy | parter | ogródek + garaż

Mieszkanie na sprzedaż

Lokalizacja Szczecin Podjuchy
Zakręt
Numer oferty 121/13324/O
Rodzaj budynku Dom
Rok budowy 1960
Materiał Cegła
Liczba pokoi 3
Powierzchnia 49 m2
Cena 349 000 zł

Opis

Przedstawiamy ofertę sprzedaży mieszkania w kameralnej niskiej kamienicy (tylko 6 rodzin) w Podjuchach niedaleko Placu Szewińskiej, ale położonej w cichej bocznej uliczce. W cenie mieszkania jest przynależy ogródek o powierzchni około 20mkw oraz garaż blaszany.
 
Istnieje możliwość łatwego przywrócenia dawnego układu, ale także dowolnego kształtowania przestrzeni dziennej, dzięki czemu uzyskamy przestronny salon z aneksem kuchennym i częścią jadalnianą (rzut i wizualizacja).
 
Mieszkanie:
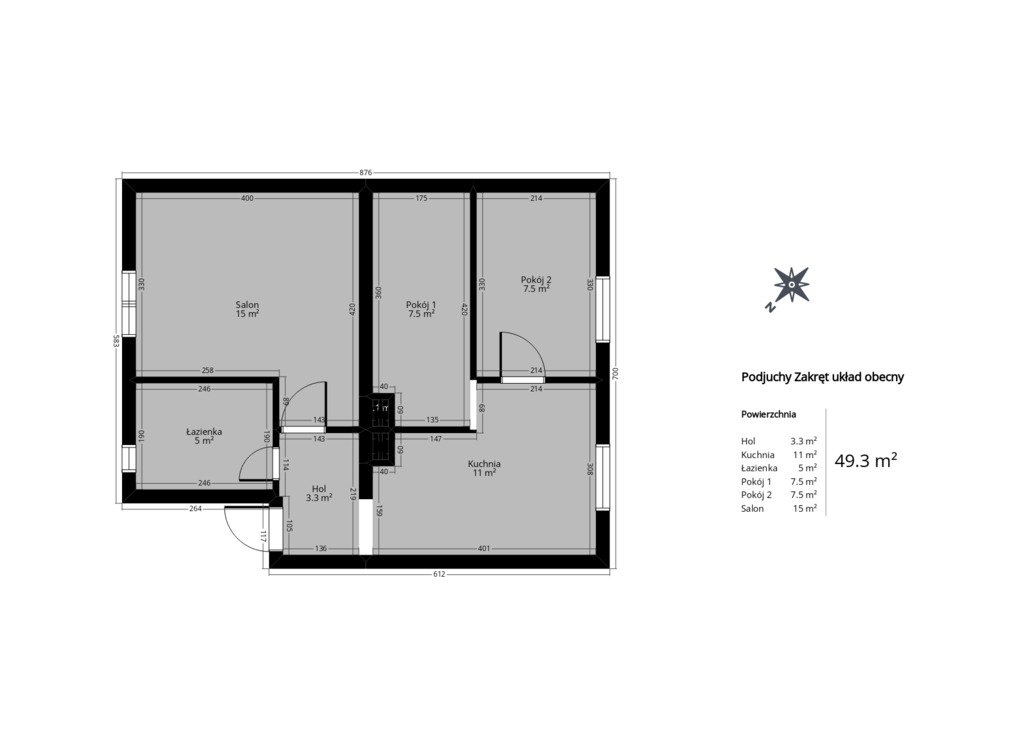
* powierzchnia 49,3mkw
* pierwotnie 2 pokoje (obecnie 3), kuchnia, łazienka i przedpokój
* na podłogach panele (pokoje) i gres (pozostała część), ściany gładzone i malowane
* CO i ciepła woda z nowoczesnego pieca gazowego (w pokojach grzejniki, podłogówka w kuchni i łazience)
* wymieniona instalacja elektryczna
* okna PCV po wymianie wychodzące na obie strony
* przynależna piwnica, a także ogródek (15mkw) i garaż blaszany
 
Budynek:
*mieszkanie znajduje się na parterze w 2 piętrowym domu wielorodzinnym
*fasada świeżo po odnowieniu wykonana wraz z izolacją pionową
*dach po remoncie (adaptacje)
*zadbane podwórko
 
Okolica:
 
Dom znajduje się w wyjątkowo atrakcyjnej lokalizacji — w zacisznej uliczce w pobliżu Placu Szewińskiej, w spokojnych i zielonych Podjuchach. To miejsce, które łączy komfort miejskiego życia z bliskością natury. W bezpośrednim otoczeniu dostępne są sklepy, punkty usługowe, szkoła, przedszkole oraz przystanki komunikacji miejskiej, co zapewnia wygodę na co dzień.
 
Okolica słynie z przyjaznej atmosfery i dużej ilości terenów zielonych. W kilka minut można dotrzeć do malowniczych tras spacerowych i rowerowych prowadzących w kierunku Puszczy Bukowej — idealnej dla osób aktywnych oraz wszystkich, którzy cenią odpoczynek na świeżym powietrzu.
 
Lokalizacja zapewnia szybki dojazd do centrum Szczecina i wjazd na trasę A6, a jednocześnie umożliwia korzystanie z uroków spokojnej, kameralnej dzielnicy. To doskonały wybór dla osób poszukujących miejsca oferującego zarówno wygodę, jak i codzienny kontakt z naturą.
 
Ważne:
* Koszty utrzymania przy 3 osobach to zaledwie 330zł i obejmuje czynsz z funduszem remontowym i zaliczkami na wodę
* koszty gazu to 350zł/mieś. Zimą i 80zł/mieś. latem
* nowa elektryka i hydraulika
* przynależna piwnica, ogródek i garaż
* dostępna kablówka Orange


Szczegóły
Rodzaj oferty Mieszkanie na sprzedaż
Liczba pokoi 3
Liczba łazienek 1
Liczba pięter 2
Powierzchnia 49 m2
Cena 349 000 zł (7 079 zł/m2)
Forma prawna Własność
Rodzaj budynku Dom
Rok budowy 1960
Materiał Cegła
Rodzaj ogrzewania gazowe
Komunikacja autobus, kolej,
Dostępne w okolicy fitnes, przedszkole, las, park, rzeka, bank, restauracja, centrum handlowe, szkoła, apteka, sklep, przychodnia lekarska, jezioro, plac zabaw, kościół, zabudowa niska