Mieszkanie na sprzedaż
| Lokalizacja |
Szczecin Pogodno ul. Romualda Traugutta |
|
|---|---|---|
| Numer oferty | ROY04401 | |
| Rodzaj budynku | Część domu | |
| Rok budowy | 1990 | |
| Materiał | Cegła | |
| Liczba pokoi | 4 | |
| Powierzchnia | 155 m2 | |
| Cena | 1 199 000 zł |
Dwupoziomowe mieszkanie z potencjałem – idealne dla rodziny
Mieszkanie położone jest w spokojnej części Pogodna, przy ul. Romualda Traugutta w Szczecinie.
To przestronny, dwupoziomowy lokal w zabudowie szeregowej, oferujący łącznie 155,30 m² powierzchni użytkowej.
Układ oraz charakter nieruchomości sprawiają, że to doskonała propozycja dla rodzin poszukujących dużego, funkcjonalnego mieszkania w kameralnym otoczeniu.
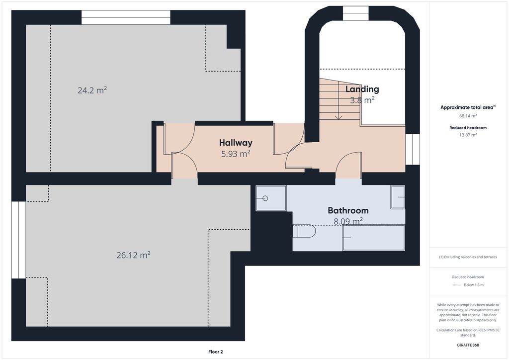
Układ i funkcjonalność
Mieszkanie zajmuje pierwsze piętro oraz poddasze budynku. Pomieszczenia są jasne, a układ pozwala na wyraźny podział na część dzienną i prywatną.
Wnętrze wymaga remontu, co daje możliwość pełnej personalizacji i stworzenia aranżacji dopasowanej do własnych potrzeb.
Poziom pierwszy:
salon z aneksem kuchennym o powierzchni ok. 40 m²,
sypialnia,
toaleta,
pomieszczenie gospodarcze / pralnia,
balkon z widokiem na zieleń.
Poziom drugi:
dwa duże pokoje,
łazienka z wanną i prysznicem,
korytarz i komunikacja.
Przestrzeń jest bardzo dobrze doświetlona dzięki dużym przeszkleniom i ekspozycji na kilka stron świata.
Rozkład pomieszczeń sprzyja wygodzie codziennego życia i zapewnia każdemu domownikowi poczucie prywatności.
Lokalizacja
Ulica Romualda Traugutta to spokojna, zielona część Pogodna – jednej z najbardziej cenionych dzielnic Szczecina.
Okolica jest kameralna, a jednocześnie dobrze skomunikowana z centrum miasta.
W zasięgu spaceru znajdują się:
sklepy i punkty usługowe (Żabka, paczkomat),
szkoły i przedszkola,
przystanki komunikacji miejskiej,
tereny spacerowe i place zabaw.
Połączenie spokoju i pełnej infrastruktury sprawia, że lokalizacja ta doskonale odpowiada potrzebom rodzin.
Dodatkowe informacje
Powierzchnia całkowita: 155,30 m² (zgodnie z księgą wieczystą),
Ogrzewanie: gazowe (piec dwufunkcyjny),
Forma własności: pełna własność,
Budynek: zabudowa szeregowa,
Otoczenie: spokojne i zadbane.
Podsumowanie
To mieszkanie stanowi doskonałą propozycję dla rodziny, która szuka przestrzeni i funkcjonalnego układu w dobrej lokalizacji.
Dwupoziomowy charakter, możliwość własnej aranżacji oraz położenie w sercu Pogodna to atuty, które sprawiają, że nieruchomość ma duży potencjał zarówno do zamieszkania, jak i jako inwestycja długoterminowa.
| Rodzaj oferty | Mieszkanie na sprzedaż | ||
|---|---|---|---|
| Liczba pokoi | 4 | ||
| Liczba łazienek | 1 | ||
| Liczba pięter | 2 | ||
| Powierzchnia | 155 m2 | ||
| Cena | 1 199 000 zł (7 720 zł/m2) | ||
| Forma prawna | Własność | ||
| Rodzaj budynku | Część domu | ||
| Rok budowy | 1990 | ||
| Droga dojazdowa | Asfaltowa | ||
| Materiał | Cegła | ||
| Stan budynku | Bardzo dobry | ||
| Rodzaj ogrzewania | gazowe | ||
| Dostępne w okolicy | przedszkole, kościół, apteka, bazarek, fitnes, bank, centrum handlowe, szkoła | ||
| Dodatkowo | internet    telewizja kablowa    ogród     |