Mieszkanie na sprzedaż
| Lokalizacja | Bezrzecze | |
|---|---|---|
| Numer oferty | IDN33890 | |
| Rodzaj budynku | Niski blok | |
| Rok budowy | 1990 | |
| Materiał | Cegła | |
| Liczba pokoi | 3 | |
| Powierzchnia | 82 m2 | |
| Cena | 645 000 zł |
Na sprzedaż oferuję wyjątkowe, dwupoziomowe mieszkanie zlokalizowane przy ul. Koralowej w Bezrzeczu – jednej z najbardziej pożądanych, spokojnych i zielonych części aglomeracji szczecińskiej.
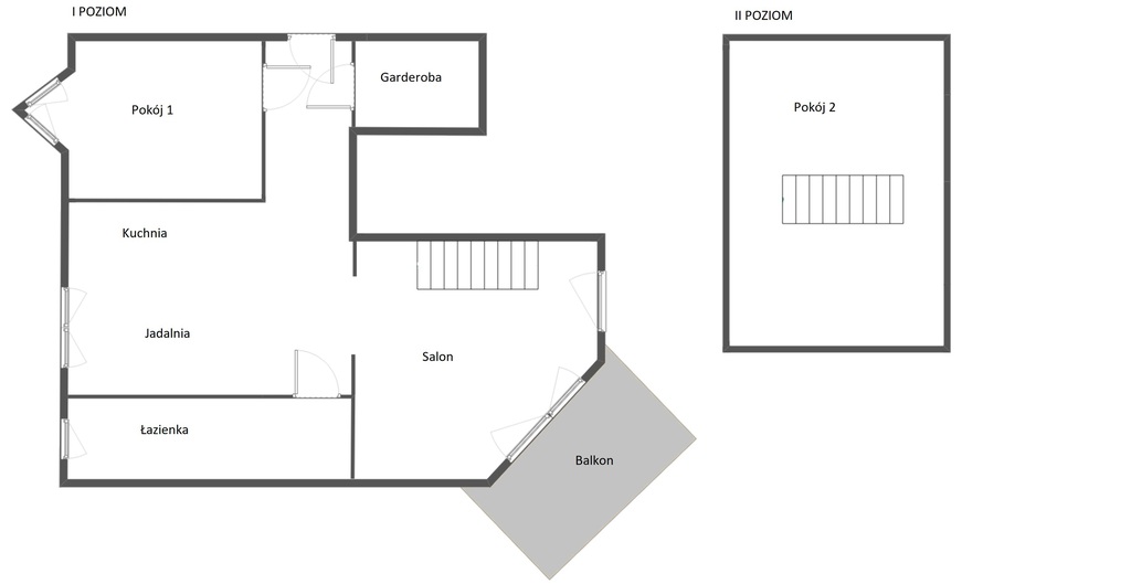
Budynek i układ mieszkania
Nieruchomość znajduje się w kameralnym, 3-piętrowym budynku z lat 90., w którym na każdym piętrze mieszczą się jedynie trzy mieszkania. Lokal usytuowany jest na ostatnim, trzecim piętrze, co gwarantuje ciszę i prywatność – brak sąsiadów nad głową to duży komfort na co dzień.
Mieszkanie ma powierzchnię 82 m² (realnie większą dzięki skosom) i wyróżnia się bardzo funkcjonalnym oraz nietypowym układem, który warto zobaczyć na żywo.
I poziom
kuchnia z wygodną jadalnią
salon z wyjściem na balkon i schodami na 2 poziom
sypialnia
łazienka z WC
przedpokój
praktyczne pomieszczenie gospodarcze (ok. 1,5 m²)
II poziom (ze skosami)
duża, wysoka przestrzeń open space – obecnie jako strefa dzieci, z możliwością wydzielenia dwóch dodatkowych pokoi, co daje łącznie nawet 4 pokoje. Ta część mieszkania nadaje wnętrzu charakter domu jednorodzinnego.
Standard wykończenia
Mieszkanie w 2024 r. przeszło odświeżenie – zostało odmalowane i nie wymaga dodatkowych nakładów finansowych. Ogrzewanie pochodzi z sieci miejskiej(lokalna kotłownia), a w lokalu nie ma gazu(w budynku jest).
Dodatkowe atuty
duży balkon z pięknym widokiem na las i okoliczną zabudowę domków jednorodzinnych.
duża piwnica 11,3 m² (ujęta w Księdze Wieczystej)
czynsz ok. 1200 zł (w tym zaliczki na wodę i ogrzewanie)
To mieszkanie to doskonała propozycja dla osób poszukujących przestrzeni, oryginalnego układu i klimatu, którego nie znajdziemy w standardowych lokalach.
A okolica charakteryzuje się niską zabudową, licznymi terenami rekreacyjnymi i stale rozwijającą infrastrukturą handlowo-usługową, dzięki czemu Bezrzecze staje się miejscem wygodnym i niemal samowystarczalnym.
Dobre połączenia komunikacyjne oraz sieć ścieżek rowerowych zapewniają szybki dojazd zarówno do centrum, jak i okolicznych miejscowości.
Oferta na wyłączność.
Zapraszam do obejrzenia – to nieruchomość, której charakter najlepiej oddaje osobista wizyta.
| Rodzaj oferty | Mieszkanie na sprzedaż | ||
|---|---|---|---|
| Liczba pokoi | 3 | ||
| Liczba łazienek | 1 | ||
| Liczba pięter | 3 | ||
| Powierzchnia | 82 m2 | ||
| Cena | 645 000 zł (7 865 zł/m2) | ||
| Forma prawna | Własność | ||
| Rodzaj budynku | Niski blok | ||
| Rok budowy | 1990 | ||
| Materiał | Cegła | ||
| Rodzaj ogrzewania | co miejskie | ||
| Komunikacja | autobus | ||
| Dostępne w okolicy | restauracja, basen, fitnes, las, przedszkole, szkoła, centrum handlowe, apteka, zabudowa niska, plac zabaw, park, Żłobek, gimnazjum |