POWIERZCHNIA (M²)

CENA ZA M²

PIĘTRO

LICZBA POKOI

ROK BUDOWY

RYNEK

NUMER OFERTY

Poprzednia oferta
Powrót
Następna oferta

Przestronne mieszkanie na parterze z ogródkiem!

Mieszkanie na sprzedaż

Lokalizacja Mierzyn
Numer oferty HES29035
Rodzaj budynku Niski blok
Rok budowy 2025
Materiał Silikat
Liczba pokoi 3
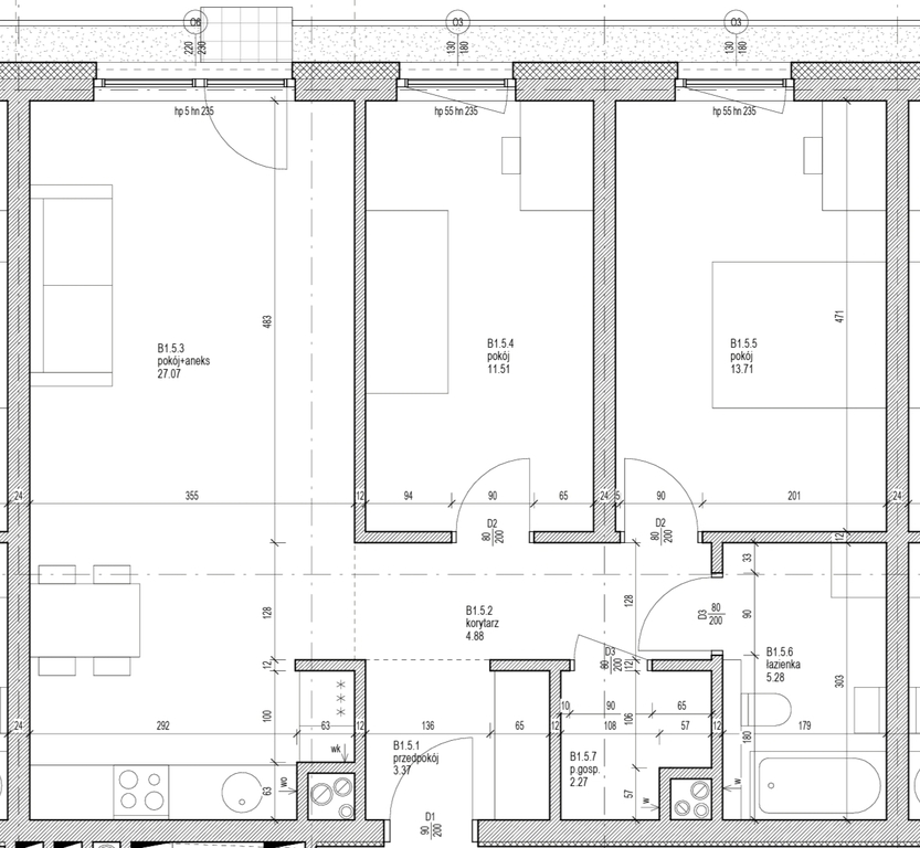
Powierzchnia 68 m2
Cena 708 032 zł

Opis

Przedstawiamy do sprzedaży atrakcyjne mieszkanie w stanie deweloperskim, usytuowane w niskim budynku z windą, w malowniczej lokalizacji Mierzyna. Nieruchomość idealna dla osób ceniących komfort oraz nowoczesne rozwiązania.

Powierzchnia mieszkania obejmuje:

  • salon z aneksem kuchennym 
  • pokój,
  • pokój,
  • przedpokój,
  • pomieszczenie gospodarcze,
  • łazienka.

Mieszkanie sprzedawane w standardzie deweloperskim! 

Możliwość zakupu miejsca parkingowego w hali garażowej (winda zjeżdża na poziom -1) w cenie od 40 000 zł. 

Ogrzewanie oraz ciepła woda z systemu SEC zapewniają komfort przez cały rok.

Gotowe do wydania!

Serdecznie zapraszamy do zapoznania się z ofertą!


Szczegóły
Rodzaj oferty Mieszkanie na sprzedaż
Liczba pokoi 3
Liczba pięter 3
Powierzchnia 68 m2
Cena 708 032 zł (10 400 zł/m2)
Rodzaj budynku Niski blok
Rok budowy 2025
Materiał Silikat
Rodzaj ogrzewania co miejskie
Dodatkowo ogród    winda