Mieszkanie na sprzedaż
| Lokalizacja |
Goleniów ul. Juliusza Słowackiego |
|
|---|---|---|
| Numer oferty | MNI22162 | |
| Rodzaj budynku | Dom wielolokalowy | |
| Rok budowy | 2025 | |
| Materiał | Bloczki | |
| Liczba pokoi | 4 | |
| Powierzchnia | 68 m2 | |
| Cena | 535 000 zł |
JUŻ DZISIAJ UMÓW SIĘ NA PREZENTACJĘ!!!
Przedmiotem sprzedaży jest LOKAL MIESZKALNY w stanie do wykończenia, wybudowany w technologii tradycyjnej według indywidualnego projektu.
Nieruchomość położona w GOLENIOWIE, na cichym i spokojnym osiedlu domków jednorodzinnych.
Mieszkanie znajduje się w budynku czterolokalowym, położony na działce o pow. 338 m2, częściowo ogrodzonej. Dojazd drogą gminną gruntową.
Przed budynkiem wykonana kostka polbrukowa.
Media - prąd, woda i kanalizacja z sieci miejskiej.
Ogrzewanie - gaz,
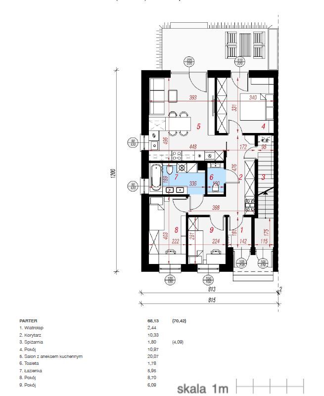
Mieszkanie o pow. użytkowa 68,13 m2, na którą składa się:
- salon z aneksem kuchennym - 20,07 m² (wyjście na ogród),
- pokoje - 10,97 m²; 8,70 m² ; 6,09 m²
- łazienka - 5,95 m²,
- spiżarnia - 1,80 m²,
- hol - 10,33m2,
- wiatrołap - 2,44 m2
KONSTRUKCJA:
- Ściany konstrukcyjne - bloczki beton komórkowy 24 cm, ściany wewnętrzne - bloczki beton komórkowy 12 cm,
- Strop - betonowy,
- Ocieplenie ścian zewnętrznych - styropian 20 cm,
- Pokrycie dachu - dachówka.
STANDARD WYKOŃCZENIA
- drzwi wejściowe,
- okna PCV 3-szybowe + okno tarasowe,
- instalacja - elektryczna, wodna, kanalizacyjna, gazowa, RTV,
- system ogrzewania podłogowego w całym domu,
- ocieplenie dachu - wełna.
W pokojach ściany gładzone malowane, podłogi posadzki. Miejsca postojowe na podjeździe.
Cena zawiera podatek VAT - 8%. Kupujący zwolniony z podatku 2% od czynności cywilnoprawnych.
Koszty związane z nabyciem nieruchomości:
- opłaty u notariusza - taksa notarialna, opłaty sądowe, opłata za wypisy aktu,
- wynagrodzenie biura nieruchomości za usługę pośrednictwa w zakupie.
ZAPRASZAMY NA PREZENTACJE i DO SKŁADANIA OFERT ZAKUPU !!!
| Rodzaj oferty | Mieszkanie na sprzedaż | ||
|---|---|---|---|
| Liczba pokoi | 4 | ||
| Liczba łazienek | 1 | ||
| Liczba pięter | 1 | ||
| Powierzchnia | 68 m2 | ||
| Cena | 535 000 zł (7 852 zł/m2) | ||
| Forma prawna | Własność | ||
| Forma prawna gruntu | Własność | ||
| Rodzaj budynku | Dom wielolokalowy | ||
| Rok budowy | 2025 | ||
| Droga dojazdowa | Polna droga | ||
| Materiał | Bloczki | ||
| Stan budynku | Idealny | ||
| Dodatkowo | ogród     |