POWIERZCHNIA (M²)

CENA ZA M²

PIĘTRO

LICZBA POKOI

ROK BUDOWY

RYNEK

NUMER OFERTY

Poprzednia oferta
Powrót
Następna oferta

Lokal biurowy nadaje się też na mieszkanie

Lokal usługowy na sprzedaż

Lokalizacja Szczecin Gumieńce
Numer oferty LGR21928
Rodzaj budynku Mieszkalno-biurowy
Rok budowy 2001
Materiał Cegła
Liczba pokoi 2
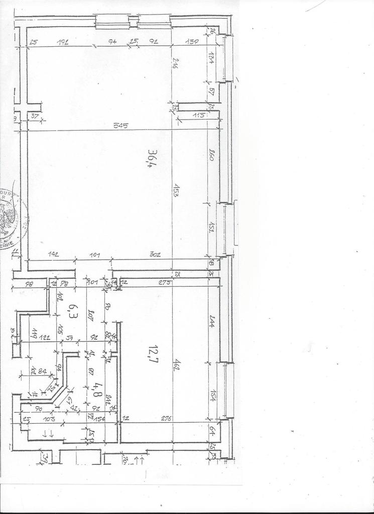
Powierzchnia 61 m2
Cena 520 000 zł

Opis

Podana cena jest ceną netto  należy doliczyć 8% podatek VAT (kupujący  przy zakupie nie płaci 2% podatku pcc)

Lokal o powierzchni  61,70 m2  położony na  "wyższym"  parterze, budynku (2001 rok), usytuowanego  w dzielnicy Gumieńce w Szczecinie. 
Przed budynkiem znajduje się ogólnodostępny parking. Wejście do lokalu  z klatki schodowej po paru schodkach. 
Lokal składa się z dwóch pomieszczeń (o pow. ok. 36 m2 i  ok. 13 m2), przedpokoju i łazienki z  wydzielonym wc. W chwili obecnej brak  kuchni. Ale istnieje możliwość zrobienia "aneksu kuchennego" w największym pomieszczeniu  lub osobnego pomieszczenia socjalnego w mniejszym pomieszczeniu  (13 m2)
Wszystkie okna drewniane, na podłodze panele, w łazience i wc - glazura i terakota.
               Czynsz należny zarządcy  (uwzględniający śladową  zaliczkę na wodę ciepłą i zimną, wywóz śmieci oraz ogrzewanie, i fundusz remontowy.) - ok. 695 PLN
Do lokalu przynależy piwnica o pow. 12,81 m2
Lokal idealny na działalność biurową, lub pod wynajem, ale także (po drobnych przeróbkach)  doskonale sprawdzi się jako lokal mieszkalny.



Szczegóły
Rodzaj oferty Lokal usługowy na sprzedaż
Liczba pokoi 2
Liczba łazienek 1
Liczba pięter 3
Powierzchnia 61 m2
Cena 520 000 zł (8 427 zł/m2)
Forma prawna Własność
Rodzaj budynku Mieszkalno-biurowy
Rok budowy 2001
Materiał Cegła
Stan budynku Dobry
Rodzaj ogrzewania co miejskie
Komunikacja tramwaj, autobus
Dodatkowo piwnica