Dom na sprzedaż
| Lokalizacja | Goleniów | |
|---|---|---|
| Numer oferty | MNI22159 | |
| Rok budowy | 2024 | |
| Materiał | Bloczki | |
| Liczba pokoi | 4 | |
| Powierzchnia | 79 m2 | |
| Działka | 282 m2 | |
| Cena | 630 000 zł |
JUŻ DZISIAJ UMÓW SIĘ NA PREZENTACJĘ!!!
Przedmiotem sprzedaży jest bliźniak w stanie wykończonym pod klucz, wybudowany w technologii tradycyjnej według indywidualnego projektu.
Nieruchomość położona zaledwie 3 km od centrum Goleniowa, w niewielkim kompleksie nowych domów w zabudowie bliźniaczej.
Dom położony na działce o pow. 261 m2, częściowo ogrodzonej. Dojazd drogą gminną, a następnie prywatną utwardzoną.
Media - prąd, woda z sieci miejskiej, kanalizacja sanitarna - szambo.
Ogrzewanie - pompa ciepła.
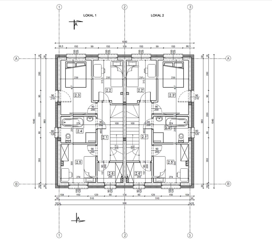
Dom parterowy z użytkowym poddaszem. Powierzchnia użytkowa 79,85 m2, na którą składa się:
Parter - 40,31 m2 :
- salon z aneksem kuchennym - 26,46 m² (wyjście na ogród),
- łazienka - 2,35 m²,
- pomieszczenie gospodarcze - 3,88 m²,
- hol - 4,33 m2,
- wiatrołap (z wnęką na szafę) - 3,29 m2
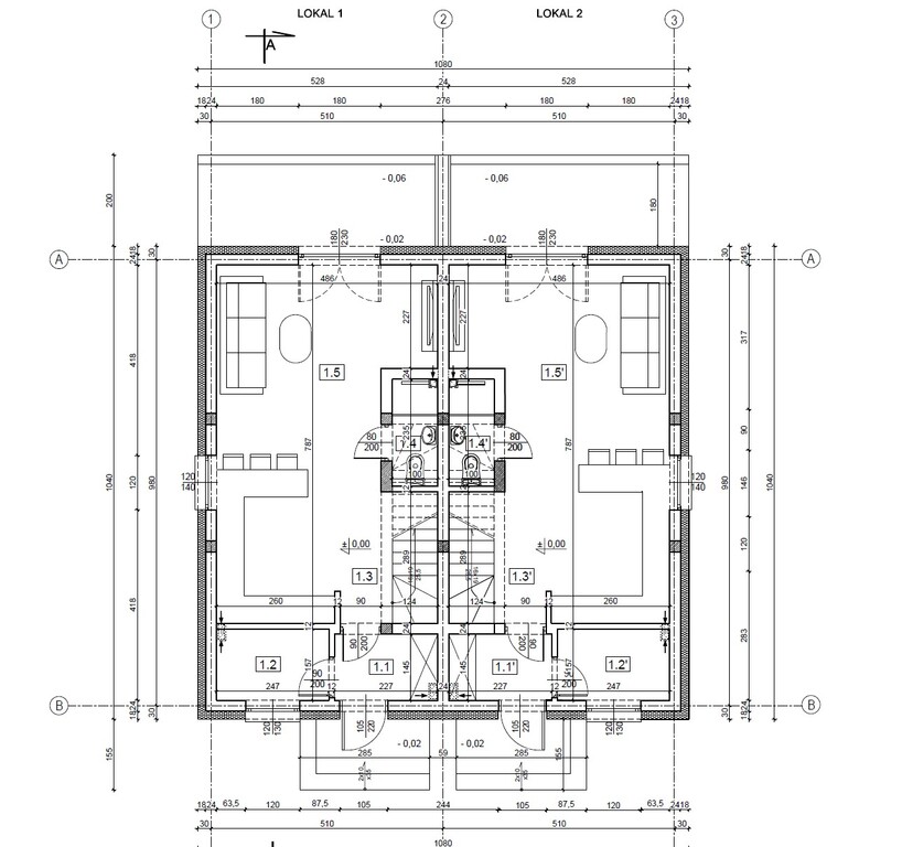
Poddasze - 39,54 m2 :
- 3 pokoje - 7,59 m2, 10,52 m2, 8,22 m² + garderoba 3,06 m2,
- łazienka 5,62 m²,
- korytarz - 4,53 m2
Dodatkowo strych nieużytkowy.
Część dzienna domu wraz ogrodem znajdują się od strony południowej.
KONSTRUKCJA:
- Ściany konstrukcyjne - bloczki beton komórkowy 24 cm, ściany wewnętrzne - bloczki beton komórkowy 12 cm,
- Strop - betonowy,
- Ocieplenie ścian zewnętrznych - styropian 20 cm,
- Pokrycie dachu - dachówka.
STANDARD WYKOŃCZENIA
- drzwi wejściowe,
- okna PCV 3-szybowe + okno tarasowe,
- instalacja - elektryczna, wodna, kanalizacyjna, RTV,
- system ogrzewania podłogowego w całym domu,
- ocieplenie dachu - wełna,
- schody betonowe lane.
W pokojach ściany gładzone malowane, podłogi panele. Łazienki armatura łazienkowa, płytki. Aneks kuchennym meble kuchenne, kuchenka indukcyjna, piekarnik okap, na podłodze płytki.
Cena zawiera podatek VAT - 8%. Kupujący zwolniony z podatku 2% od czynności cywilnoprawnych.
Domy położone na obrzeżach Goleniowa z bardzo dogodnym dojazdem.
Koszty związane z nabyciem nieruchomości:
- opłaty u notariusza - taksa notarialna, opłaty sądowe, opłata za wypisy aktu,
- wynagrodzenie biura nieruchomości za usługę pośrednictwa w zakupie.
ZAPRASZAMY NA PREZENTACJE i DO SKŁADANIA OFERT ZAKUPU !!!
| Rodzaj oferty | Dom na sprzedaż | ||
|---|---|---|---|
| Liczba pokoi | 4 | ||
| Liczba łazienek | 2 | ||
| Liczba pięter | 2 | ||
| Powierzchnia | 79 m2 | ||
| Działka | 282 | ||
| Cena | 630 000 zł (7 889 zł/m2) | ||
| Forma prawna | Własność | ||
| Forma prawna gruntu | Własność | ||
| Rok budowy | 2024 | ||
| Droga dojazdowa | Utwardzona | ||
| Materiał | Bloczki | ||
| Stan budynku | Stan deweloperski | ||
| Dodatkowo | ogród     |