POWIERZCHNIA (M²)

CENA ZA M²

PIĘTRO

LICZBA POKOI

ROK BUDOWY

RYNEK

NUMER OFERTY

Poprzednia oferta
Powrót
Następna oferta

Wynajem lokal 204 m2

Wynajem lokalu usługowego

Lokalizacja Szczecin Śródmieście-Centrum
Numer oferty ASP21761
Rodzaj budynku Mieszkalno-biurowy
Rok budowy 1985
Materiał Silikat
Liczba pokoi 5
Powierzchnia 204 m2
Cena 4 000 zł

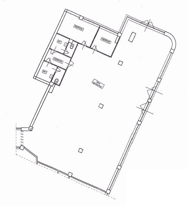
Opis

Do wynajęcia lokal handlowo - usługowy o powierzchni 204 m2 położny na parterze budynku mieszkalno - usługowego.

Szerokie witryny, dwa wejścia z poziomu 0 (bez schodków).

Powierzchnia najmu nadaje się na każdą działalność: biurową, usługową, handlową, itp.

Na parterze znajduje się:
• recepcja,
• 3 gabinety (13/13/13 m2),
• sala konferencyjna (34 m2),
• zaplecze socjalne,
• pomieszczenie socjalne,
• WC.

Lokal z dużym potencjałem, posiada dodatkową przestrzeń w postaci antresoli o powierzchni 44 m2, o pełnej wysokości i nośności.

Ogrzewanie i ciepła woda z sieci miejskiej. W lokalu rozprowadzona jest instalacja alarmowa.

Czynsz do zarządcy w wysokości ok. 2.800 zł zawiera zaliczki na ciepłą i zimną wodę, odprowadzenie ścieków, ogrzewanie, wywóz śmieci.
Dodatkowo płatna energia elektryczna według zużycia.

Wymagana kaucja w wysokości 6000 zł.

Lokalizacja w żółtej strefie SPP, duża liczba miejsc parkingowych w okolicy.


Szczegóły
Rodzaj oferty Wynajem lokalu usługowego
Liczba pokoi 5
Liczba pięter 10
Powierzchnia 204 m2
Cena 4 000 zł (19 zł/m2)
Forma prawna Własność
Rodzaj budynku Mieszkalno-biurowy
Rok budowy 1985
Materiał Silikat
Stan budynku Bardzo dobry
Dodatkowo winda