POWIERZCHNIA (M²)

CENA ZA M²

PIĘTRO

LICZBA POKOI

ROK BUDOWY

RYNEK

NUMER OFERTY

Poprzednia oferta
Powrót
Następna oferta

Lokal użytkowy biurowo-handlowy 41.5m2

Lokal usługowy na sprzedaż

Lokalizacja Szczecin os. Słoneczne
Numer oferty WNF00309
Rodzaj budynku Niski blok
Rok budowy 1984
Powierzchnia 41 m2
Cena 299 000 zł

Opis

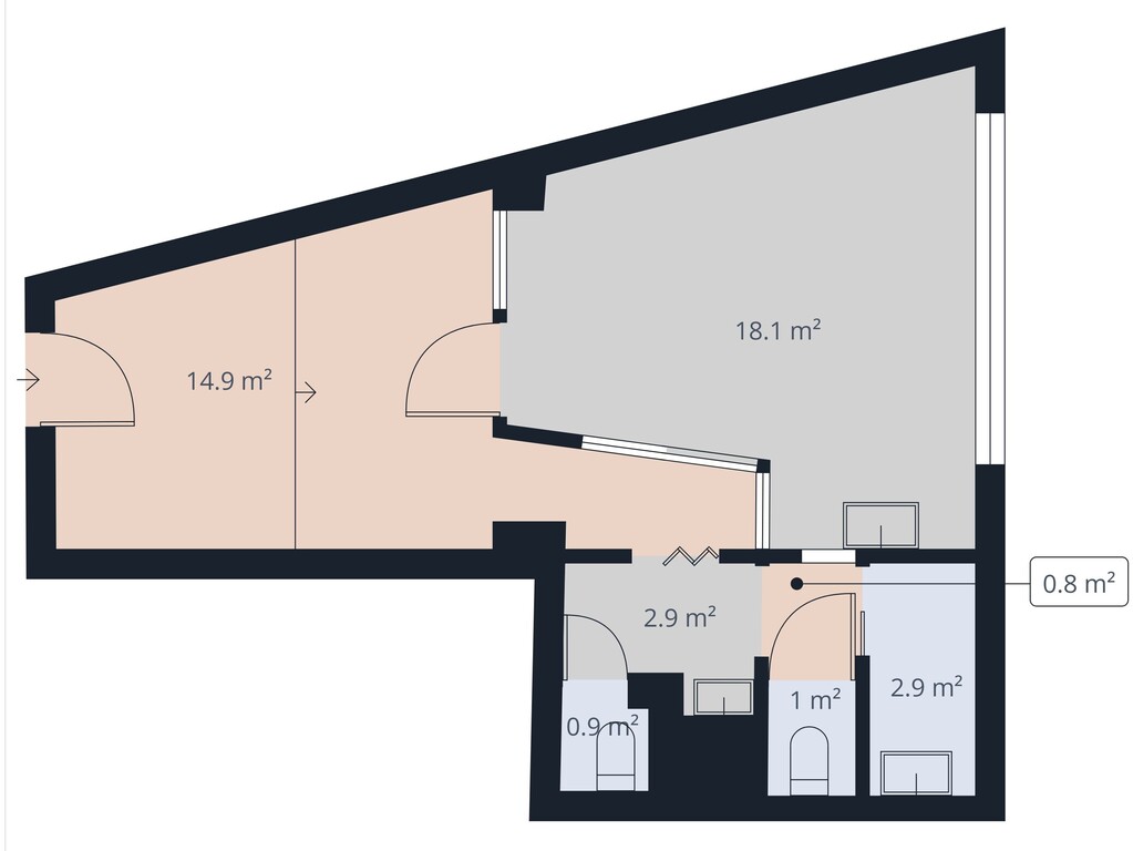
Na sprzedaż jest lokal usługowy o powierzchni 41,50????2 , położony na parterze czteropiętrowego bloku z 1984 roku, z przeznaczeniem na gabinet stomatologiczny lub inną działalność medyczną/kosmetyczną. Lokal jest w pełni wyposażony w sprzęty stomatologiczne, które pozostają dla nowego właściciela Lokal posiada dwie toalety oraz inne pomieszczenia gospodarcze. Atutem jest dobra lokalizacja w otoczeniu zieleni i wody.
Opis lokalu

  • Kompletnie wyposażony w sprzęty i akcesoria dentystyczne, które pozostają w lokalu.
  • Posiada dwie toalety i inne pomieszczenia gospodarcze.
  • Doskonała lokalizacja w otoczeniu zieleni i wody.


  • Powierzchnia:
    41,50????2.
  • Lokalizacja: Parter niskiego, czteropiętrowego budynku z wielkiej płyty z 1984 roku.
  • Przeznaczenie: Idealny na gabinet stomatologiczny lub inną działalność medyczną/kosmetyczną.
  • Wyposażenie:sprzęt dentystyczny
  • Zalety :w pobliżu dużo zieleni, Rubinowy staw, przedszkole, szkoła, możliwość swobodnego parkowania,pętla Turkusowa .






  • Świadectwo charakterystyki energetycznej - zapotrzebowanie na energię:

    EU - użytkową (kWh/m2*rok): 31.20; EK - końcową (kWh/m2*rok): 80.30; EP - nieodnawialną energię pierwotną (kWh/m2*rok): 119.70; EC02 - Wielkość emisji CO2 (t C02/m2*rok): 0.05; UOZE - Udział odnawialnych źródeł energii w zapotrzebowaniu na energię końcową [%]: 13.71;


    Szczegóły
    Rodzaj oferty Lokal usługowy na sprzedaż
    Liczba pięter 4
    Powierzchnia 41 m2
    Cena 299 000 zł (7 204 zł/m2)
    Forma prawna Spółdzielcze własnościowe prawo
    Rodzaj budynku Niski blok
    Rok budowy 1984
    Stan budynku Bardzo dobry