Mieszkanie na sprzedaż
| Lokalizacja |
Szczecin Drzetowo Jana Chryzostoma Paska |
|
|---|---|---|
| Numer oferty | 116/13324/O | |
| Rodzaj budynku | Niski blok | |
| Rok budowy | 1985 | |
| Materiał | Wielka Płyta | |
| Liczba pokoi | 2 | |
| Powierzchnia | 45 m2 | |
| Cena | 419 000 zł |
Na sprzedaż rozkładowe i bardzo ustawne mieszkanie o powierzchni 45,3mkw położone na 4 piętrze zadbanego niskiego bloku w świetnej lokalizacji blisko Centrum. Ze względu na miejsce jest to dobra propozycja zarówno dla osób szukających mieszkania na własne potrzeby, jak również dla inwestorów myślących o wynajmie dla studentów pobliskiej Politechniki Morskiej (ROI po opodatkowaniu >8%).
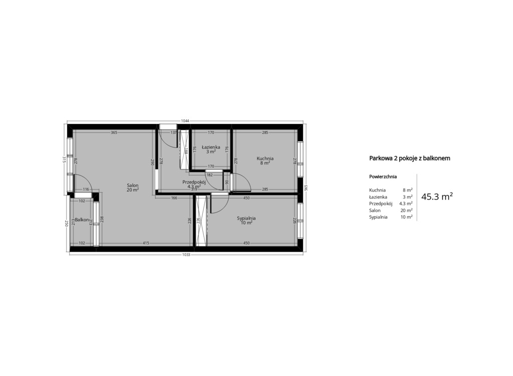
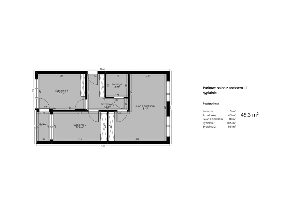
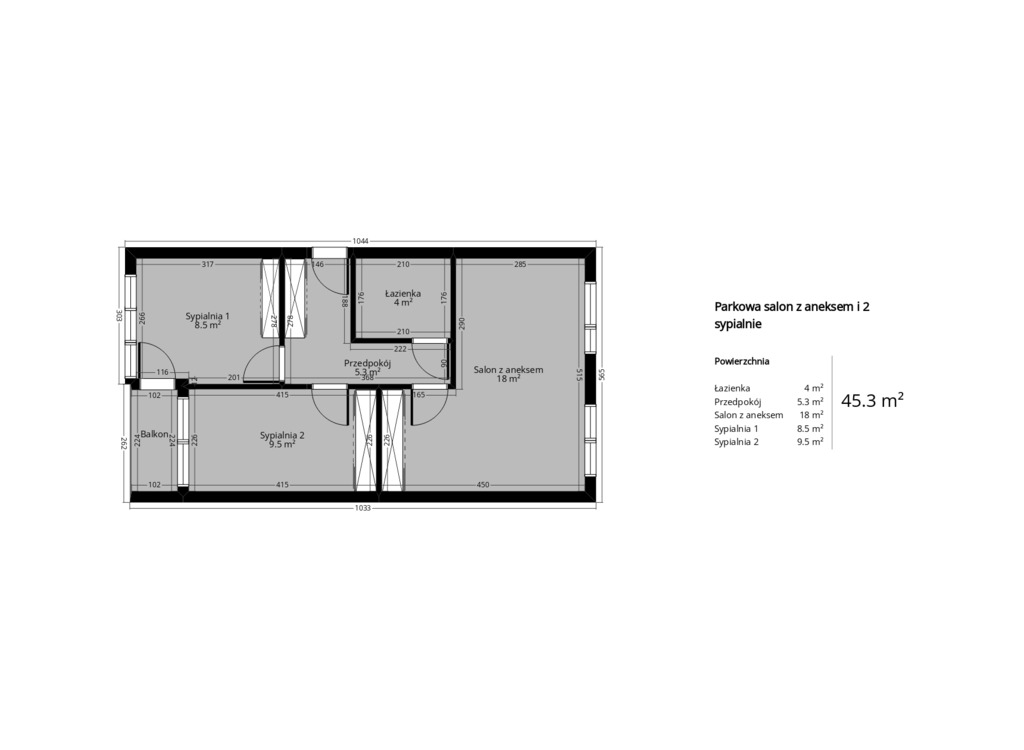
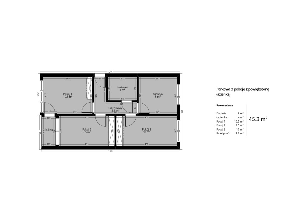
Istnieje możliwość łatwego dostosowania układu mieszkania do różnych potrzeb (rzuty/propozycje do wglądu):
- uzyskanie dużej przestrzeni dziennej poprzez likwidację ściany dzielącej salon od przedpokoju
- uzyskanie rozkładowych 3 pokojów poprzez podzielenie salonu na 2 mniejsze
- uzyskanie salonu z aneksem poprzez połączenie kuchni i sypialni przy jednoczesnym podziale obecnego salonu na 2 sypialnie
- możliwość powiększenia łazienki w każdym wariancie
Mieszkanie:
* powierzchnia 45,3mkw
* 4 piętro w niskim bloku z czystą i zadbaną klatką schodową
* salon z wnęką i wyjściem na balkon od strony cichego i zielonego podwórka (zachód)
* sypialnia od wschodniej strony
* osobna widna i foremna kuchnia
* łazienka z prysznicem, wc i umywalką z możliwością powiększenia
* przedpokój z dużą szafą z możliwością otwarcia na salon
* okna PCV w bardzo dobrym stanie
* ciepła woda i ogrzewanie z sieci miejskiej
Budynek:
* niski ocieplony blok
* zadbana klatka schodowa
* parkowanie wzdłuż ulicy przy budynku bez strefy PP
* przynależna piwnica
* dostępne media od Orange
Okolica:
Bardzo dobra lokalizacja pod każdym względem dla osób szukających swojego „M2” w mieście – w pobliżu sklepy większe i mniejsze, piekarnia, apteka, kościół, szkoła, basen, punkty usługowe, handlowe i beauty. W pobliżu przystanki linii autobusowych linii 53, 58, 59, 60, 67, 68, 101, 107 i tramwajowych linii 1, 2, 3, 5, 6, 8 i 11. Do tego brak strefy PP wzdłuż ulicy, a dojazd do CH Galaxy zajmuje zaledwie 3 minuty (na pieszo 10 minut). Park Żeromskiego oddalony jest o 500m. Stąd już całkiem niedaleko na Wały Chrobrego i do Teatru Polskiego. Ciężko o lepszą lokalizację – miejsce idealne dla osób ceniących miejski styl życia i wygodę.
Ważne:
* czynsz z zaliczkami na fundusz remontowy, ciepłą wodę i ogrzewanie miejskie przy 2 osobach wynosi 960zł
Istnieje możliwość łatwego dostosowania układu mieszkania do różnych potrzeb (rzuty/propozycje do wglądu):
- uzyskanie dużej przestrzeni dziennej poprzez likwidację ściany dzielącej salon od przedpokoju
- uzyskanie rozkładowych 3 pokojów poprzez podzielenie salonu na 2 mniejsze
- uzyskanie salonu z aneksem poprzez połączenie kuchni i sypialni przy jednoczesnym podziale obecnego salonu na 2 sypialnie
- możliwość powiększenia łazienki w każdym wariancie
| Rodzaj oferty | Mieszkanie na sprzedaż | ||
|---|---|---|---|
| Liczba pokoi | 2 | ||
| Liczba łazienek | 1 | ||
| Liczba pięter | 4 | ||
| Powierzchnia | 45 m2 | ||
| Cena | 419 000 zł (9 245 zł/m2) | ||
| Forma prawna | Własność | ||
| Rodzaj budynku | Niski blok | ||
| Rok budowy | 1985 | ||
| Materiał | Wielka Płyta | ||
| Rodzaj ogrzewania | co miejskie | ||
| Komunikacja | tramwaj, autobus |